VIESSMANN Vitorond 100 KW5 27 кВт - инструкции и руководства
Котел VIESSMANN Vitorond 100 KW5 27 кВт - инструкции пользователя по применению, эксплуатации и установке на русском языке читайте онлайн в формате pdf
Инструкции:
Инструкция по эксплуатации VIESSMANN Vitorond 100 KW5 27 кВт
1
2
3
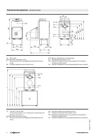
4
5
6
7
8
9
10
11
12
13
14
15
VIESSMANN Котлы Инструкции
-
VIESSMANN Vitopend 100 (WH1D268)
Инструкция по эксплуатации
-
VIESSMANN Vitopend 100-W 24 кВт, закрытая камера сгорания, одноконтурный
Инструкция по эксплуатации
-
VIESSMANN Vitopend 100-W A1JB K-rlu 24 кВт A1JB010 262
Инструкция по эксплуатации
-
VIESSMANN Vitopend 100-W 24 кВт
Инструкция по эксплуатации
-
VIESSMANN Vitopend 100-W 12 кВт
Инструкция по эксплуатации
-
VIESSMANN Vitogas 100 48 кВт, 100/КС4В
Инструкция по эксплуатации
-
VIESSMANN Vitopend 100-W 34 кВт
Инструкция по эксплуатации
-
VIESSMANN Vitogas 100 35 кВт 100/КС4В
Инструкция по эксплуатации
-
VIESSMANN Vitogas 100 42 кВт 100/КС4В
Инструкция по эксплуатации
-
VIESSMANN Vitopend 100-W 29.9 кВт, закрытая камера сгорания, одноконтурный
Инструкция по эксплуатации
-
VIESSMANN Vitopend 100-W 29.9к Вт
Инструкция по эксплуатации
-
VIESSMANN Vitopend 100-W 34 кВт, закрытая камера сгорания, одноконтурный
Инструкция по эксплуатации
-
VIESSMANN Vitogas 100 60 кВт 200/КС4В
Инструкция по эксплуатации
-
VIESSMANN Vitogas 100 29 кВт, 200/КС4В
Инструкция по эксплуатации
-
VIESSMANN Vitogas 100 42 кВт, 200/КС4В
Инструкция по эксплуатации
-
VIESSMANN Vitorond 100 KC4 27 кВт
Инструкция по эксплуатации
-
VIESSMANN Vitorond 100 KW4 27 кВт
Инструкция по эксплуатации
-
VIESSMANN Vitorond 100 KC4 33 кВт
Инструкция по эксплуатации
-
VIESSMANN Vitorond 100 KW4 33 кВт
Инструкция по эксплуатации
-
VIESSMANN Vitorond 100 KW5 33 кВт
Инструкция по эксплуатации