VIESSMANN Vitorond 100 KC4 33 кВт - Инструкция по эксплуатации

VIESSMANN Vitorond 100 KC4 33 кВт

Котел VIESSMANN Vitorond 100 KC4 33 кВт - инструкция пользователя по применению, эксплуатации и установке на русском языке. Мы надеемся, она поможет вам решить возникшие у вас вопросы при эксплуатации техники.

Если остались дополнительные вопросы — свяжитесь с нами через контактную форму.

1 Страница 1
2 Страница 2
3 Страница 3
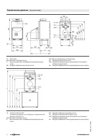
4 Страница 4
5 Страница 5
6 Страница 6
7 Страница 7
8 Страница 8
9 Страница 9
10 Страница 10
11 Страница 11
12 Страница 12
13 Страница 13
14 Страница 14
15 Страница 15
Страница: / 15
Загрузка инструкции

Инструкция
по эксплуатации

Комбинированный напольный котел VIESSMANN
Vitorond 100 KC4 33 кВт

Цены на товар на сайте:

http://kotly.vseinstrumenti.ru/kombinirovannye/viessmann/vitorond_100_kc4_33_kvt/

Отзывы и обсуждения товара на сайте:

http://kotly.vseinstrumenti.ru/kombinirovannye/viessmann/vitorond_100_kc4_33_kvt/#tab-Responses

"Загрузка инструкции" означает, что нужно подождать пока файл загрузится и можно будет его читать онлайн. Некоторые инструкции очень большие и время их появления зависит от вашей скорости интернета.

Характеристики

Другие модели - Котлы VIESSMANN

Все котлы VIESSMANN