Страница 2 - VIESMANN; Технический паспорт; казание
VITOROND 100 Тип VR2B Низкотемперат урный чугунный водогрейный котелдля жидкого и газообразного топливаПрограммируемая и погодозависимая теплогенера - ция с переменной температ урой теплоносителя . В сборе со смонтированной теплоизоляцией VIESMANN Технический паспорт № для заказа и цены : см . в пра...
Страница 3 - Основные преимущества
& Нормативный к . п . д .: 94,5 %. & Теплообменные поверхности Eutectoplex обеспечивают высокую эксплуатационную надежность и длительный срокслужбы . Гомогенная кристаллическая структура специаль - ного серого чугуна эвтектического типа обеспечивает одно - родность тепловых потоков и препятс...
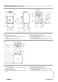
Страница 4 - Технические данные
Технические данные Номинальная тепловая мощность кВт 15 18 22 27 33 Идентификатор изделия CE ‐ 0645AU ‐ 114.3 Установочные размеры ( с теплоизоляцией ) Длина ( размер a) мм 515 515 650 790 790 Ширина соответствует общей ширине мм 500 500 500 500 500 Высота мм 830 830 830 830 830 Габаритные размеры О...
Страница 5 - продолжение
A Подставка AGA Вытяжка отходящих газов E Выпускной вентиль и мембранный расширительныйсосуд KR Патрубок обратной магистрали котла KTS Датчик температуры котловой воды KV Подающая магистраль котла RLU Патрубок подвода воздуха для режима эксплуатации сотбором воздуха извне SA Патрубок аварийной линии...
Страница 6 - Монтаж
Таблица размеровНоминальная тепловая мощность кВт 15 18 22 27 33 С подставным емкостным водо - нагревателем л от 130 до 200 от 130 до 200 от 130 до 200 от 130 до 200 350 160 и 200 350 a мм 515 515 650 790 790 790 790 b мм 890 890 1025 1165 1165 1165 1165 c мм 1594 1594 1594 1594 1726 1594 1726 d мм ...
Страница 7 - Гидродинамическое сопротивление греющего контура; Состояние при поставке; Варианты контроллеров; Принадлежности для водогрейного котла
Гидродинамическое сопротивление греющего контура Водогрейный котел Vitorond 100 пригоден только для систем водяного отопления с принудительной циркуляцией . Состояние при поставке Котловый блок со смонтированной установочной плитой длягорелки и установленной теплоизоляцией 1 коробка с контроллером к...
Страница 8 - Указания по проектированию
Газовыпускная система Согласно EN 13384 и DIN 18160 отходящие газы должны отводиться через газовыпускную систему в атмосферу и пред - охраняться от охлаждения таким образом , чтобы осаждение в дымовой трубе парообразных компонентов не создавалоопасных ситуаций . Водогрейный котел Vitorond 100 работа...
Страница 9 - Примеры применения
Отопительные контуры Для внутрипольного отопления мы рекомендуем использоватьдиффузионно ‐ непроницаемые трубы , чтобы предотвратить диффузию кислорода через стенки труб . В системах внутри - польного отопления с проницаемыми для кислорода поли - мерными трубами (DIN 4726) следует выполнить разделен...
Страница 13 - Системотехника; Проверенное качество
Системотехника Пример монтажа котла Vitorond 100 с использованием системотехники фирмы Viessmann Указание Теплоизоляция , входящая в программу поставки адаптера Divicon, не показана для большей наглядности . Проверенное качество Знак СЕ в соответствии с действующими директивамиЕвропейского Союза . А...