Страница 2 - версия; Настенный электрический котел; CKAT
Руководство по монтажу и эксплуатации котла 6, 9, 12, 14, 18, 21, 24, 28 K версия 13 Настенный электрический котел Мощностной ряд 6 – 28 кВт Эквитермическое регулирование CKAT RU В Е Р С И Я 0020095669_03
Страница 5 - Введение
4 Вы стали владельцем прямоточного электрического котла, предназначенного для систем центрального отопления, с возможностью регулирования теплового комфорта.Мы надеемся, что электрический котел Скат будет служить Вам долго и надежно. При его установке и обслуживании необходимо соблюдать определенные...
Страница 7 - Управление и сигнализация; Панель управления
6 Руководство по осблуживанию Руководство по осблуживанию Управление и сигнализация Рис. 1 Панель управления Посредством панели управления можно наблюдать за текущими значениями температуры и давления воды, а также производить настройку различных параметров и режимов работы.Описание элементов управл...
Страница 8 - Выбор режима считывания
7 Выбор режима считывания Отображение актуальной температуры воды в системе отопления в °C MODE / OK Состояние отображения актуального значения температуры воды в системе индицируется посредством загорания светодиода на панели управления. Если в данном режиме горит светодиод в правом нижнем углу дис...
Страница 9 - Выбор режима настройки; Регулирование температуры отопления
8 Выбор режима настройки Регулирование температуры отопления MODE / OK Нажатие кнопки MODE/ OK в режиме отображения температуры в системе отопления позволяет перейти в режим регулировки значений параметра температуры отопления. Данное состояние индицируется миганием светодиода на панели управления к...
Страница 11 - Сообщения о неисправностях котла; дисплей
10 Сообщения о неисправностях котла Снижение давления воды в системе отопления MODE / OK При падении давления котловой воды в системе отопления ниже 0,8 бар светодиод «bar» начнет мигать. Котел продолжает работать. В этом случае необходимо поднять давление в системе отопления до 1 - 2 бар путем доба...
Страница 13 - Характеристика котла; Мощность; Плавное регулирование мощности
12 Электрические котлы СКАТ предназначены для использования в качестве теплогенераторов в закрытых системах отопления с принудительной циркуляцией теплоносителя.Все гидравлические подключения и подключение к электрической сети осуществляется в нижней части котла.Котлы серии СКАТ предназначены для ус...
Страница 14 - Запуск котла; Запуск и выключение котла; Эксплуатация котла без комнатного
13 дисплее изображается величина 11).В таблице приводятся отдельные мощностные ступени котла в зависимости от его типа. Мощность котла Нагревательные элементы (кВт) Отдельные мощностные ступени (кВт) 6 кВт 3 + 3 1 2 3 4 5 6 9 кВт 6 + 3 1 2 3 4 5 6 7 8 9 12 кВт 6 + 6 2 4 6 8 10 12 14 кВт 7 + 7 2,3 4,...
Страница 16 - Защитные функции котла
15 дополнительный котел. В случае подключения котлов в каскад управление последним осуществляется с помощью одного комнатного регулятора, подключенного к первому, так называемому "ведущему котлу". Для каскадного управления котлами клеммы 9 и 10 ведущего котла необходимо подключить к клеммам ...
Страница 18 - Техническое обслуживание и уход; Подпитка системы отопления
17 Техническое обслуживание и уход Подпитка системы отопления Подпитку системы отопления (но только в небольших количествах) можно производить посредством вентиля подпидки, устанавливать который рекомендуется на входе котловой воды в котел (вентиль подпитки в комплект поставки котла не входит).При п...
Страница 20 - Технические параметры
19 Электрическое напряжение (6 - 28 кВт) . . . . . В . . . . . . . . . . . . . . . 3 x 230 В/400 В + N + PE, 50 ГцМаксимальная сила тока (28 кВт) . . . . . . . . . . A . . . . . . . . . . . . . . . . . . . . . . . . . 3 x 43 AПотребляемая мощность . . . . . . . . . . . . . . . . кВт . . . . . . . . ...
Страница 21 - Присоединительные размеры котла
20 Присоединительные размеры котла Рис. 4 310 410 740 100 100 235 133 1 2 3 4 5 6 1 кабельный ввод Pg 132 кабельный ввод Pg 213 обратная линия из системы отопления - 3/4" 4 патрубок предохранительного клапана 5 подающая линия в систему отопления - 3/4" 6 кабельный ввод Pg 13
Страница 22 - Принципиальная схема котла
21 Рис. 5 Принципиальная схема котла A B 1 ТЭНы2 теплообменник3 изоляция4 воздухоотводчик5 насос6 расширительный бак 7 предохранительный клапан ОВ 8 датчик давления 9 гидрогруппа10 воздухоотводчик теплообменникаA обратная линия из системы отопления B подающая линия в систему отопления
Страница 23 - Минимальные расстояния
22 Руководство по монтажу Руководство по монтажу Введение Установку электрокотла необходимо согласовать с местной электрораспределительной службой. Пользователю необходимо получить предварительное согласие на выделение дополнительной электрической мощности и установку тарифа для жилых помещений с ав...
Страница 24 - Комплектность поставки
23 Электрокотел предназначен для работы в нормальных средах с диапазоном температур от +5 до +40 °C и влажностью воздуха, в зависимости от температуры в помещении, максимально до 85 %.Электрический отопительный котел предназначен для установки внутри зданий в жилых или хозяйственных помещениях, при ...
Страница 25 - Распределительный трубопровод; Чистота системы отопления; Термостатические клапаны
24 Распределительный трубопровод Номинальный внутренний диаметр распределительных трубопроводов системы отопления определяется с учетом параметров насоса. Распределительная система трубопроводов проектируется в соответствии с требованиями к производительности данной системы отопления, а не с учетом ...
Страница 26 - Установка котла
25 Навеска котла Для монтажа котла на стену рекомендуется использовать крепежную планку (входит в комплект поставки), которую необходимо предварительно закрепить на стене.На закрепленную крепужную планку подвешивается котел. Съемная лицевая панель облицовки котла крепится винтами к корпусу котла. Ко...
Страница 27 - Электрическое подключение котла; После подключения сетевых проводов
26 Подпитка системы отопления Порядок подпитки котла описан в части «Руководство по обслуживанию» – Техническое обсуживание / Уход. Слив воды из котла Для заполнения и слива теплоносителя из системы отопления и котла следует установить в системе отопления дополнительные вентили.Слив и заполнение сис...
Страница 28 - Подключение к однофазной сети; Подключение котла к однофазной сети
27 Подключение к однофазной сети В случае, когда нет возможности подключиться к трехфазной электрической сети котлы СКАТ мощностного ряда 6 и 9 кВт, можно подключить к однофазной электрической сети . Для этого необходимо воспользоваться соединительным мостиком, входящим в комплект поставки котла. С ...
Страница 29 - Подключение внешнего накопительного бака ГВС
28 Котел СКАТ может комбинироваться с бойлерами косвенного нагрева Protherm типа B60Z, B100MS, B100Z, B200S, B200Z и B120S. Система управления котлом регулирует нагрев бойлера с помощью NTC датчика бойлера. Датчик следует подключить к коннектору K8, расположенному на плате управления котлом (см. Эле...
Страница 30 - Схема подключения к электрокотлу бойлера косвенного нагрева
29 1 2 3 4 5 6 7 8 9 1011 12 Рис. 9 Схема подключения к электрокотлу бойлера косвенного нагрева 1 бойлер косвенного нагрева2 теплообменник бойлера косвенного нагрева 3 отсечной кран4 вывод горячей воды5 распределительный элемент6 отсечной кран7 электрический котел 8 трехходовой клапан9 привод треххо...
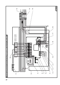
Страница 31 - Описание к электрическим схемам
30 Описание к электрическим схемам 1 клеммы для подключения котлов в каскад 2 клеммы для подключения NTC датчика бойлера косвенного нагрева 3 реле разгрузки4 клеммы для подключения наружного датчика температуры 5 клеммы для подключения комнатного регулятора 6 плата управления7 датчик температуры кот...
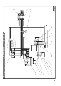
Страница 36 - Электрическая схема подключения котла через реле разгрузки
35 L N L1 L2 L3 N PE L1 L2 L3 N PE 1 2 3 5 6 7 8 9 4 Рис. 14 Электрическая схема подключения котла через реле разгрузки 1 реле максимального тока (реле разгрузки) 2 вывод – свободный от напряжения контакт 3 предохранитель цепи питания4 питание реле5 подключение к коннектору K8 (клеммы 5 и 6) электро...