Страница 3 - Protherm Бизон NL; Содержание; Руководство по обслуживанию; Руководство по установке
1 Protherm Бизон NL Заводской номер котла обозначен на щитке, находящемся на передней крышке чугунного корпуса котла. Информацию на щитке можно прочитать, сняв верхнюю крышку котла. Содержание Введение . . . . . . . . . . . . . . . . . . . . . . . . . . . 2Меры по обеспечению безопасности работы уст...
Страница 4 - Введение
2 1. Бизон NL – это универсальный котел, ра- ботающий на природном или сжиженном газe в зависимости от установленной на котле горелки. 2. Котел и все сопутствующее оснащение устанавливается и эксплуатируется в со-ответствии с проектом, действующими на данный момент постановлениями, техни-ческими нор...
Страница 6 - Управление и сигнализация; Панель управления; Эксплуатация и техническое обслуживание
4 Руководство по обслуживанию Руководство по обслуживанию Управление и сигнализация Рис. 1 Панель управления 0 1 2 l 0 20 40 1 2 3 °C °C 1. Главный выключатель ВКЛЮЧЕНО (1) - ВЫКЛЮЧЕНО ( 0 ) 2. Регулятор температуры котла 3. Термометр Панель управления С помощью панели управления можно уста-навливат...
Страница 7 - Гарантия и гарантийные условия
5 - должен быть подсоединен к правому (если смотреть спереди) патрону. То же самое в отношении двойных розеток. - подсоединение к дымоходу – герметич- ность и механическую устойчивость. Зажигание горелки котла - убедитесь, что котел заполнен водой до давления 1,2 - 2 бара, что система венти-ляции ра...
Страница 8 - Описание конструкции оборудования; Общее описание; Модели котла БИЗОН NL; мм
6 Описание конструкции оборудования Общее описание Корпус котла состоит из следующих ча-стей: - передний сегмент (A) - средние сегменты (I) с армированными ребрами в последней части коллектора продуктов сгорания - заднее завершение котла (P).- специальный средний сегмент, встречаю- щийся только в не...
Страница 9 - Модели котла БИЗОН NL
7 Корпус котла 1 Передний сегмент 2 Средний сегмент 3 Специальный средний сегмент 4 Последний сегмент 5 Соединительный стержень 6 Вставка 7 Передняя панель 8 Нижняя изоляционная вставка 9 Верхняя изоляционная вставка 10 Корпус консоли оборудования 11 Смотровое отверстие 1 2 4 5 6 7 8 9 10 11 Рис. 3 ...
Страница 10 - Элементы панели управления
8 Элементы панели управления 2 2 3 3 4 4 6 6 7 7 8 8 9 9 10 10 11 11 5 5 12 12 1 1 1 Главный выключатель 2 Термометр 3 Предохранительный термостат 4 Рукоятка настройки термостата 5 Передняя крышка панели управления 6 Термостат отопительной воды 7 Задняя крышка панели управления 8 Клеммная плата (12 ...
Страница 11 - Технические параметры котла БИЗОН NL
9 Технические параметры котла БИЗОН NL Модели котла БИЗОН NL 30 NL 35 NL 40 NL 50 NL 60 NL 70 NL Вид топлива.............................................................................дизель/природный газ/СПГ Общие данны Способ отвода продуктов сгорания ................................................
Страница 13 - Комплектность поставки; Комплект поставки
11 1 Záručný list Seznam servisných stredisiek Servisná kniha Návod k obsluhe a instalácii 2 3 4 5 Комплектность поставки Рис. 5 Комплект поставки Поставка котла Котлы Бизон NL поставляются в разобран-ном виде. Корпус котла поставляется цели-ком, уложенным на поддон, остальные ча-сти котла поставляю...
Страница 14 - Монтаж панельной обшивки; Элементы обшивки
12 Монтаж панельной обшивки Элементы обшивки Рис. 6 1 Верхняя часть передней панели 2 Нижняя часть передней панели 3 Правая боковая панель 4 Левая боковая панель 5 Задняя панель 6 Верхняя крышка 7 Электрическая панель управления 8 Нижние консоли ПРАВАЯ/ЛЕВАЯ 9 Корпус котла
Страница 15 - Порядок монтажа; Нижние консоли
13 Порядок монтажа A: Начав сверху, оберните изоляционную ро- гожу около теплообменника котла, причем текстильная сторона рогожи должна быть обращена наружу (рис. 7) B: В отверстия (рис. 8), находящиеся около ножек корпуса котла, винтами M8 12 за-крепите обе консоли (8), используя при том соответств...
Страница 16 - Подключение камеры сгорания; Выбор горелки; Горелка
14 Подключение камеры сгорания Котлы БИЗОН NL могут быть оснащены го-релкой с принудительной вентиляцией , од-ноступенчатой (ВКЛЮЧЕНО – ВЫКЛЮЧЕ-НО) или двухступенчатой. В качестве топлива может использовать-ся дизельное топливо, сжиженный природ-ный газ (СПГ) или природный газ (в соответ-ствии с тип...
Страница 17 - Распределительный трубопровод; Чистота отопительной системы
15 Распределительный трубопровод Номинальный внутренний диаметр трубок определяется обычным способом в соответ-ствии с характеристикой насоса. Распреде-лительный трубопровод проектируется на основании требований к производительно-сти данной системы, а не в соответствии с максимальной мощностью котла...
Страница 18 - Подключение к дымоходу; Электрическое подключение котла
16 При реконструкции, неблагоприятном стро-ительном расположении и т.п. котел можно подключить к системе отопления и приводу газа с помощью шлангов, предна-значенных для этих целей. Используемые шланги должны быть как можно короче, должны быть защищены от механической, химической нагрузки и поврежде...
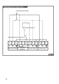
Страница 19 - Электрическая схема котла; Предохранительный; Главный
17 Электрическая схема котла Рис. 13 Предохранительный термостат Рабочий термостат Главный выключатель 1 2 3 4 5 6 7 8 9 10 11 12 N L Напряжение 230 Вт Комнатный регулятор L N N L Питание горелки Питание насоса