Страница 3 - Содержание
1 Bison NO 70 – 3500 Содержание Правила пользования . . . . . . . . . . . . . . . . . 2Технические данные . . . . . . . . . . . . . . . . . 3 Котел BISON NO 70-1300 . . . . . . . . . . . . . . 3 Котел BISON NO 1400-3500 . . . . . . . . . . . 5 Установка . . . . . . . . . . . . . . . . . . . . . . . ...
Страница 4 - ПРАВИЛА ПОЛЬЗОВАНИЯ; Руководство по установке
2 Каждый котел поставляется в комплекте с табличкой изготовления, которая содержится в конверте с документами. На табличке указываются следующие данные: • Заводской номер или идентификационное обозначение; • Номинальная тепловая мощность в ккал/ч или в кВт; • Тепловая мощность топки в ккал/ч или в к...
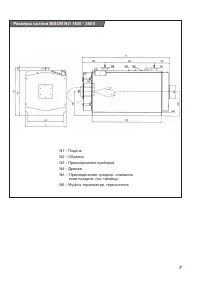
Страница 5 - ТЕХНИЧЕСКИЕ ДАННЫЕ КОТЛА BISON NO 70 - 1300
3 Мо дель К о тл а По лезная мощность Мин. мощность Мощность топки КПД - 1 00% нагр узка Δ Р по дыму Δ Р по во де (Δt =1 2 °С) Мак с. давление Объем Вес кВт кВт кВт % мбар мбар бар л к г Bison NO 70 70 35 7 6 92,1 1 0,8 9 5 1 0 5 2 1 6 Bison NO 80 80 40 87 91,95 1,0 9 5 1 0 5 2 1 6 Bison NO 90 90 45...
Страница 11 - УСТАНОВКА; РАСПОЛОЖЕНИЕ КОТЛА
9 Перед подключением котла необходимо осуществить следующие операции: • аккуратно промыть все трубопроводы, чтобы исключить негативное влияние грязи на работу котла • Проверить, чтобы в дымоходе была соответствующая тяга, не было сужений, УСТАНОВКА шлаков; а также не был присоединен дренаж каких-либ...
Страница 12 - ГИДРАВЛИЧЕСКОЕ ПОДКЛЮЧЕНИЕ
10 ГИДРАВЛИЧЕСКОЕ ПОДКЛЮЧЕНИЕ ВОДОГРЕЙНАЯ ТЕПЛОВАЯ УСТАНОВКА С ЗАКРЫТЫМ РАСШИРИТЕЛЬНЫМ БАКОМ – Мощность топки ≤ 300.000 ккал/ч - давление 5 бар (Рис. 1) Котел должен иметь: a - Предохранительный клапанb - Расширительный бак (соединенный с трубой диаметром Ø 18 мм) c - Регулирующие термостатыd - Пред...
Страница 14 - ЭЛЕКТРИЧЕСКОЕ ПОДКЛЮЧЕНИЕ
12 Гидравлическое давление после редукционного клапана на трубопроводе подачи не должно превышать рабочего давления, указанного на табличке детали (котел, бойлер и т.д.). • Поскольку во время работы котла давление воды, находящейся внутри, увеличивается, необходимо следить, чтобы его значение не пре...
Страница 16 - ЭЛЕКТРИЧЕСКАЯ СХЕМА
14 ЭЛЕКТРИЧЕСКАЯ СХЕМА QS1 Гл авный переключа тель (не нах о дится в панеле) FU1 Плавкий пре до хр анитель (не нах о дится в панеле) TS Пре д о х р анительный термост а т, р учная деб локировка (1 00 °C) HL Лампо чка напряж ения S1 Внешняя безопасность IB Дв ухпозиционный переключа тель г орелки ВКЛ...
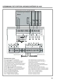
Страница 17 - КЛЕММНИК РЕГУЛЯТОРА KROMSCHR; Bison
15 КЛЕММНИК РЕГУЛЯТОРА KROMSCHR Ö DER E8 4401 VII (1+2): Антена DCF-приемника(1-3): FBR2 (FBR1), отопительнуй контур 1I (2+3): Телефонный коммутатор для ОК 1I (4+5): Датчик потока, отопительный контур 2I (6+7): Датчик темп. Емкостного водонагрев.I (7+8): Датчик коллектораI (9+10): Датчик наружной те...
Страница 20 - МОНТАЖ
18 МОНТАЖ ОБШИВКА КОТЛА BISON NO 70÷420 (Рис. 7) a) Обернуть стекловатой корпус котла , оставив видимыми футляры для колб (P), расположенные на правой стороне. b) В отверстия, находящиеся на нижней части панелей (1S) и (1D), в зависимости от предназначения отверстия дверцы, пропустить соединительные...
Страница 22 - ЗАПУСК; ВОДОПОДГОТОВКА; Накипь извести; ПРЕДВАРИТЕЛЬНЫЙ КОНТРОЛЬ
20 ЗАПУСК ВНИМАНИЕ: Перед пуском котла вставить турболизаторы в дымогарные трубы так, чтобы расстояние между турболизаторами и передней трубной пластиной было не менее 100 мм (рис. 8) . - Расширительный бак и предохранительный/ые клапан/ы были правильно подсоединены (без отсекания) и функционировали...
Страница 23 - ЭКСПЛУАТАЦИЯ; Диаграмма извести; неиспо
21 ЗАПОЛНЕНИЕ КОТЛА ВОДОЙ Вода должна поступать в систему отопления как можно более медлено и не быстрее, чем из котла удаляется воздух. Время варьируется в зависимости от объема заполнения, но не менее 2 или 3 часов. В случае заполнения котла с закрытым расширительным баком необходимо заполнять вод...
Страница 25 - ЧИСТКА И ОБСЛУЖИВАНИ
23 Герметизация должна входить в значения, указанные в таблице технических данных. ВНИМАНИЕ: Тепловой перепад между подачей и обраткой не должен превышать 15°С, так чтобы структура котла могла избежать теплового удара. Температура обратки оборудования должна быть больше 55°С, чтобы защитить котёл от...
Страница 26 - Обзор рекомендуемых горелок на природный газ
24 Горелка Тип котла 1-ступенчатая газовая горелка Тип фланца 2-ступенчатая газовая горелка Тип фланца RIELLO NO 70 BS 2 AQ4025P14 BS 2 D AQ4025P14 F.B.R. GAS X2 CE TXL (200 mm) AQ4035R7 GAS X2/2 CE TXL (200 mm) AQ4035R7 CIB UNIGAS NG 90 M-.TN.L.IT.A.0.15 AQ4050B3 NG 90 M-.AB.L.IT.A.0.10 AQ4050B3 RI...
Страница 28 - Обзор рекомендуемых горелок на жидкое топливо
26 Горелка Тип котла 1-ступенчатая жидкотопливная горелка Тип фланца 2-ступенчатая жидкотопливная горелка Тип фланца RIELLO NO 70 RG 2 KD AQ4035R7 F.B.R. G 2.22 MAXI TXL (200 mm) AQ4035R7 G 2.22/2 MAXI TXL (200 mm) AQ4035R7 CIB UNIGAS G10 G-.AB.L.IT.A. AQ4040E2 RIELLO NO 80 RG 3 AQ4035R4 RG 3 D AQ40...
Страница 33 - Стационарный котел
Инструкции по монтажу и обслуживанию NO 70 - 3500 Стационарный котел Диапазон мощности 70 - 3500 Bозможность каскадного подключения Bison v .1 05 / 2006 RU версия PR O THERM s .r .o . Pplk. Pľ jušť a 45 909 01 Skalica T el.: +421 34 6966 101 F ax.: +421 34 6966 111 www .pr otherm.su Представительств...