Страница 3 - Уважаемый Покупатель!
Благодарим Вас за правильный выбор высокотехнологичного, функциональ - ного и качественного оборудования, произведенного компанией FERROLI. Ваш котел является результатом работы нескольких поколений наших кол - лег и объединяет более 60 лет международного опыта компании FERROLI в создании оборудован...
Страница 4 - FORTUNA
FORTUNA 4 RU 1. УКАЗАНИЯ ОБЩЕГО ХАРАКТЕРА • Внимательно прочитайте предупреждения, содержащиеся в настоящем руководстве, и соблюдайте их в процессе эксплуатации котла. • После монтажа котла проинформируйте пользователя о принципах его работы и пере - дайте ему в пользование настоящее руководство, ко...
Страница 10 - – нажмите кнопку
FORTUNA 10 RU Таблица неисправностей При появлении на дисплее любого кода неисправности, кроме «F37», (см. далее): – нажмите кнопку «RESET» ; – если работа котла не восстановилась, обратитесь в Авторизованный сервисный центр, сообщите код неисправности и, по возможности, обстоятельства, сопутствующи...
Страница 11 - Гидравлический контур
FORTUNA 11 RU Таблица 10 – Условные обозначения рис. 16a, рис. 16б, рис. 17 и рис. 18 5 – Закрытая камера 7 – Подвод газа 8 – Выход воды системы ГВС 9 – Вход воды в систему отопления 10 – Подача воды в систему отопления 11 – Обратный трубопровод системы отопления 14 – Предохранительный клапан 16 – В...
Страница 12 - Таблица технических данных; А = Потери напора в котле – 1,2 и З = Скорость циркуляционного насоса
FORTUNA 12 RU 5.3 Таблица технических данных В правой колонке указано сокращение, используемое на табличке технических данных Параметр Ед. изм. FORTUNA 10 FORTUNA 13 FORTUNA 16 FORTUNA 18 FORTUNA 20 FORTUNA 24 FORTUNA 32 FORTUNA 40 Макс. тепловая мощность кВт 12,3 15,3 18,4 20,0 22,3 26,3 34,7 44,1 ...
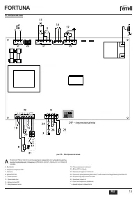
Страница 13 - Электрическая схема; Внимание: Перед подключением; комнатного термостата; или; устройства дистан; необходимо удалить перемычку на клеммной; DIP – переключатели; рис. 20 – Электрическая схема
FORTUNA 13 RU 5.5 Электрическая схема Внимание: Перед подключением комнатного термостата или устройства дистан - ционного управления с таймером необходимо удалить перемычку на клеммной колодке. 2 – Вентилятор3 – Предельный термостат ГВС*7 – Электрод8 – Датчик NTC ГВС11 – Газовый клапан13 – Трехходов...
Страница 14 - ИДЕНТИФИКАЦИОННАЯ ТАБЛИЧКА КОТЛА; Расшифровка обозначений:; NOx; Класс по выбросам NOx; СЕРИЙНЫЙ НОМЕР И ДАТА ИЗГОТОВЛЕНИЯ; Срок службы котла составляет 10 лет.
FORTUNA 14 RU ИДЕНТИФИКАЦИОННАЯ ТАБЛИЧКА КОТЛА Идентификационная табличка находится на наружной стороне корпуса котла. Расшифровка обозначений: Fortuna F 24 Модель котла NOx Класс по выбросам NOx Производитель оставляет за собой право без предварительного уведомления покупателя вносить изменения в к...
Страница 16 - Представитель изготовителя:
Ferroli Heating Equipment (China) Co., Ltd No.9 JianSheDongLu, Taoyuan Economic Development Zone, He Shan Guang Dong, ZIP 529725, Китай Представитель изготовителя: ИЗАО «ФерролиБел». УНП 69065161 Адрес: ул. Заводская, 45, г. Фаниполь, Дзержинский район, Минская область, Республика Беларусь, 222750 Т...