Ferroli Econcept Tech 35 C - инструкции и руководства

model-name

Котел Ferroli Econcept Tech 35 C - инструкции пользователя по применению, эксплуатации и установке на русском языке читайте онлайн в формате pdf

1 Page 1
2 Page 2
3 Page 3
4 Page 4
5 Page 5
6 Page 6
7 Page 7
8 Page 8
9 Page 9
10 Page 10
11 Page 11
12 Page 12
13 Page 13
14 Page 14
15 Page 15
16 Page 16
17 Page 17
18 Page 18
19 Page 19
20 Page 20
21 Page 21
22 Page 22
23 Page 23
24 Page 24
25 Page 25
26 Page 26
27 Page 27
28 Page 28
29 Page 29
30 Page 30
31 Page 31
32 Page 32
33 Page 33

Краткое содержание

Страница 2 - ECONCEPT TECH 35 C; NÁVOD K OBSLUZE, INSTALACI A ÚDRŽB

3540I411 cod. 3 540 I41 1 — 03/ 20 08 (R ev. 0 0 ) ECONCEPT TECH 35 C NÁVOD K OBSLUZE, INSTALACI A ÚDRŽB HASZNÁLATI, BESZERELÉSI ÉS KARBANTARTÁSI UTASÍTÁS INSTRUKCJA OBS ł UGI, INSTALACJI I KONSERWACJI , NÁVOD NA POUŽITIE A ÚDRŽBU ,

Страница 3 - Dante Ferroli

B : FERROLI S.p.A., : Via Ritonda 78/a 37047 San Bonifacio VR, , CEE: • 90/396 • . . . 92/42 • 73/23 ( , 93/68) • 89/336 ( , 93/68). ( , ) Dante Ferroli B " " , . . A . ECONCEPT TECH 35 C 87 RU cod. 3540I411 - 03/2008 (Rev. 00) • , , . . , . • ; . • , , , / . • . • , . , , . • / . • / , . . ...

Страница 5 - reset

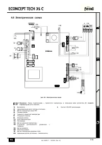
ECONCEPT TECH 35 C 89 RU cod. 3540I411 - 03/2008 (Rev. 00) 1. 1.1 , , ECONCEPT TECH 35 CFERROLI , , . , . . , . ECONCEPT TECH 35 C , . . , . , , . 1.2 . 1 - 1 = 2 = 3 = 4 = 5 =6 = - / - " " 7 = Economy/Comfort - / 8 = 9 = 10 = " " 11 = ( ) 12 = "Eco" ( ) 13 = 14 = 15 = ( ) ec...

Ferroli Котлы Инструкции