Страница 2 - DOMIproject F 24
B Декларация соответствия Изготовитель : FERROLI S.p.A., адрес : Via Ritonda 78/a 37047 San Bonifacio VR, заявляет , что настоящее изделие соответствует следующим директивам CEE: • Директива по газовым приборам 90/396 • Директива по К . П . Д . 92/42 • Директива по низкому напряжению 73/23 ( с измен...
Страница 4 - Указания; Предисловие; Панель
DOMIproject F 24 73 RU 1. Указания по эксплуатации 1.1 Предисловие Уважаемый Покупатель , Благодарим Вас за то , что Вы выбрали настенный котел FERROLI , имеющий самую современную конструкцию , выполненный по передовым технологиям и отличающийся высокой надежностью и качеством изготовления . Просим ...
Страница 5 - Включение
DOMIproject F 24 74 RU 1.3 Включение и выключение Включение • Откройте газовый вентиль , установленный перед котлом . • Подайте на агрегат электропитание . • Установите ручки регулировки температуры воды в системах отопления и ГВС на нужные величины . • Теперь котел готов к автоматическому включению...
Страница 7 - Монтаж
DOMIproject F 24 76 RU 2. Монтаж 2.1 Указания общего характера УСТАНОВКА И НАСТРОЙКА ГОРЕЛКИ ДОЛЖНА ОСУЩЕСТВЛЯТЬСЯ ТОЛЬКО СПЕЦИАЛИЗИРОВАННЫМ ПЕРСОНАЛОМ , ИМЕЮЩИМ ПРОВЕРЕННУЮ КВАЛИФИКАЦИЮ , ПРИ СОБЛЮДЕНИИ ПРИВЕДЕННЫХ В НАСТОЯЩЕМ ТЕХНИЧЕСКОМ РУКОВОДСТВЕ УКАЗАНИЙ , ПРЕДПИСАНИЙ ДЕЙСТВУЮЩЕГО ЗАКОНОДАТЕЛЬ...
Страница 8 - Газовые
DOMIproject F 24 77 RU Характеристики воды в системе В случае , если жесткость воды превышает 25° Fr, используемая вода должна быть надлежащим образом подготовлена , чтобы предотвращать образование накипи на котле . Подготовка используемой воды необходима в случае протяженных систем или частой подач...
Страница 9 - Доступ; Диафрагмы
DOMIproject F 24 78 RU Доступ к клеммной коробке Доступ к клеммной коробке для подключения термостата температуры воздуха в помещении ( поз . 1 рис . 8) или устройства ДУ с таймером ( поз . 2 рис . 8) открывается изнутри котла , как показано на рис . 8. рис . 8 - Доступ к клеммной коробке 1 = Подклю...
Страница 10 - Подсоединение
DOMIproject F 24 79 RU рис . 9 - Замена диафрагмы (A = если котел не установлен / B = Если котел и воздуховоды уже смонтированы ) Подсоединение с помощью коаксиальных труб рис . 10 - Примеры подсоединения с помощью коаксиальных труб ( = Воздух / = Продукты сгорания ) Для коаксиального подсоединения ...
Страница 14 - Техническое; Регулировки; Задание
DOMIproject F 24 83 RU 3. Техническое обслуживание Все нижеописанные операции по регулировке , переоборудованию , вводу в эксплуатацию и техобслуживанию подлежат выполнению исключительно силами специалистов с высокой квалификацией ( удовлетворяющими профессиональным техническим требованиям , предусм...
Страница 15 - Ввод; IN
DOMIproject F 24 84 RU Регулировка давления на горелке В настоящем агрегате , работающем на принципе модуляции пламени , используются две постоянные величины давления : минимальная и максимальная , которые должны соответствовать значениям , приведенным в таблице технических данных для используемого ...
Страница 17 - Анализ
DOMIproject F 24 86 RU B Перед выполнением любых операций внутри котла отключите электропитание и закройте газовый вентиль , установленный перед котлом . рис . 17 - Снятие кожуха Анализ сгорания В верхней части котла предусмотрены две контрольные точки , одна для измерения температуры продуктов сгор...
Страница 18 - Устранение; Диагностика; Таблица
DOMIproject F 24 87 RU 3.4 Устранение неисправностей Диагностика Котел оснащен современной системой самодиагностики . В случае той или иной неисправности котла код неисправности будет индицироваться с помощью 3 светодиодов Некоторые неисправности приводят к постоянной блокировке котла : В этом случа...
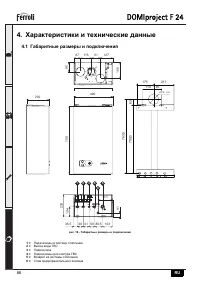
Страница 19 - Характеристики; Габаритные
DOMIproject F 24 88 RU 4. Характеристики и технические данные 4.1 Габаритные размеры и подключения рис . 19 - Габаритные размеры и подключения 1 = Подача воды в систему отопления 2 = Выход воды ГВС 3 = Подвод газа 4 = Подвод воды для контура ГВС 5 = Возврат из системы отопления 6 = Слив предохраните...
Страница 20 - Общий
DOMIproject F 24 89 RU 4.2 Общий вид и основные узлы рис . 20 - Общий вид 5 Закрытая камера 7 Подвод газа 8 Выход воды ГВС 9 Подвод воды для контура ГВС 10 Подача горячей воды в систему отопления 11 Возврат из системы отопления 14 Предохранительный клапан 16 Вентилятор 19 Камера сгорания 20 Блок гор...
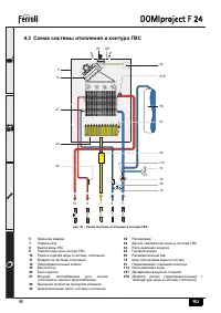
Страница 21 - Схема
DOMIproject F 24 90 RU 4.3 Схема системы отопления и контура ГВС рис . 21 - Схема системы отопления и контура ГВС 5 Закрытая камера 7 Подвод газа 8 Выход воды ГВС 9 Подвод воды для контура ГВС 10 Подача горячей воды в систему отопления 11 Возврат из системы отопления 14 Предохранительный клапан 16 В...
Страница 23 - Диаграммы
DOMIproject F 24 92 RU 4.5 Диаграммы Диаграммы давление - мощность A СНГ B МЕТАН Потери напора циркуляционных насосов A Потери напора в котле 1 - 2 - 3 Скорость циркуляционного насоса A B 0 1 2 3 4 5 6 7 0 500 1.000 1.500 2.000 Q [l/h] H [m H 2 O] A 3 2 1
Страница 24 - Электрическая
DOMIproject F 24 93 RU 4.6 Электрическая схема рис . 22 - Электрическая схема A Внимание : Перед подключением > термостата температуры в помещении или устройства ДУ снимите перемычку на клеммнице . Обозначения 16 Вентилятор 32 Циркуляционный насос системы отопления 38 Расходомер 42 Датчик темпера...