Страница 3 - ВАЖНАЯ ИНФОРМАЦИЯ; руководство; В ХОДЕ МОНТАЖА; Установка
- 3 - ПРЕД УПРЕЖДЕНИЕ ВАЖНАЯ ИНФОРМАЦИЯ Необходимо внимательно прочесть данное руководство , чтобы рационально и безопасно эксплуатировать котел. Бережно храните руководство, поскольку в буду- щем в нем может снова возникнуть необходимость. В случае передачи котла друго- му пользователю, данное руко...
Страница 4 - В ХОДЕ ЭКСПЛУАТАЦИИ; Категория аппарата: II
- 4 - ПРЕД УПРЕЖДЕНИЕ В ХОДЕ ЭКСПЛУАТАЦИИ По причине опасности категорически запрещается закрывать, даже частично, воздухозаборники вытяжной вентиляции в помещении, где установлен котел (стан- дарт UNI 11071 и соответствующие стандарты). Ремонт должен осуществляться только уполномоченными сервисными...
Страница 5 - СОДЕРЖАНИЕ
- 5 - СОДЕРЖАНИЕ 1 ОПИСАНИЕ КОТЛА . . . . . . . . . . . . . . . . . . 6 1.1 Общий вид . . . . . . . . . . . . . . . . . . . . . . . . . . 6 1.2 Отсечной клапан . . . . . . . . . . . . . . . . . . . . . 6 1.3 Панель управления . . . . . . . . . . . . . . . . . . . 6 1.4 Общие характеристики ЖК-диспле...
Страница 6 - ОПИСАНИЕ КОТЛА; На входе системы горячего; Панель управления
- 6 - ЭК СПЛУ АТ АЦИЯ ОПИСАНИЕ КОТЛА 1 ОПИСАНИЕ КОТЛА 1.1 Общий вид Модель и серийный номер котла указаны в гарантийном обязательстве. Рис. 1.1 1 3 2 1 Панель управления 2 Откидная крышка панели управления 3 Глазок для контроля пламени в горелке Рис. 1.3 1.2 Отсечной клапан На входе системы горячего...
Страница 7 - Общие характеристики; УСЛОВНЫЕ ОБОЗНАЧЕНИЯ
- 7 - ЭК СПЛУ АТ АЦИЯ ОПИСАНИЕ КОТЛА 1.4 Общие характеристики ЖК-дисплея Для ознакомления с техническими ха- рактеристиками котла см. раздел «ТЕХ- НИЧЕСКИЕ ХАРАКТЕРИСТИКИ» на стр. 19. Рис. 1.4 УСЛОВНЫЕ ОБОЗНАЧЕНИЯ Данный символ означает, что сам пользователь может пере- запустить котел, нажав кнопку...
Страница 10 - ИНСТРУКЦИИ ПО ЭКСПЛУАТАЦИИ; ИНСТРУКЦИИ ПО ЭКСПЛУА-; Все котлы оснащены системой защиты
- 10 - ЭК СПЛУ АТ АЦИЯ ИНСТРУКЦИИ ПО ЭКСПЛУАТАЦИИ 2 ИНСТРУКЦИИ ПО ЭКСПЛУА- ТАЦИИ 2.1 Предупреждения Убедитесь, что контур систе- мы отопления наполнен во- дой соответствующим обра- зом, даже если котел используется только для горя- чего водоснабжения. В противном случае, необходимо за- полнить конту...
Страница 11 - Работа только в режиме горячего во-; ния
- 11 - ЭК СПЛУ АТ АЦИЯ ИНСТРУКЦИИ ПО ЭКСПЛУАТАЦИИ Работа только в режиме горячего во- доснабжения • Поверните переключатель 12, как пока- зано на рисунке Рис. 2.5. Рис. 2.5 11 12 На ЖК-дисплее последовательно ото- бразятся следующие символы, см. Рис. 2.6. Рис. 2.6 2.3 Температура контура отопле- ния...
Страница 12 - го водоснабжения
- 12 - ЭК СПЛУ АТ АЦИЯ ИНСТРУКЦИИ ПО ЭКСПЛУАТАЦИИ Регулировка температуры системы отопления в зависимости от внешней температуры (без внешнего датчика) Установите регулятор, как показано на рисунке. Рис. 2.10 От 5 до 15°C Между -5 и +5°C Ниже -5°C У квалифицированного специалиста по установке котла ...
Страница 13 - Регулировка; Функция предварительного
- 13 - ЭК СПЛУ АТ АЦИЯ ИНСТРУКЦИИ ПО ЭКСПЛУАТАЦИИ Рис. 2.14 Мин. Макс. Рис. 2.15 Рис. 2.16 Регулировка Установите необходимую температуру воды в системе горячего водоснабжения и уменьшите необходимость смешива- ния горячей воды с холодной. Таким образом Вы сможете оценить пре- имущества автоматическ...
Страница 14 - Положение
- 14 - ЭК СПЛУ АТ АЦИЯ ИНСТРУКЦИИ ПО ЭКСПЛУАТАЦИИ ние горячей воды в момент ее использо- вания, предварительно нагревая воду в котле до желаемой температуры. Для активации функции предварительно- го нагрева нажмите кнопку 13 Рис. 2.19 пока на ЖК-дисплее Рис. 2.20 не появля- ется символ . Рис. 2.19 1...
Страница 15 - ПОЛЕЗНЫЕ РЕКОМЕНДАЦИИ; ОТКРЫТО; Давление; Система отопления
- 15 - ЭК СПЛУ АТ АЦИЯ ПОЛЕЗНЫЕ РЕКОМЕНДАЦИИ 3 ПОЛЕЗНЫЕ РЕКОМЕНДАЦИИ 3.1 Наполнение контура отопле- ния Рис. 3.1 ОТКРЫТО ЗАКРЫТО Кран наполнения контура системы отопления Откройте кран наполнения, см. Рис. 3.1, расположенный под котлом, и проверьте давление в контуре системы отопления при помощи ман...
Страница 16 - Периодическое техническое
- 16 - ЭК СПЛУ АТ АЦИЯ ПОЛЕЗНЫЕ РЕКОМЕНДАЦИИ 3.4 Периодическое техническое обслуживание Для обеспечения эффективной и беспе- ребойной работы котла рекомендуется, чтобы специалист уполномоченного сер- висного центра производил техобслужи- вание и очистку котла, по меньшей мере, один раз в год. В ходе...
Страница 17 - Код отклонения от нормы
- 17 - ЭК СПЛУ АТ АЦИЯ ПОЛЕЗНЫЕ РЕКОМЕНДАЦИИ Чтобы восстановить беспере- бойную работу котла, необхо- димо вызвать специалиста уполномоченного сервисного центра. Отверстие для отвода конденсата за- бито Аварийная блокировка может быть также обусловлена забиванием отверстия для отвода конденсата. В д...
Страница 18 - Неисправность
- 18 - ЭК СПЛУ АТ АЦИЯ ПОЛЕЗНЫЕ РЕКОМЕНДАЦИИ Неисправность Код Блокировка из-за неудачной попытки розжига 01E Блокировка из-за срабатывания термостата безопасности 02E Общая блокировка 03E Недостаточное давление системы 04E Неисправность датчика давления дыма 05E Неисправность датчика NTC в системе ...
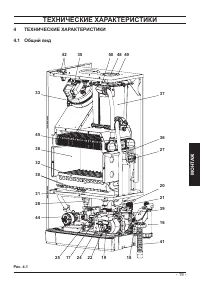
Страница 19 - ТЕХНИЧЕСКИЕ ХАРАКТЕРИСТИКИ
- 19 - МОНТ АЖ ТЕХНИЧЕСКИЕ ХАРАКТЕРИСТИКИ 4 ТЕХНИЧЕСКИЕ ХАРАКТЕРИСТИКИ 4.1 Общий вид Рис. 4.1 44 20 39 19 21 37 16 41 17 22 24 42 35 50 48 49 25 28 30 31 32 33 45 38 27 36 18
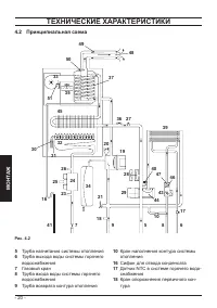
Страница 20 - Принципиальная схема
- 20 - МОНТ АЖ ТЕХНИЧЕСКИЕ ХАРАКТЕРИСТИКИ 4.2 Принципиальная схема Рис. 4.2 5 Труба нагнетания системы отопления 6 Труба выхода воды системы горячего водоснабжения 7 Газовый кран 8 Труба входа воды системы горячего водоснабжения 9 Труба возврата контура отопления 10 Кран наполнения контура системы о...
Страница 21 - * Для доступа к табличке с данными
- 21 - МОНТ АЖ ТЕХНИЧЕСКИЕ ХАРАКТЕРИСТИКИ 19 Насос 20 Автоматический воздуховыпускной клапан 21 Предохранительный клапан 3 бар 22 Заглушка спускного отверстия насоса 23 Отвод для замера давления газа на входе газового клапана 24 Газовый клапан 25 Модулирующее устройство 26 Отвод для замера давления ...
Страница 22 - Электрическая схема
- 22 - МОНТ АЖ ТЕХНИЧЕСКИЕ ХАРАКТЕРИСТИКИ Рис. 4.3 4.3 Электрическая схема 5V L N g/v c m b c c m b M ~ M ~ P n n b b gr r n r gr g 1 m c n n r g gr g gr r r b c 2 3 c n n c c c r OUT GND m c n n t b t c c b c r t r r g gr c g/v 1 3 4 1 4 r n b gr gr 1 2 3 4 5 6 8 9 12 11 13 14 10 7 gr 15 17 16 m c ...
Страница 23 - Газ под давлением
- 23 - МОНТ АЖ ТЕХНИЧЕСКИЕ ХАРАКТЕРИСТИКИ 4.4 Газ под давлением G20 Страна назначения Устройство кате- гории Газ под давлением ГАЗ Норма Мин Макс RU - UA G20 Па 2000 1700 2500 бар 20 17 25 G30 Страна назначения Устройство кате- гории Газ под давлением ГАЗ Норма Мин Макс RU - UA G30 Па 2900 2000 3500...
Страница 24 - Технические данные FEDERICA 24 REC
- 24 - МОНТ АЖ ТЕХНИЧЕСКИЕ ХАРАКТЕРИСТИКИ 4.5 Технические данные FEDERICA 24 REC (Q.ном.) Номинальная тепловая мощность системы отопления/ подачи горячей воды (Hi) kW 25,0 kcal/h 21496 (Q.ном.) Минимальная тепловая мощность системы отопления (Hi) kW 11,0 kcal/h 9458 (Q.ном.) Минимальная тепловая мощ...
Страница 27 - Технические данные FEDERICA 28 REC
- 27 - МОНТ АЖ ТЕХНИЧЕСКИЕ ХАРАКТЕРИСТИКИ 4.6 Технические данные FEDERICA 28 REC (Q.ном.) Номинальная тепловая мощность системы отопления/ подачи горячей воды (Hi) kW 29,0 kcal/h 24936 (Q.ном.) Минимальная тепловая мощность системы отопления (Hi) kW 13,0 kcal/h 11178 (Q.ном.) Минимальная тепловая мо...
Страница 30 - Гидравлическая кривая
- 30 - МОНТ АЖ ТЕХНИЧЕСКИЕ ХАРАКТЕРИСТИКИ 4.7 Гидравлическая кривая Гидравлическая кривая представляет собой зависимость давления (напора), допустимого в системе отопления, от расхода. Модель FEDERICA 24 REC Рис. 4.4 0 100 200 300 400 500 600 700 800 900 1000 1100 1200 1300 1400 0,00 0,06 0,12 0,18 ...
Страница 31 - МОНТАЖ
- 31 - МОНТ АЖ МОНТАЖ 5 МОНТАЖ 5.1 Предупреждения Продукты сгорания котла должны выводиться непо- средственно наружу или в предназначенный для этих це- лей дымоход в соответствии с действующими национальны- ми нормами и местными пра- вилами. Устройство не пригодно для приема конденсата, поступаю- ще...
Страница 32 - Меры предосторожности при
- 32 - МОНТ АЖ МОНТАЖ 5.2 Меры предосторожности при установке Во время установки необходи- мо выполнить следующие ин- струкции: • закрепить котел на прочной стене; • Соблюсти размеры дымовой трубы (см. раздел «Размеры и длина дымо- отводов» на стр. 35) и правильные способы ее установки, приведенные ...
Страница 33 - A B C
- 33 - МОНТ АЖ МОНТАЖ 5.4 Размеры Котел соответствует следующим разме- рам: Рис. 5.2 ø80 ø80 ø100 400 200 47 245 196 80 3 70 0 35 115 142 16 31 60 60 100 257 200 5 6 2 5 4 6 5 6 50 73 350 198 140 130 37 A B C I G - H J - K A B C D E F G H I J K A Дымоотвод / забор воздуха (коакси- альная ø 100/60) B...
Страница 34 - нительный; Установка дымовой трубы
- 34 - МОНТ АЖ МОНТАЖ дачи газа. • Подсоедините предохранительный клапан к сливной воронке, Рис. 5.4. Рис. 5.4 Предохра- нительный клапан Труба для отвода конденсата • Вставьте гибкий трубопровод слива конденсата Рис. 5.4 в домашний тру- бопровод для отвода конденсата или в сливную воронку предохран...
Страница 35 - дов
- 35 - МОНТ АЖ МОНТАЖ НЕПРАВИЛЬНЫЕ способы конструк- ции системы раздвоенного дымоот- вода / воздухозаборного устройства Рис. 5.7 S A S A = воздухозаборное устройство S = дымоотвод 5.8 Размеры и длина дымоотво- дов Дымоотвод/воздухозаборное устройство могут быть следующих видов: C 12 C 32 C 42 C 52 ...
Страница 37 - Расположение вытяжных
- 37 - МОНТ АЖ МОНТАЖ Для достижения максимальной высоты в наличии имеются удлинители. Его максимальная высота с удлините- лями составляет 8,5 м. Предусмотрены также коаксиальные колена Ø 80/125 мм 90° и 45° для уменьшения общей макси- мальной длины труб: Для колена 45 ° уменьшение 0,5 м Для колена ...
Страница 38 - НЕТ; Отводящий патрубок на крыше; Электрические подключения
- 38 - МОНТ АЖ МОНТАЖ M От выходящего фронтально- го отверстия 3000 N От отверстия в гараже НЕТ O Между двумя вертикальными отводящими патрубками на той же стене 1500 P Между двумя горизонтальны- ми отводящими патрубками на той же стене 1 000 Q Над скатом крыши с углом наклона меньше или равном 30° ...
Страница 39 - мостата или зональных кла-
- 39 - МОНТ АЖ МОНТАЖ • Открутите винты и снимите крышку клеммной колодки, см. Рис. 5.17. Рис. 5.17 Подключение к сети электроснабже- ния • Подсоедините токопроводящий кабель, идущий от всеполюсного выключателя, к клеммной колодке электрического пи- тания котла (Рис. 5.18), соблюдая соот- ветствие л...
Страница 40 - Клеммная колодка; Клеммная
- 40 - МОНТ АЖ МОНТАЖ клеммами «1 и 3». Электропровода комнатного термостата необходимо установить между клеммами «1 и 3», см. Рис. 5.20. Ни в коем случае не подсоеди- няйте провода под напряже- нием к клеммам «1 и 3». Рис. 5.20 1 3 Клеммная колодка электропитания Клеммная колодка комнатного термост...
Страница 41 - К комнатному; Установка внешнего датчика; Электропровода для подсоединения
- 41 - МОНТ АЖ МОНТАЖ Рис. 5.22 К комнатному термостату К двухполюсному выключателю 5.12 Установка внешнего датчика температуры (опция) Внешний датчик необходимо установить на наружной стене здания, избегая: • Прямого воздействия солнечных лучей. • Влажных стен или стен, на которых об- разуется плес...
Страница 42 - ние пульта дистанционного; ненную в клеммной колодке комнат-; К двухполюсному; Дистанционное включение с
- 42 - МОНТ АЖ МОНТАЖ 5.14 Электрическое соедине- ние пульта дистанционного управления (опция) Отвинтите соответствующие винты и снимите крышку клеммной колодки (Рис. 5.26). Рис. 5.26 Для подключения пульта дистанцион- ного управления к котлу см. также руко- водство к ПУЛЬТУ ДИСТАНЦИОННОГО УПРАВЛЕНИ...
Страница 43 - заданного значения 60; Настройка коэффициента K
- 43 - МОНТ АЖ МОНТАЖ кнопку , чтобы войти в режим . Рис. 5.30 0 2 1 8 1 21 1 5 6 3 9 Нажмите одновременно кнопки и , чтобы войти в поле введения на- строек (Рис. 5.31). Рис. 5.31 • Нажмите кнопки или , чтобы вывести на дисплей параметр " PM15 " для включения внешнего датчика (Рис. 5.32). Ри...
Страница 44 - Последовательность настройки коэф-
- 44 - МОНТ АЖ МОНТАЖ равна -5 °C, необходимо установить ко- эффициент K на 1,5 (пунктирная линия, см. Рис. 5.34). Последовательность настройки коэф- фициента K Рис. 5.35 11 12 13 • Установите регуляторы 11 и 12, как по- казано на рисунке, см. Рис. 5.35. • Включите электропитание котла, на ЖК-диспле...
Страница 45 - Valori LCD; OK
- 45 - МОНТ АЖ МОНТАЖ Рис. 5.40 0 0,5 1 1,5 2 3 6 4 00 30 90 140 182 200 218 255 Valori LCD N° Settaggio Coeff. K • Через 5 секунд после настройки желае- мого значения на ЖК-дисплее появится надпись OK в подтверждение того, что автоматическое сохранение установ- ленного значения прошло успешно. Рис....
Страница 46 - K REG; насоса
- 46 - МОНТ АЖ МОНТАЖ кнопку , чтобы войти в режим (Рис. 5.45). Рис. 5.45 0 2 1 8 1 21 1 5 6 3 9 Нажмите кнопку , чтобы войти в окно K REG (Рис. 5.46). Рис. 5.46 При помощи кнопок и можно изменять значение. Нажмите кнопку , чтобы выйти из режи- ма (Рис. 5.46). 5.17 Настройка пост-циркуляции насоса Н...
Страница 47 - Значения
- 47 - МОНТ АЖ МОНТАЖ P11 , предназначенного для настройки пост-циркуляции насоса; на ЖК-дисплее последовательно отобразятся следую- щие символы (параметр P11 будет заго- раться поочередно с 44 ). Рис. 5.50 Чтобы изменить настройку, поверните регулятор температуры контура горяче- го водоснабжения, с...
Страница 48 - Выбор частоты повторного
- 48 - МОНТ АЖ МОНТАЖ Рис. 5.55 0 2 1 8 1 21 1 5 6 3 9 • Нажмите одновременно кнопки и , чтобы войти в поле введения на- строек (Рис. 5.56). Рис. 5.56 • Нажмите кнопку или , чтобы вывести на дисплей параметр " PM11" пост-циркуляции насоса (Рис. 5.57). Рис. 5.57 • Измените заданное значение п...
Страница 51 - Примеры гидравлических; Примеры гидравлической системы
- 51 - МОНТ АЖ МОНТАЖ минут. Каждое изменение в сторону увеличения или уменьшения соответствует 2 секун- дам. • Измените заданное значение при помо- щи кнопок или и подождите, пока заданная цифра не начнет мигать (Рис. 5.70). Рис. 5.70 • Для выхода из режима программирова- ния нажмите кнопку . 5.19 ...
Страница 52 - ПОДГОТОВКА К ЭКСПЛУАТАЦИИ; ПОДГОТОВКА К ЭКСПЛУАТА-
- 52 - МОНТ АЖ ПОДГОТОВКА К ЭКСПЛУАТАЦИИ 6 ПОДГОТОВКА К ЭКСПЛУАТА- ЦИИ 6.1 Предупреждения Перед выполнением описан- ных далее действий, убеди- тесь, что двухполюсный вы- ключатель, предусмотренный при установке, находится в положении «выключен». 6.2 Последовательность опера- ций Подача газа Рис. 6.1...
Страница 53 - Пользователь обязан хранить доку-
- 53 - МОНТ АЖ ПОДГОТОВКА К ЭКСПЛУАТАЦИИ Рис. 6.4 • Поверните переключатель функций 12, как показано на рисунке Рис. 6.5, котел перейдет в режим «ожидания зимы» и на ЖК-дисплее отобразятся следую- щие символы, см. Рис. 6.6. Рис. 6.5 11 12 13 Рис. 6.6 • Откройте газовый кран. • Убедитесь, что комнатн...
Страница 54 - ПРОВЕРКА РЕГУЛИРОВКИ ГАЗА; ПРОВЕРКА РЕГУЛИРОВКИ
- 54 - МОНТ АЖ ПРОВЕРКА РЕГУЛИРОВКИ ГАЗА 7 ПРОВЕРКА РЕГУЛИРОВКИ ГАЗА 7.1 Предупреждения Измерив давление газа, тща- тельно закройте отводы, ис- пользованные для замера давления. После проведения всех опера- ций по регулировке газа необ- ходимо опломбировать регу- лировки клапана. Внимание, опасность...
Страница 55 - Проверка минимального давления в
- 55 - МОНТ АЖ ПРОВЕРКА РЕГУЛИРОВКИ ГАЗА стиугольную латунную гайку модулиру- ющего устройства 25 MAX см. Рис. 7.3 (давление увеличивается при повороте по часовой стрелке). Рис. 7.3 26 25 MAКС. 25 МИН. C 24 23 Рис. 7.4 FEDERICA 24 REC - Макс. давление газа на горелке Метан G20 Pa 1130 mbar 11,3 Бута...
Страница 56 - Регулировка розжига горелки
- 56 - МОНТ АЖ ПРОВЕРКА РЕГУЛИРОВКИ ГАЗА Рис. 7.7 FEDERICA 28 REC - Мин. давление газа на горелке Метан G20 Pa 240 mbar 2,4 Бутан G30 Pa 580 mbar 5,8 Пропан G31 Pa 780 mbar 7,8 1 мбар соответствует приблизительно 10 мм H20 7.3 Регулировка розжига горелки • Отключите котел от сети электропита- ния. •...
Страница 58 - • Чтобы выйти из режима программи-
- 58 - МОНТ АЖ ПРОВЕРКА РЕГУЛИРОВКИ ГАЗА Рис. 7.16 • Чтобы выйти из режима программи- рования, установите переключатель функций / регулятор температуры 12 так, как показано на рисунке Рис. 7.17. Рис. 7.17 12 • Тщательно закройте отвод для замера давления 26, см. Рис. 7.3.
Страница 59 - СМЕНА ТИПА ГАЗА
- 59 - ТЕХНИЧЕСКОЕ ОБ С ЛУЖИВ АНИЕ СМЕНА ТИПА ГАЗА 8 СМЕНА ТИПА ГАЗА 8.1 Предупреждения Все действия по приспособле- нию котла к подаваемому типу газа должны производиться специалистами уполномочен- ного сервисного центра. Для приспособления котла к типу газа не- обходимо использовать только детали ...
Страница 60 - ГАЗ
- 60 - ТЕХНИЧЕСКОЕ ОБ С ЛУЖИВ АНИЕ СМЕНА ТИПА ГАЗА Рис. 8.4 • Нажмите кнопку перезапуска 13, см. Рис. 8.2, и пролистайте параметры до P05 , предназначенного для настройки типа газа. На ЖК-дисплее последовательно отобразятся следующие символы (пара- метр P05 будет загораться поочередно с 01 ). Рис. 8...
Страница 61 - Тип газа
- 61 - ТЕХНИЧЕСКОЕ ОБ С ЛУЖИВ АНИЕ СМЕНА ТИПА ГАЗА Рис. 8.8 • Через 5 секунд после настройки типа газа на ЖК-дисплее появится надпись OK в подтверждение того, что автоматическое сохранение установленного значения прошло успешно. Рис. 8.9 Настройка типа газа второго уровня • Нажмите кнопку перезапуск...
Страница 63 - ТЕХНИЧЕСКОЕ ОБСЛУЖИВАНИЕ
- 63 - ТЕХНИЧЕСКОЕ ОБ С ЛУЖИВ АНИЕ ТЕХНИЧЕСКОЕ ОБСЛУЖИВАНИЕ 9 ТЕХНИЧЕСКОЕ ОБСЛУЖИВАНИЕ 9.1 Предупреждения Описанные в данной главе дей- ствия должны выполняться толь- ко квалифицированными специа- листами, рекомендуется обращаться в уполномоченный сервисный центр. Для обеспечения надежной и беспереб...
Страница 65 - сти; Проверка КПД котла; См. также раздел «Настройка
- 65 - ТЕХНИЧЕСКОЕ ОБ С ЛУЖИВ АНИЕ ТЕХНИЧЕСКОЕ ОБСЛУЖИВАНИЕ ченного сервисного центра производил пери- одическую (хотя бы один раз в год) проверку тяги и исправности дымовой трубы и возду- хопровода. Для замера перепада давления используйте отводы для замера давления, см. Рис. 9.5. Рис. 9.5 • Включи...
Страница 68 - Компания; Federica Bugatti
- 68 - 10 ГАРАНТИЙНЫЕ ОБЯЗАТЕЛЬ- СТВА Компания Federica Bugatti гарантирует на- стоящее итальянское качество. По вопросам монтажа, ввода оборудования в эксплуатацию и последующего технического и сервисного обслуживания рекомендуем Вам обращаться в авторизованный Сервисный Центр Federica Bugatti. По ...
Страница 70 - 1 ГАРАНТИЙНЫЙ ТАЛОН No
- 70 - 11 ГАРАНТИЙНЫЙ ТАЛОН № Модель оборудования Серийный номер Сведения о продаже Фирма продавец Адрес Телефон Ф.И.О. продавца Дата продажи М.П. Подпись Сведения о владельце: Ф.И.О. Адрес установки Телефон Оборудование получено в заводской упаковке, с полной комплектацией. Претензий к внешнему вид...