Electrolux FSB 15 Mpi - инструкции и руководства

Котел Electrolux FSB 15 Mpi - инструкции пользователя по применению, эксплуатации и установке на русском языке читайте онлайн в формате pdf

1 Page 1
2 Page 2
3 Page 3
4 Page 4
5 Page 5
6 Page 6
7 Page 7
8 Page 8
9 Page 9
10 Page 10
11 Page 11
12 Page 12
13 Page 13
14 Page 14
15 Page 15
16 Page 16
17 Page 17
18 Page 18
19 Page 19
20 Page 20
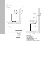
21 Page 21
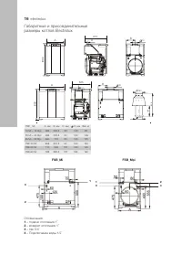
22 Page 22
23 Page 23
24 Page 24
25 Page 25
26 Page 26
27 Page 27
28 Page 28

Краткое содержание

Страница 2 - electrolux; Содержание

2 electrolux Инструкция по эксплуатациинапольных газовых котлов с чугунным теплообменникомElectrolux серии FSB Мы благодарим Вас за сделанный выбор! Вы приобрели качественный и высокотехнологичный прибор, пожалуйста, перед использованием внимательно ознакомьтесь с инструкцией по монтажу и эксплуатац...

Страница 3 - газовые котлы; Внутренняя структура котла; Идентификация котла

газовые котлы 3 Внутренняя структура котла FSB ___ Mi FSB ___ Mpi 1 Корпус котла 2 Дефлектор 3 Труба возврата отопления 4 Насос отопления 5 Защитный экран горелки 6 Датчик давления 7 Предохранительный клапан 8 Корпус панели управления 9 Автоматический воздухоотводчик 10 Чугунный теплообменник 11 Тру...

Страница 4 - Циркуляционные насосы; чтобы получить доступ к оси ротора

4 electrolux Циркуляционные насосы Газовые котлы моделей FSB __ Mi;FSB ___ Mpi устанавливаются только в закрытых отопительных системах с принудительной циркуляцией теплоносителя. На приведенном ниже графике представлена характеристика циркуляционного насоса отопления, встроенного в котлы серии FSB _...

Electrolux Котлы Инструкции