Страница 3 - Содержание
. Содержание Меры предосторожности .................................................................................................................. 4 Краткое руководство по использованию ......................................................................................... 5 Работа с устройство...
Страница 4 - Уважаемый покупатель!
. 3 Уважаемый покупатель! Благодарим Вас за выбор продукции, выпускаемой под торговой маркой «DEXP». Мы рады предложить Вам изделия, разработанные и изготовленные в соответствии с высокими требованиями к качеству, функциональности и дизайну. Перед началом эксплуатации прибора внимательно прочитайте ...
Страница 5 - Меры предосторожности; Служебные кухни в магазинах, офисах и других рабочих помещениях
. 4 1. Меры предосторожности Внимание: соблюдайте перечисленные меры предосторожности при использовании посудомоечной машины. Данное оборудование предназначено только для бытового использования и использования в следующих условиях: Служебные кухни в магазинах, офисах и других рабочих помещениях . ...
Страница 6 - МП; AA BB
. 5 2. Внимание: ножи и другие острые предметы должны быть помещены в корзину острием вниз или уложены горизонтально. Убедитесь, что моющее средство отсутствует в отсеке после завершения цикла мойки. Не помещайте пластиковую посуду в посудомоечную машину без специальной маркировки. Используйте...
Страница 8 - Панель управления; Кнопка Программа: нажмите кнопку для выбора программы.; Основные характеристики посудомоечной машины; Вид спереди
. 7 3. Работа с устройством. Внимательно прочтите данный раздел перед началом эксплуатации посудомоечной машины! Панель управления 1. Кнопка Вкл./Выкл.: для включения/выключения питания.2. Кнопка Программа: нажмите кнопку для выбора программы. 3. Индикатор программы: показывает, какая программа выбр...
Страница 9 - Вид сзади; Перед началом использования; Отрегулируйте уровень жесткости воды.
. 8 Вид сзади 1. Верхние разбрызгиватели.2. Поддон для столовых приборов.3. Верхняя корзина.4. Внутренняя трубка.5. Нижняя корзина.6. Контейнер для смягчителя.7. Дозатор.8. Полка для кружек.9. Разбрызгиватели.10. Фильтр в корпусе.11. Муфта для впускной трубы.12. Сливная труба. 4. Перед началом испол...
Страница 10 - Регулировка расхода соли; глий; Смягчитель воды
. 9 Регулировка расхода соли Посудомоечная машина позволяет отрегулировать использование соли в зависимости от жесткости воды. Это необходимо для оптимизации расхода соли. Для регулировки расхода соли выполните следующие действия: 1. Откройте дверцу, включите посудомоечную машину.2. Зажмите кнопку П...
Страница 12 - С. Наполнение дозатора для ополаскивателя; Дозатор для ополаскивателя; Индикатор изменяется следующим образом:
. 11 С. Наполнение дозатора для ополаскивателя Дозатор для ополаскивателя Ополаскиватель добавляется во время последнего ополаскивания для того, чтобы капли воды не оставляли пятна и разводы на посуде. Ополаскиватель также улучшает сушку посуды, так как вода быстрее стекает с нее. Данная посудомоечн...
Страница 13 - Регулировка дозатора ополаскивателя; Ручка регулировки ополаскивателя
. 12 1. Чтобы открыть дозатор, поверните крышку до стрелки «открыть» (влево).2. Налейте ополаскиватель в дозатор, не переливайте ополаскиватель.3. Поставьте крышку на место, выровняв со стрелкой «открыть» и закрутите ее, повернув в положение «закрыть» (вправо). Примечание: Вытрите капли ополаскивате...
Страница 14 - Существует три типа моющих средств:
. 13 D. Функция моющего средства Моющие средства, содержащие химические компоненты, необходимы для удаления грязи посуды и из посудомоечной машины. Большинство моющих средств коммерческого качества подходят для этой цели. Внимание! Используйте только моющие средства, предназначенные для посудомоечны...
Страница 15 - Количество используемого моющего средства; А – отсек для моющего средства для основного цикла мытья.; Закройте крышку и нажмите, пока замок не защелкнется.
. 14 Количество используемого моющего средства Примечание: Если крышка закрыта, нажмите на кнопку. Крышка откроется. Добавляйте моющее средство перед началом мойки. Используйте моющее средство для посудомоечных машин. Внимание: Храните моющее средство в недоступном для детей месте. Добавление моющег...
Страница 16 - Загрузка корзин посудомоечной машины; Рекомендации; Посуда и столовые приборы, неподходящие; Нежаропрочная пластиковая посуда
. 15 Примечание: Информация о количестве моющего средства о программе приведена на последней странице. Количество моющего вещества также может отличаться в зависимости от степени загрязнения и жесткости воды. Соблюдайте рекомендации производителя моющего средства. 5. Загрузка корзин посудомоечной ма...
Страница 17 - Выгрузка посуды
. 16 Поместите посуду следующим образом: 1) Чашки, стаканы, кастрюли/сковородки дном вверх.2) Изогнутые предметы или предметы с углублениями следует располагать наклонно, чтобы вода могла стекать свободно. 3) Ставьте посуду так, чтобы она не могла упасть.4) Посуды следует располагать так, чтобы разб...
Страница 18 - Регулировочная ручка
. 17 Загрузка нижней корзины В нижнюю корзину следует ставить тяжелые предметы и трудно отмываемую посуду, например, кастрюли, сковородки, крышки, сервировочную посуду и чашки, как показано на рисунке ниже. Рекомендуется размещать сервировочную посуду и крышки по краям корзин, чтобы они не блокирова...
Страница 20 - Запуск программы для мытья посуды; Таблица моечных циклов
. 19 6. Запуск программы для мытья посуды Таблица моечных циклов Примечание: значок * обозначает необходимость добавления ополаскивателя. Программа Информация о программе Описание цикла Моющее средство Замачивание/ основная Время (мин) Потребление энергии (кВт/ч) Вода (л) Ополаскива тель Интенсивная...
Страница 21 - Изменение программы; раздастся; Включение посудомоечной машины
. 20 2. Залейте моющее средство. 3. Вставьте вилку в розетку, характеристики энергоснабжения 220-240 В/ 50 Гц, характеристикирозетки 10 А, 250 В. Убедитесь, что водоснабжение подключено. 4. Откройте дверцу, нажмите кнопку Вкл./выкл, загорится индикатор питания. 5. Нажмите кнопку Программа, программы...
Страница 22 - Система фильтрации; из нижнего разбрызгивателя и смываются в слив.; Фильтр грубой очистки; Осторожно откройте дверцу
. 21 Горячая посуда наиболее подвержена повреждению, следует подождать 15 минут, чтобы посуда остыла прежде, чем вынимать ее из посудомоечной машины. Выгрузка посуды Выгрузите посуду из нижней корзины, затем из верхней. Это поможет избежать стекания воды и з верхней корзины на посуду снизу. 7. Ухо...
Страница 24 - Уход за посудомоечной машиной; Используйте полироль для бытовой техники для ухода за корпусом.; Очистка дверцы
. 23 Уход за посудомоечной машиной Протрите панель управления слегка смоченной мягкой тканью. Тщательно высушите ее после уборки. Используйте полироль для бытовой техники для ухода за корпусом. Нельзя использовать острые предметы, абразивные губки и сильнодействующие чистящие средства для ухода за п...
Страница 25 - Инструкция по установке; Подготовка к установке; Внимательно прочтите инструкцию перед началом установки.; Схема 1
. 24 8. Инструкция по установке Внимание: Подключение трубопроводов и электрического оборудования должно осуществляться квалифицированным специалистом. Перед установкой посудомоечной машины отключите питание во избежание поражения электрическим током. Подготовка к установке Место установки посудомое...
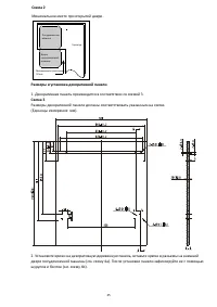
Страница 26 - Схема 2; Минимальное место при открытой двери.; Размеры и установка декоративной панели
. 25 Схема 2 Минимальное место при открытой двери. Размеры и установка декоративной панели 1. Декоративная панель производится в соответствии со схемой 3.Схема 3 Размеры декоративной панели должны соответствовать указанным на схеме. ( Е диницы измерения: мм) . 2. Установите крюки на декоративную дер...
Страница 27 - Схема 4а; Схема 4b; Установка декоративной панели
. 26 Схема 4а Установка декоративной панели Схема 4b Установка декоративной панели 1. Выньте 4 коротких шурупа. 2. Вставьте 4 длинных шурупа. Выньте 4 коротких шурупа. Вставьте 4 длинных шурупа.
Страница 28 - Схема 5; Регулировка натяжения дверной пружины
. 27 Регулировка натяжения дверной пружины На заводе произведена регулировка необходимого натяжения дверных пружин. При установке декоративной деревянной панели, необходимо произвести регулировку натяжения пружин. Поверните регулировочный винт, чтобы усилить или ослабить натяжение (см. схему 5) При ...
Страница 29 - Установка посудомоечной машины; специальные крепления. Следуйте схеме для установки креплений.; Схема 7
. 28 Установка посудомоечной машины 1. Установите декоративную панель на внешнюю дверь посудомоечной машины, используя специальные крепления. Следуйте схеме для установки креплений. 2. Отрегулируйте натяжение дверных пружин, поворачивайте регулировочный винт по часовой стрелке, чтобы затянуть пружин...
Страница 30 - на схеме, чтобы проверить уровень посудомоечной машины.; Схема 8; Регулировка ножек; Информация о подключение электричества
. 29 Необходимо выровнять посудомоечную машину по уровню для надлежащей работы. 1. Положите спиртовой уровень на дверь и разъёмы для корзин внутри бака, как показано на схеме, чтобы проверить уровень посудомоечной машины. 2. Выровняйте посудомоечную машину путем регулировки трех ножек.3. При выравни...
Страница 31 - Подключение холодной воды; Слив воды из шлангов; не может быть более 4 м, в противном случае
. 30 Подключение шлангов подачи воды. Подключение посудомоечной машины к сети водоснабжения должно осуществляться с помощью комплекта новых шлангов. Давление воды должно быть в пределах от 0,04 МПа и 1 МПа. Обратитесь в сервисный центр, если давление ниже установленного минимума. 1. Достаньте компле...
Страница 32 - Возможные проблемы и их решение
. 31 Подключение к канализационной трубе Вставьте сливной шланг в канализационную трубу с диаметром минимум 40 мм или подключите его к раковине. Убедитесь, что шланг не перегибается. Высота раковины должна быть менее 1000 мм. Запуск посудомоечной машины Перед запуском посудомоечной машины проверьте ...
Страница 34 - Коды ошибок; Коды
. 33 Выбрана неправильная программа. В коротких программах температура мойки низкая. Выбирайте длительные программные циклы. Посуда с плохим покрытием. Посуда и приборы такого типа не подходят для мытья в посудомоечной машине. Коды ошибок При возникновении некоторых неисправностей посудомоечная маши...
Страница 35 - Техническая информация; мм
. 34 10. Техническая информация Высота: 815 мм Ширина: 598 мм Глубина: 550 мм (с закрытой дверцей) Электропитание: См. паспортную табличку Вместимость: 1 4 комплектов 598 550 (с закрытой дверц ей) 815 1150
Страница 36 - Корзина для столовых приборов
. 35 Загрузка посудомоечной машины в соответствии со стандартной программой EN50242: 1. Верхняя корзина 2. Нижняя корзина Чашки Блюдца Стаканы Маленькая сервировочная тарелка Средняя сервировочная тарелка Большая сервировочная тарелка Десертное блюдо Обеденная тарелка Тарелка для супа Овальное блюдо...
Страница 37 - Технические характеристики; Уровень шума
. 36 Корзина для столовых приборов может находиться в двух положениях: Положение 1: Поднимите левую корзинку вверх, левая корзинка будет под наклоном. Положение 2: опустите левую корзинку в нижнее положение, левая корзинка будет стоять ровно. 11. Технические характеристики Стандартное количество ком...
Страница 38 - Показатели энергоэффективности
. 37 12. Правила и условия монтажа, хранения, перевозки (транспортировки),реализации и утилизации Хранение и транспортировка устройства должны производиться в сухом помещении.Устройство требует бережного обращения, оберегайте его от воздействия пыли, грязи, ударов,влаги, огня и т.д. Реализация у...
Страница 39 - Дополнительная информация; Уполномоченное изготовителем лицо: ООО «Атлас»,
. 38 14. Дополнительная информация Изготовитель: Фошань Шуньдэ Мидеа Вошинг Эпплайенсиз ЭмЭфДжи Ко., Лтд. Шоссе Ганцянь 20, Бэйцзяо, р-н Шуньдэ, Фошань, пров. Гуандун, Китай. Уполномоченное изготовителем лицо: ООО «Атлас», 690068, Приморский край, г. Владивосток, пр-т 100 лет Владивостоку, 155, корп...