Страница 2 - Il costruttore non
2 Производитель BIEMMEDUE S.p.A. Адрес производства Via Industria, 12 12062 Cherasco (CN) - ITALIA Tel. 0172 / 48.61.11 - Fax 0172 / 48.82.70 MODELLI MODELES MODELLE SP 30, SP 60 MODELS Модели Prima di usare il generatore, si prega di leggere con attenzione tutte le istruzioni d’uso riportate di seg...
Страница 19 - ОПИСАНИЕ; передается; Нагреватели серии SP могут работать с горелками на; Внимание; Могут; ОБЩИЕ РЕКОМЕНДАЦИИ; Внимание; Следующие операции должны выполняться; ЭЛЕКТРИЧЕСКИЕ СОЕДИНЕНИЯ И НАСТРОЙКИ
19 RU ОПИСАНИЕ Теплогенераторы серии SP предназначены для обогрева помещений большой и средней площади, в которых требуется постоянное отопление. Тепло производится путем сжигания и тепло от дыма , передается нагреваемому воздуху путём соприкосновения с металлические стенки камеры сгорания. Камера с...
Страница 20 - • включите выключатель электрического щита; выключения
20 RU • подключить такие аксессуары, как, например, выносной термостат через специальные разъемы на блоке управления. После завершения всех этих операций, тщательно проверьте все электрикие соединения на соответствии схеме подключения и проверьте настройки термостата F («Технические характеристики»)...
Страница 21 - ЧИСТКА ГОРЕЛКИ; Для эффективной работы нагревателя горелка должна; ЧИСТКА ВЕНТИЛЯТОРА; Для транспортировки или перемещения нагревателя; Перед перемещением нагревателя:; Удалить грязь и посторонние материалы из сетки
21 RU Чтобы добраться до внутренней части теплообменника и камеры сгорания, надо снять горелку (А) и заднюю нижнюю панель (С). Насколько возможно проконтролировать панель теплообменника (Е) и перегородки (D): Удалите сажу и посторонние материалы с помощью пылесоса или очистителя труб ЧИСТКА ГОРЕЛКИ ...
Страница 22 - НЕИСПРАВНОСТИ В РАБОТЕ: ПРИЧИНЫ И СПОСОБЫ УСТРАНЕНИЯ
22 RU НЕИСПРАВНОСТИ В РАБОТЕ: ПРИЧИНЫ И СПОСОБЫ УСТРАНЕНИЯ НЕИСПРАВНОСТИ В РАБОТЕ ПРИЧИНЫ СПОСОБЫ УСТРАНЕНИЯ Нагреватель не запускается • Отсутствует питание • Проверить работу и положение главного выключателя • Проверьте шнур питания • Проверьте электрические соединения • Проверьте предохранители •...
Страница 23 - ОС Продукции ООО «ГОСТЭКСПЕРТСЕРВИС»; Товар соответствует требованиям технического регламента:; ТР «О безопасности машин и оборудования»
23 СЕРТИФИКАЦИЯ ПРОДУКЦИИ Товар сертифицирован на территории России органом по сертификации: РОСС RU.0001.11АB51 ОС Продукции ООО «ГОСТЭКСПЕРТСЕРВИС» Юридический адрес: РФ, 109599, г. Москва, ул. Краснодарская, д.74, корп.2, пом. XII Фактический адрес: РФ, 109599, г. Москва, ул. Краснодарская, д.74,...
Страница 24 - Гарантийные обязательства; В гарантийном ремонте может быть отказано в следующих случаях:
24 Гарантийные обязательства Теплогенераторы (нагреватели воздуха) Ballu Biemmedue относятся к промышленному тепловому оборудованию и предназначены для работы на открытых/полузакрытых площадках и обогрева/просушки хорошо проветриваемых помещений. На тепловое оборудование Ballu Biemmedue, продаваемое...
Страница 26 - РЕЛЕ ВЕНТИЛЯТОРА
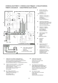
26 SCHEMA ELETTRICO - SCHEMA ELECTRIQUE - SCHALTSCHEMA WIRING DIAGRAM – ЭЛЕКТРИЧЕСКАЯ СХЕМА M MOTORE VENTILATORE MOTEUR DU VENTILATEUR VENTILATOR MOTOR FAN MOTOR ДВИГАТЕЛЬ ВЕНТИЛЯТОРА F TERMASTATO VENTILATORE, F THERMOSTAT VENTILATEUR, F LUFTREGLER, F FAN THERMOSTAT, F ТЕРМОСТАТ ВЕНТИЛЯТОРА, F SB SP...