Страница 2 - BAXI; Компания
2 Уважаемый покупатель ! Мы убеждены , что приобретенное Вами изделие будет соответствовать всем Вашим требованиям . Приобретение одного из изделий BAXI отвечает вашим ожиданиям : хорошая работа , простота и легкость пользования . Сохраните это руководство , и пользуйтесь им в случае возникновения к...
Страница 3 - СОДЕРЖАНИЕ
Luna HT 1.450-1.550-1.650 содержание 3 СОДЕРЖАНИЕ Руководство для пользователя 1. Подготовка к установке ....................................................................................................................... 4 2. Подготовка к первому пуску ..............................................
Страница 4 - FERNOX Rigeneratore; Подготовка
Luna HT 1.450-1.550-1.650 руководство для пользователя газовые настенные котлы 4 Руководство для пользователя 1. Подготовка к установке . Котел предназначен для нагрева воды не выше температуры кипения при атмосферном давлении . Он подключается к системе отопления в соответствии с его характеристика...
Страница 9 - Рис
Luna HT 1.450-1.550-1.650 руководство для пользователя газовые настенные котлы 9 3.7 Таблица параметров для установки пользователем . № параметра Описание параметра Значение , установленное на фабрике Интервал Р 1 Установка времени - 0…23:59 Р 5 Установка минимальной температуры системы отопления (°...
Страница 12 - Общие; Контур
Luna HT 1.450-1.550-1.650 руководство для технического персонала газовые настенные котлы 12 Руководство для технического персонала 8. Общие сведения . Нижеследующие указания и замечания составлены для того , чтобы помочь квалифицированному специалисту проводить без ошибок установку и техническое обс...
Страница 13 - FERNOX Protettivo
Luna HT 1.450-1.550-1.650 руководство для технического персонала газовые настенные котлы 13 1.2 эксплуатируемое оборудование : Перед установкой котла отопительное оборудование должно быть предварительно очищено от грязи и отложений , используя вещества , имеющиеся в свободной продаже ( см . пункт 1....
Страница 15 - ВНИМАНИЕ
Luna HT 1.450-1.550-1.650 руководство для технического персонала газовые настенные котлы 15 12. Установка дымохода и воздуховода . Ниже описываются аксессуары , поставляемые с котлом и обеспечивающие простую установку котла . Котел специально спроектирован с возможностью подсоединения к коаксиальной...
Страница 18 - Внимание; = 15m L
Luna HT 1.450-1.550-1.650 руководство для технического персонала газовые настенные котлы 18 Варианты дымоотводящей системы по раздельным трубам с горизонтальными наконечниками . Внимание ! Необходимо обеспечить горизонтальный наклон труб в сторону котла не менее 1 см на каждый метр длины . Убедитесь...
Страница 20 - Присоединение
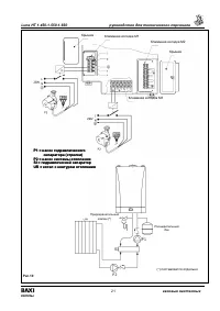
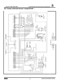
Luna HT 1.450-1.550-1.650 руководство для технического персонала газовые настенные котлы 20 13. Подключение к электропитанию Электробезопасность котла гарантируется только при правильном заземлении в соответствии с действующими нормативами . С помощью прилагаемого трехжильного кабеля подключите коте...
Страница 22 - LUNA HT; SIEMENS
Luna HT 1.450-1.550-1.650 руководство для технического персонала газовые настенные котлы 22 - Потери напора в теплообменниках производительность , л / ч График 1 При давлении в системе 1-1,5 бар минимальный напор воды в котле должен быть следующим : Модель LUNA HT Минимальная производительность л / ...
Страница 23 - PROG; «kt»
Luna HT 1.450-1.550-1.650 руководство для технического персонала газовые настенные котлы 23 - QAA 73: параметры , задаваемые установщиком ( сервис - функции ) Нажав и удерживая не менее 3 секунд обе кнопки PROG , Вы получите доступ к списку параметров , которые могут быть выведены на монитор или зад...
Страница 24 - QA; без; климатическим; kt; параметр
Luna HT 1.450-1.550-1.650 руководство для технического персонала газовые настенные котлы 24 13.4 . Присоединение датчика уличной температуры . Датчик уличной температуры фирмы SIEMENS модели QA С 34 ( заказывается отдельно ) подсоединяется к клеммам 7-8 клеммной колодки М 2 ( рис .9). Порядок устано...
Страница 25 - сняв
Luna HT 1.450-1.550-1.650 руководство для технического персонала газовые настенные котлы 25 ТМ = температура воды на подаче в контур отопления Те = температура наружного воздуха График 4 с ) c AGU2.500 для управления низкотемпературным оборудованием (« теплые полы »). Для подсоединения и управления ...
Страница 26 - NTC
Luna HT 1.450-1.550-1.650 руководство для технического персонала газовые настенные котлы 26 Рис . 11 с ) c AGU2.500 для управления низкотемпературным оборудованием (« теплые полы »). Для подсоединения и управления AGU2.500 смотри инструкции , прилагаемые к данному оборудованию . В этом случае некото...
Страница 27 - Пояснения; SI
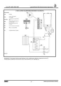
Luna HT 1.450-1.550-1.650 руководство для технического персонала газовые настенные котлы 27 СХЕМА ПРИСОЕДИНЕНИЯ ВНЕШНЕГО БОЙЛЕРА Пояснения UB бойлер UR котел с контуром отопления M2, М 3 клеммные колодки М 2 и М 3 SB датчик NTC приоритета системы ГВС Р 1 насос гидравлической стрелки Р 2 насос систем...
Страница 28 - Pi; Pl
Luna HT 1.450-1.550-1.650 руководство для технического персонала газовые настенные котлы 28 14. Настройка газового клапана . Для регулировки газового клапана выполните последовательно следующие операции : 1) регулировка максимальной мощности . Проверьте , чтобы содержание СО 2 , измеренное в дымоотв...
Страница 29 - ВАЖНО
Luna HT 1.450-1.550-1.650 руководство для технического персонала газовые настенные котлы 29 Таб .1 G20 – 2H – 20 мбар ( природный газ , номинальное давление - 20 мбар ) G31 – 3P-37 мбар ( пропан , номинальное давление – 37 мбар ) Содержание СО 2 при максимальной потребляемой тепловой мощности 8,7 % ...
Страница 30 - Таб
Luna HT 1.450-1.550-1.650 руководство для технического персонала газовые настенные котлы 30 15. Установка параметров котла . Изменить параметры котла может только квалифицированный технический специалист . Для этого необходимо : а ) одновременно нажимайте ( примерно 3 сек ) кнопки , расположенные на...
Страница 36 - Модель; NO
Luna HT 1.450-1.550-1.650 руководство для технического персонала газовые настенные котлы 36 23. Технические характеристики Модель котла LUNA HT 1.450 1.550 1.650 Категория II 2H3P II 2H3P II 2H3P Максимальная потребляемая тепловая мощность котла кВт 46,4 56,7 67,0 Минимальная потребляемая тепловая м...