Baxi Luna Blue 1.180 i / 1.240 Fi - Инструкция по эксплуатации

Baxi Luna Blue 1.180 i / 1.240 Fi

Котел Baxi Luna Blue 1.180 i / 1.240 Fi - инструкция пользователя по применению, эксплуатации и установке на русском языке. Мы надеемся, она поможет вам решить возникшие у вас вопросы при эксплуатации техники.

Если остались дополнительные вопросы — свяжитесь с нами через контактную форму.

1 Страница 1
2 Страница 2
3 Страница 3
4 Страница 4
5 Страница 5
6 Страница 6
7 Страница 7
8 Страница 8
9 Страница 9
10 Страница 10
11 Страница 11
12 Страница 12
13 Страница 13
14 Страница 14
15 Страница 15
16 Страница 16
17 Страница 17
18 Страница 18
19 Страница 19
20 Страница 20
21 Страница 21
22 Страница 22
23 Страница 23
24 Страница 24
25 Страница 25
26 Страница 26
27 Страница 27
28 Страница 28
29 Страница 29
30 Страница 30
31 Страница 31
32 Страница 32
33 Страница 33
34 Страница 34
35 Страница 35
36 Страница 36
37 Страница 37
38 Страница 38
39 Страница 39
40 Страница 40
Страница: / 40

Содержание:

  • Страница 2 – BAXI
  • Страница 3 – Рисунок 1
  • Страница 4 – –comfort–; Рисунок 2; Рисунок 3а; Наполнение установки; Важно
  • Страница 5 – Рисунок 4
  • Страница 6 – Общие указания; Внимание; Операции перед монтажом; Система хозяйственной воды; Инструкция для установщика; Рисунок 5
  • Страница 7 – Рисунок 6; Плита крепления котла на стене; Альтернативный способ прикрепления котла к стене
  • Страница 12 – sx; CO
  • Страница 13 – Подключение к электросети
  • Страница 17 – Наладка электронной платы
  • Страница 18 – Проверка параметров сгорания
  • Страница 19 – соответствующий спускной кран; Чистка фильтра холодной воды
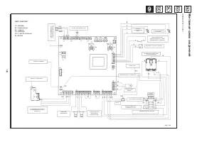
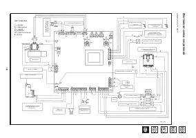
  • Страница 20 – Функциональная схема
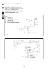
  • Страница 28 – Присоединение внешнего бойлера
  • Страница 29 – Подключение внешнего зонда
  • Страница 30 – ВАЖНО
  • Страница 34 – Технические характеристики; Модель котла
  • Страница 40 – АО “ВАХI”
Загрузка инструкции

BLUE

Magas hozamú fali gázkazánok

Centrale de perete de înalt randament, cu gaz

Kotły ścienne gazowe o wysokiej sprawności

Závěsné plynové kotle s vysokou účinností

Настенные газовые котлы высокой тепловой отдачи

Felhasználói és szerelői kézikönyv

Manual de instrucţiuni destinat utilizatorului şi instalatorului

Instrukcja dla użytkownika i instalatora

Návod k použití určený pro uživatele a technika

Руководство по эксплуатации для пользователя и установщика

A

BAXI S.p.A.

a lakossági hőfejlesztő és szaniter termékek (fali gázkazán, álló kazán, elektromos vízmelegítő és acél melegítőlapok) gyártásának egyik vezető európai képviselője, megszerezte az UNI EN ISO 9001 szabvány szerinti CSQ minősítést. Ez a minősítés

igazolja, hogy a Bassano del Grappában található

BAXI S.p.A.

, amely a jelen kazánt is gyártotta, olyan minőségbiztosítási rendszerrel rendelkezik, amely a legszigorúbb előírásoknak – UNI EN ISO 9001 – is megfelel és a gyártás/disztribúció összes fázisát és szereplőjét

felöleli.

BAXI S.p.A.

, una dintre cele mai mari companii din Europa în domeniul producţiei de echipamente termice şi sanitare de uz casnic (centrale termice de perete cu gaz, centrale termice de sol, boilere electrice şi vetre din oţel) a obţinut certificarea CSQ în conformitate

cu normele UNI EN ISO 9001. Acest document certifică faptul că Sistemul de Calitate folosit de

BAXI S.p.A.

din Bassano del Grappa, unde a fost fabricată această centrală, corespunde celei mai severe dintre norme - UNI EN ISO 9001 - cu privire la toate fazele de

organizare şi la protagoniştii săi în procesul de producţie/distribuţie.

BAXI S.p.A

., jeden z liderów na europejskim rynku producentów urządzeń grzewczych do użytku domowego (kotły ścienne gazowe, kotły stojące, elektryczne podgrzewacze wody i stalowe płyty grzejne), otrzymała certyfikat CSQ według norm UNI EN ISO 9001.

Atest ten gwarantuje, że System Kontroli Jakości stosowany w

BAXI S.p.A.

w Bassano del Grappa, gdzie wyprodukowano niniejszy kocioł, spełnia najbardziej rygorystyczną normę - UNI EN ISO 9001 - dotyczącą wszystkich faz organizacji i wszystkich uczestników

procesu produkcji/ dystrybucji.

BAXI a.s.

je vedoucím evropským podnikem v oboru výroby přístrojů k topení a ohřevu užitkové vody určených pro domácnosti (závěsné plynové kotle, stacionární kotle, elektrické ohřívače vody a ocelová topná tělesa); podnik získal certifikát CSQ podle norem UNI

EN ISO 9001. Toto osvědčení je zárukou, že kvalitativní systém používaný v podniku

BAXI a.s.

v Bassano del Grappa, kde byl tento kotel vyroben, odpovídá nejpřísnější normě UNI EN ISO 9001, která se týká všech jednotlivých fází výrobního i distribučního procesu

a příslušných pracovníků.

АО “BAXI”

, одно из ведущих предприятий в Европе по производству отопительного и сантехнического оборудования бытового назначения (в частности, настенные газовые котлы, напольные котлы, электрические

водонагреватели и стальные нагревательные плиты), получило сертификат CSQ согласно норме UNI EN ISO 1900. Этот сертификат удостоверяет, что система контроля качества, применяемая на заводе

АО “BAXI”

в городе Бассано дел Граппа, где изготавливаются эти котлы, удовлетворяет требованиям самой строгой нормы, т.е. UNI EN ISO 1900, которая касается всех фаз организации производства/сбыта и их участников.

UNI EN ISO 9001

CERTIFICAZIONE DEI SISTEMI

QUALITA' DELLE AZIENDE

"Загрузка инструкции" означает, что нужно подождать пока файл загрузится и можно будет его читать онлайн. Некоторые инструкции очень большие и время их появления зависит от вашей скорости интернета.

Краткое содержание

Страница 2 - BAXI

126 HU RO PL CZ RU Оглавление Инструкция для пользователя Операции перед монтажом 127 Предпусковые операции 127 Запуск котла 127 Регулирование комнатной температуры 127 Регулирование температуры хозяйственной воды 128 Установка параметров котла при помощи климатическогорегулятора QАА73 128 Наполнени...

Страница 3 - Рисунок 1

HU 127 RO PL CZ RU Операции перед монтажом Этот котел предназначен для нагрева воды до температуры ниже точкикипения при атмосферном давлении. Котел следует подключить котопительной установке, а также, если требуется для данной модели,к распределительной сети горячей хозяйственной воды, которыедолжн...

Страница 4 - –comfort–; Рисунок 2; Рисунок 3а; Наполнение установки; Важно

128 HU RO PL CZ RU Регулирование температурыхозяйственной воды Г азовый клапан оснащен электронным устройством модуляции пламени в з а в и с и м о с т и о т п ол оже н и я р у ч к и р е г у л я т о ра т е м п е рат у р ыхозяйственной воды (13) и от отбираемого количества воды.Это электронное устройс...

Характеристики

Другие модели - Котлы Baxi

Все котлы Baxi