Baxi LUNA 240 / 280 / 310 - Инструкция по эксплуатации

Baxi LUNA 240 / 280 / 310

Котел Baxi LUNA 240 / 280 / 310 - инструкция пользователя по применению, эксплуатации и установке на русском языке. Мы надеемся, она поможет вам решить возникшие у вас вопросы при эксплуатации техники.

Если остались дополнительные вопросы — свяжитесь с нами через контактную форму.

1 Страница 1
2 Страница 2
3 Страница 3
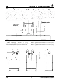
4 Страница 4
5 Страница 5
6 Страница 6
7 Страница 7
8 Страница 8
9 Страница 9
10 Страница 10
11 Страница 11
12 Страница 12
13 Страница 13
14 Страница 14
15 Страница 15
16 Страница 16
17 Страница 17
18 Страница 18
19 Страница 19
20 Страница 20
21 Страница 21
22 Страница 22
23 Страница 23
24 Страница 24
25 Страница 25
26 Страница 26
27 Страница 27
28 Страница 28
29 Страница 29
30 Страница 30
31 Страница 31
32 Страница 32
33 Страница 33
34 Страница 34
35 Страница 35
Страница: / 35
Загрузка инструкции



Высокопроизводительные

настенные

газовые

котлы

Руководство

по

установке

и

эксплуатации

(

паспорт

изделия

)

Компания

BAXI S.p.A.

-

один

из

европейских

лидеров

по

производству

отопительных

и

водонагревательн

ы

х

систем

для

домашнего

пользования

(

настенных

газовых

котлов

,

напольных

котлов

,

электрических

водонагревателей

).

Компания

имеет

сертификат

CSQ,

удостоверяющий

соответствие

нормам

UNI EN ISO

9001.

Стандарты

,

предусмотренные

в

нормах

UNI EN ISO 9001,

охватывают

все

этапы

организации

производства

.

Сертификат

UNI EN ISO 9001

гарантирует

Вам

следующее

.

Система

контроля

качества

,

применяемая

на

заводе

BAXI S.p.A.

в

городе

Bassano del Grappa (

Бассано

дель

Граппа

),

где

изготовлен

ваш

котел

,

отвечает

самым

строгим

мировым

стандартам

.

"Загрузка инструкции" означает, что нужно подождать пока файл загрузится и можно будет его читать онлайн. Некоторые инструкции очень большие и время их появления зависит от вашей скорости интернета.

Характеристики

Другие модели - Котлы Baxi

Все котлы Baxi