Baxi Luna 1.310 Fi MV - Инструкция по эксплуатации

Baxi Luna 1.310 Fi MV

Котел Baxi Luna 1.310 Fi MV - инструкция пользователя по применению, эксплуатации и установке на русском языке. Мы надеемся, она поможет вам решить возникшие у вас вопросы при эксплуатации техники.

Если остались дополнительные вопросы — свяжитесь с нами через контактную форму.

1 Страница 1
2 Страница 2
3 Страница 3
4 Страница 4
5 Страница 5
6 Страница 6
7 Страница 7
8 Страница 8
9 Страница 9
10 Страница 10
11 Страница 11
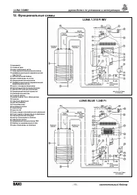
12 Страница 12
13 Страница 13
14 Страница 14
15 Страница 15
16 Страница 16
Страница: / 16
Загрузка инструкции

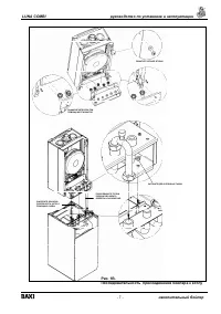
Присоединение

накопительного

бойлера

на

80

литров

к

котлам

серии

Руководство

по

установке

и

эксплуатации



Компания

BAXI S.p.A.

-

один

из

европейских

лидеров

по

производству

отопительных

и

водонагревательных

систем

для

домашнего

пользования

(

настенных

газовых

котлов

,

напольных

котлов

,

электрических

водонагре

-

вателей

).

Компания

имеет

сертификат

CSQ,

удостоверяющий

соответствие

нормам

UNI EN ISO 9001.

Стандар

-

ты

,

предусмотренные

в

нормах

UNI EN ISO 9001,

охватывают

все

этапы

организации

производства

.

Сертифи

-

кат

UNI EN ISO 9001

гарантирует

Вам

следующее

.

Система

контроля

качества

,

применяемая

на

заводе

BAXI

S.p.A.

в

городе

Bassano del Grappa (

Бассано

дель

Граппа

),

где

изготовлен

ваш

котел

,

отвечает

самым

строгим

мировым

стандартам

.

"Загрузка инструкции" означает, что нужно подождать пока файл загрузится и можно будет его читать онлайн. Некоторые инструкции очень большие и время их появления зависит от вашей скорости интернета.

Характеристики

Другие модели - Котлы Baxi

Все котлы Baxi