BaltGaz VEKTOR 10 G черный цветок 30559 - Инструкция по эксплуатации

BaltGaz VEKTOR 10 G черный цветок 30559

Водонагреватель BaltGaz VEKTOR 10 G черный цветок 30559 - инструкция пользователя по применению, эксплуатации и установке на русском языке. Мы надеемся, она поможет вам решить возникшие у вас вопросы при эксплуатации техники.

Если остались дополнительные вопросы — свяжитесь с нами через контактную форму.

1 Страница 1
2 Страница 2
3 Страница 3
4 Страница 4
5 Страница 5
6 Страница 6
7 Страница 7
8 Страница 8
9 Страница 9
10 Страница 10
11 Страница 11
12 Страница 12
13 Страница 13
14 Страница 14
15 Страница 15
16 Страница 16
17 Страница 17
18 Страница 18
19 Страница 19
Страница: / 19

Содержание:

  • Страница 3 – СОДЕРЖАНИЕ; Регулирование степени нагрева
  • Страница 4 – Руководство для пользователя; МЕРЫ БЕЗОПАСНОСТИ ПРИ ЭКСПЛУАТАЦИИ АППАРАТА; самостоятельно устанавливать и запускать аппарат в работу; ОПИСАНИЕ И РАБОТА АППАРАТА
  • Страница 5 – Технические характеристики; Таблица; °C не менее; Комплект поставки; Таблица 2; Примечание
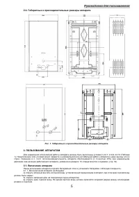
  • Страница 6 – Габаритные и присоединительные размеры аппарата; Рис. 1. Габаритные и присоединительные размеры аппарата; ПОЛЬЗОВАНИЕ АППАРАТОМ; Для включения аппарата необходимо:
  • Страница 7 – слишком близко к смотровому окну.; мягкой воде; Выключение аппарата
  • Страница 8 – Предохранение от замерзания; Перед каждым включением аппарата необходимо:; Уход
  • Страница 9 – Руководство для технического персонала; ПРАВИЛА ТРАНСПОРТИРОВАНИЯ И ХРАНЕНИЯ
  • Страница 10 – Монтаж аппарата
  • Страница 11 – Подключение аппарата к баллону со сжиженным газом; ЗАПРЕЩАЕТСЯ; Подключение аппарата к дымоходу; Рис.5. Схема подсоединения газоотводящей трубы к аппарату
  • Страница 12 – Проверка аппарата; Правильно
  • Страница 13 – Работа аппарата
  • Страница 15 – Руководство для пользователя и технического персонала; ВОЗМОЖНЫЕ НЕИСПРАВНОСТИ И МЕТОДЫ ИХ УСТРАНЕНИЯ; Таблица 3
  • Страница 16 – СДАЧА АППАРАТА ПОТРЕБИТЕЛЮ
  • Страница 17 – ГАРАНТИЙНЫЕ ОБЯЗАТЕЛЬСТВА
  • Страница 19 – Руководство для пользователя и технического персонал; СВИДЕТЕЛЬСТВО О ПРИЕМКЕ; Аппарат водонагревательный проточный газовый бытовой
Загрузка инструкции

РУКОВОДСТВО ПО ЭКСПЛУАТАЦИИ

ВОДОНАГРЕВАТЕЛЯ

ГАЗОВОГО

VEKTOR 10








www.baltgaz.ru

"Загрузка инструкции" означает, что нужно подождать пока файл загрузится и можно будет его читать онлайн. Некоторые инструкции очень большие и время их появления зависит от вашей скорости интернета.

Краткое содержание

Страница 3 - СОДЕРЖАНИЕ; Регулирование степени нагрева

СОДЕРЖАНИЕ 1. МЕРЫ БЕЗОПАСНОСТИ ПРИ ЭКСПЛУАТАЦИИ АППАРАТА ............................................................................................................. 3 2. ОПИСАНИЕ И РАБОТА АППАРАТА .......................................................................................................

Страница 4 - Руководство для пользователя; МЕРЫ БЕЗОПАСНОСТИ ПРИ ЭКСПЛУАТАЦИИ АППАРАТА; самостоятельно устанавливать и запускать аппарат в работу; ОПИСАНИЕ И РАБОТА АППАРАТА

Руководство для пользователя 3 1. МЕРЫ БЕЗОПАСНОСТИ ПРИ ЭКСПЛУАТАЦИИ АППАРАТА 1.1. Во избежание несчастных случаев и выхода из строя аппарата запрещается: - самостоятельно устанавливать и запускать аппарат в работу; - производить регулировки аппарата лицам, не знакомым с настоящим руководством по эк...

Страница 5 - Технические характеристики; Таблица; °C не менее; Комплект поставки; Таблица 2; Примечание

Руководство для пользователя 4 2.2. Технические характеристики Таблица 1 Параметры Значение 2.2.1. Номинальная тепловая мощность, кВт 18,0 2.2.2 Теплопроизводительность, кВт 16,2 2.2.3 Коэффициент полезного действия, % не менее 84 2.2.4 Номинальное давление газа, Па (мм вод. ст.) - природного - сжиж...

Характеристики

Другие модели - Водонагреватели BaltGaz

Все водонагреватели BaltGaz