Vaillant MAG 14 0 RXI 311591 - Инструкция по эксплуатации - Страница 20

Водонагреватели Vaillant MAG 14 0 RXI 311591 - инструкция пользователя по применению, эксплуатации и установке на русском языке. Мы надеемся, она поможет вам решить возникшие у вас вопросы при эксплуатации техники.

Если остались вопросы, задайте их в комментариях после инструкции.

"Загружаем инструкцию", означает, что нужно подождать пока файл загрузится и можно будет его читать онлайн. Некоторые инструкции очень большие и время их появления зависит от вашей скорости интернета.
Страница:
/ 36
Загружаем инструкцию
background image

8

Руководство по монтажу

 atmoMAG

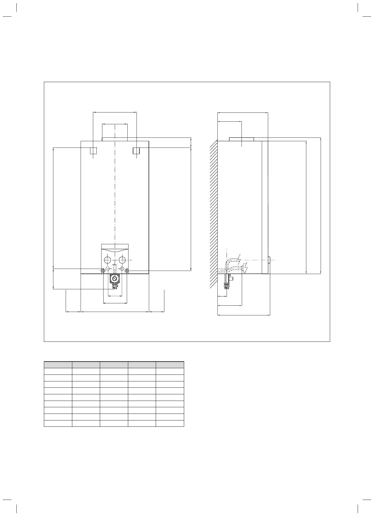
4.5 Размеры

A

B

C

D

F

I

I

J

G
H

E

K

L

M

N

O

P

Q

Рис. 4.4  Размеры водонагревателя

Размер

мм

Размер

мм

A

224

J

350

B

∅ 

130

K

259

C

64

L

124

D

631

M

680

E

621

N

695

F

152

O

50

G

70

P

125

H

120

Q

269

I

мин. 20

4 Монтаж

Полезные видео

Характеристики

Оцените статью
tehnopanorama.ru
Остались вопросы?

Не нашли свой ответ в руководстве или возникли другие проблемы? Задайте свой вопрос в форме ниже с подробным описанием вашей ситуации, чтобы другие люди и специалисты смогли дать на него ответ. Если вы знаете как решить проблему другого человека, пожалуйста, подскажите ему :)

Задать вопрос

Часто задаваемые вопросы
Как посмотреть инструкцию к Vaillant MAG 14 0 RXI 311591?
Необходимо подождать полной загрузки инструкции в сером окне на данной странице
Руководство на русском языке?
Все наши руководства представлены на русском языке или схематично, поэтому вы без труда сможете разобраться с вашей моделью
Как скопировать текст из PDF?
Чтобы скопировать текст со страницы инструкции воспользуйтесь вкладкой "HTML"