Термекс Praktik 150 V ЭдЭ001812 - Инструкция по эксплуатации - Страница 46

Водонагреватели Термекс Praktik 150 V ЭдЭ001812 - инструкция пользователя по применению, эксплуатации и установке на русском языке. Мы надеемся, она поможет вам решить возникшие у вас вопросы при эксплуатации техники.

Если остались вопросы, задайте их в комментариях после инструкции.

"Загружаем инструкцию", означает, что нужно подождать пока файл загрузится и можно будет его читать онлайн. Некоторые инструкции очень большие и время их появления зависит от вашей скорости интернета.
Страница:
/ 64
Загружаем инструкцию
background image

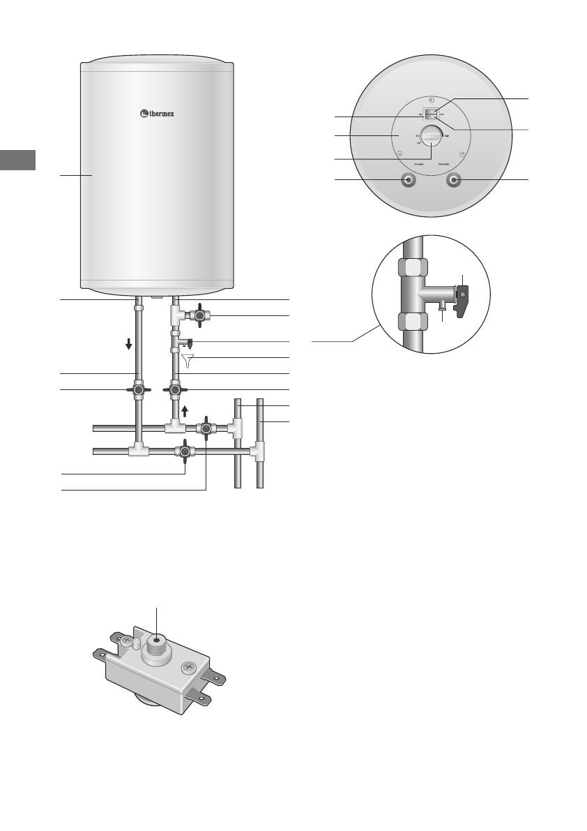
Attēls

 1

Pieslēgšanas shēma un vadības elementi.

1

2

3

4

5

8

9

14

12

13

10

9

11

6

7

2

3

19

20

16

17

18

Attēls

 2

Termoslēdza izvietojums.

15

EUS ārējs korpuss

Īscaurule karsta ūdena izlaišanai 

(

ar sarkano gredzenu

)

Īscaurule auksta ūdens 
piegādāšanai 

(

ar zilo gredzenu

)

Izlaides ventilis

Drošības ventilis

Drošības ventiļa rokturis 

Drošības ventiļa izlaiduma caurule 

Drenāžas sistēma ūdens izlaišanai 
kanalizācijā 

Pievadīšanas sistēma

Aukstā ūdens padeves ventilis 

Karstā ūdens padeves ventilis 

Aukstā ūdens maģistrāle 

Karstā ūdens maģistrāle 

Karstā ūdens slēdzējventilis 

Aukstā ūdens slēdzējventilis

Jaudas režīmu pārslēdzējs 

Jaudas režīms I - 1.5 kW

Jaudas režims II - 1 kW

Aizsargvaks

Temperatūras regulēšanas rokturis 

1.

2.

3.

4.

5.

6.

7.

8.

9.

10.

11.

12.

13.

14.

15.

16.

17.

18.

19.

20.

Nospiest

LV

Pirms uzkrajošā tipa elektriskā ūdens sildītāja pirmas izmantošanas uzmanīgi izlasiet šo 
instrukciju, pievēršot īpašu uzmanību punktiem, kuri apzimēti ar simbolu „UZMANĪBU!”.

Šī instrukcija piemērota modeļiem ISP un IRP ar tilpumu no 30 l līdz 1

2

0 l. Jūsu ūdens sildītāja pilnais 

nosaukums norādīts uz identifikācijas uzlīmes uz ūdens sildītāja korpusa.  

Piegādes komplekts 

Ūdens sildītajs

........................................................1 

gab

.

GP tipa drošības vārts

.............................................1 

gab.

Enkuri

.....................................................................2 

gab

.

Lietošanas instrukcija

.............................................1 

gab

.

Garantijas talons

....................................................1 

gab

.

Iepakojums

.............................................................1 

gab

.

Pielietošana

Ūdens  sildītājs 

(

turpmāk  tekstā  EŪS

ir  paredzēts,  lai  nodrošinātu  ar  karsto  ūdeni  sadzīves  un 

rūpniecības objektus, kam ir ūdensvads ar auksto ūdeni ar nepieciešamiem parametriem.

EŪS ir jālieto aizvērtās apsildāmās teplās un nav paredzēts lietošanai nepārtrauktā plūstošā režīmā.

Galvenie tehniskie raksturojumi 

0

.

05 /

 0.6 MPa

2

3

V~

, 50 

Hz

2

.5

 

kW

1/2

IPX4

+

3

...+

40°С

+18…+74°С

 ±5°С

Auksta ūdens maģistrāles spiediens

, min./max.

Barošanas elektrotikla parametri

 – 

vienfāzes sprieguma tikls, strāvas frekvence 

Cauruļu elektrosildītāja 

(

CES

)

 jauda 

Aukstā un karstā ūdens padeves īscauruļu vītnes diametrs 

Ūdens sildītāja aizsardzības klass 

Apkārtējas vides temperatūra lietošanai 

Sasildāmā ūdens temperatūras regulēšanas diapazons 

Temperatūras uzturēšanas precizitāte glabāšanas režīmā  

Ražotājs  saglabā  visas  tiesības  mainit  ūdens  sildītāja  konstrukciju  un  parametrus  bez  iepriekšēja 
brīdinājuma.  

Informācija par ražošanas datuma atzīmēšanas vietu un tā noskaidrošanu:

Izlaišanas datums ir kodēts ar unikālu sērijas numuru, kas ir ievietots uz identifikācijas uzlimes (stīkere), 
kas atrodas preces korpusa apakšējā daļā. Preces sērijas numuram ir trīspadsmit cipari. Trešais un 
ceturtais cipars sērijas numuram ir EŪS izlaišanas gads, piektais un sestais – mēnesis, septītais un 
astotais – diena.

Darbības princips

EŪS ārējais korpuss izgatavots no plastmas, kas ir izturīga pret sitieniem. Iekšējā tvertne izgatavota no 
augstas  kvalitātes  nerūsējošā  tērauda,  kas  nodrošina  antikorozijas  iztūrību  un  pagarina  lietošanas 
termiņu.  Attālums  starp  ārējām  korpusam  un  iekšējai  tvertnei  ir  pildīts  ar  modernu  ekoloģiski  tīru 

LV

47

46

Полезные видео

Характеристики

Оцените статью
tehnopanorama.ru
Остались вопросы?

Не нашли свой ответ в руководстве или возникли другие проблемы? Задайте свой вопрос в форме ниже с подробным описанием вашей ситуации, чтобы другие люди и специалисты смогли дать на него ответ. Если вы знаете как решить проблему другого человека, пожалуйста, подскажите ему :)

Задать вопрос

Часто задаваемые вопросы
Как посмотреть инструкцию к Термекс Praktik 150 V ЭдЭ001812?
Необходимо подождать полной загрузки инструкции в сером окне на данной странице
Руководство на русском языке?
Все наши руководства представлены на русском языке или схематично, поэтому вы без труда сможете разобраться с вашей моделью
Как скопировать текст из PDF?
Чтобы скопировать текст со страницы инструкции воспользуйтесь вкладкой "HTML"