Водонагреватели Термекс Praktik 150 V ЭдЭ001812 - инструкция пользователя по применению, эксплуатации и установке на русском языке. Мы надеемся, она поможет вам решить возникшие у вас вопросы при эксплуатации техники.
Если остались вопросы, задайте их в комментариях после инструкции.
"Загружаем инструкцию", означает, что нужно подождать пока файл загрузится и можно будет его читать онлайн. Некоторые инструкции очень большие и время их появления зависит от вашей скорости интернета.

Joonis 1
Ühendusskeem ja juhtosad
1
2
3
4
5
8
9
14
12
13
10
9
11
6
7
2
3
19
20
16
17
18
Joonis 2
Termolüliti nupu asukoht
15
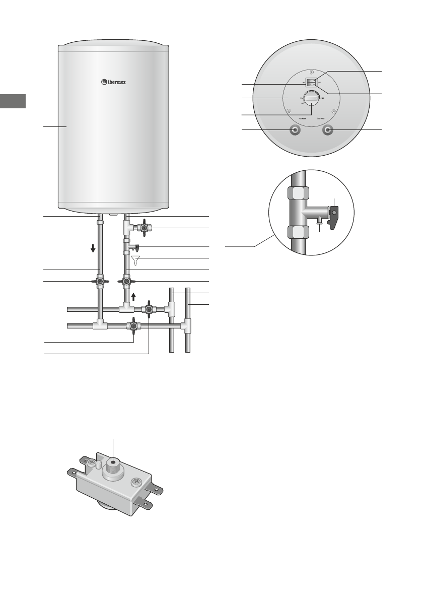
Elektriboileri kere
Sooja vee väljavoolutoru (punase 
rõngaga)/
Külma vee sisendtoru (sinise 
rõngaga)/
Äravooluventiil
Turvaventiil
Turvaventiili kang
Turvaventiili väljundtoru
Drenaaž kanalisatsiooni
Juurdevoolutoru
Külma vee ventiil
Kuuma vee ventiil
Külmaveetrass
Kuumaveetrass
Kuuma vee sulgurventiil
Külma vee sulgurventiil
Võimsusastmete lüliti
Võimsusaste I - 1,5 kW
Võimsusaste II - 1 kW
Kaitseklapp
Temperatuuri reguleerimishoob
1.
2.
3.
4.
5.
6.
7.
8.
9.
10.
11.
12.
13.
14.
15.
16.
17.
18.
19.
20.
Vajutada
EE
Enne  veeboileri  esimest  kasutust  lugege  käesolev  juhend  tähelepanelikult    läbi  ning 
pöörake erilist tähelepanu punktidele, mis on märgistatud sümboliga "TÄHELEPANU!”
Käesolev juhend laieneb veeboileri 30-1
2
0 liitrise mahuga ISP ja IRP mudelitele Soetatud veeboileri
mudeli täisnimetuse leiab veeboileri kerel olevalt märgiskleebiselt.
Tarnekomplekt
Veeboiler
...................................................................
1 tk.
GP-tüüpi turvaventiil
..................................................
1 tk.
Kinnituskonksud
........................................................
2 tk.
Kasutusjuhend
..........................................................
1 tk.
Garantiitalong
...........................................................
1 tk.
Pakend
......................................................................
1 tk.
Kasutusotstarve
Soojaveeboiler  (edaspidi  veeboiler)  on  mõeldud  vee  soojendamiseks  ja  säilitamiseks  kodu-  ja 
tööstusobjektides, mis on varustatud vajalike parameetritega külmaveetrassiga.
Veeboilerit  peab  kasutama  köetud  siseruumides  ning  see  ei  ole  mõeldud  tööks  pidevas 
läbivoolurežiimis.
Peamised tehnilised näitajad
0
.
05 /
0.6 MPa
2
3
0
V~
, 50
Hz
2
.5
кВт
1/2
“
IPX4
+
3
...+
40°С
+18…+74°С
±5°С
Külmaveetrassi surve, min/max
Vooluvõrk - ühefaasiline, pinge, sagedus
Toruküttekeha (elektritenni) võimsus
Külma ja kuuma vee muhvide diameeter
Veeboileri ohutusklass
Kasutus keskonna temperatuuril vahemikus
Vee kuumutamise temperatuuri reguleerimisvahemik
Veetemperatuuri hoidmise täpsus säilitusrežiimis
Tootja  jätab  endale  õiguse  viia  veeboileri  ülesehitusse  ja  iseloomustusse  muudatusi  eelneva  
teatamiseta.
Info valmistamiskuupäeva pealekandmisest ja määramise viisist:
Veeboileri  väljalaskekuupäev  on  kodeeritud  unikaalsesse  seerianumbrisse,  mis  on  näidatud 
märgiskleebisel, mis on kleebitud boileri alumisele osale. Seerianumber koosneb kolmeteistkümnest 
numbrist. Seerianumbri kolmas ja neljas number märgistavad boileri väljalaskeaastat, viies ja kuues - 
väljalaskekuud, seitsmes ja kaheksas - väljalaskepäeva.
Töö põhimõte
Veeboileri  kere  on  löögikindlast  plastikust  Siseanum  valmistatakse  kõrgekvaliteetsest  roostevabast 
terasest, mistõttu mahuti on roostetamiskindel ning pika tööeaga. Siseanuma ja kere vaheline ala on 
täidetud  vahtpolüuretaaniga  -  kaasaegse  ja  keskkonnasõbraliku  soojusisolatsiooniga,  mis  hoiab 
EE
39
38

 
  
  
  
  
  
  
  
  
  
  
  
  
  
  
  
  
  
  
  
  
  
  
  
  
  
  
  
  
  
  
  
  
  
  
  
  
  
  
  
  
  
  
  
  
  
  
  
  
  
  
  
  
  
  
  
  
  
  
  
  
  
  
  
 











