Водонагреватели Термекс IRP 100 V - инструкция пользователя по применению, эксплуатации и установке на русском языке. Мы надеемся, она поможет вам решить возникшие у вас вопросы при эксплуатации техники.
Если остались вопросы, задайте их в комментариях после инструкции.
"Загружаем инструкцию", означает, что нужно подождать пока файл загрузится и можно будет его читать онлайн. Некоторые инструкции очень большие и время их появления зависит от вашей скорости интернета.

Pav. 1
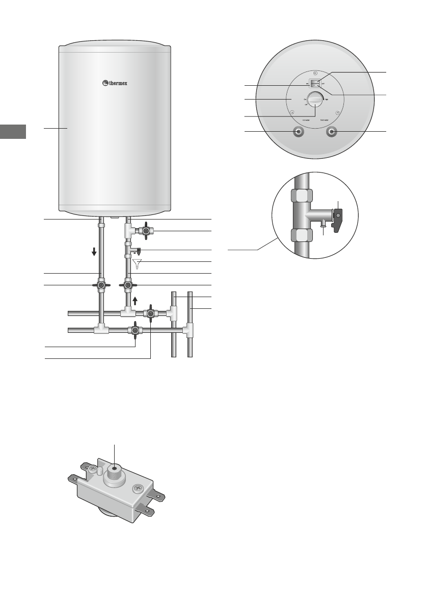
Prijungimo schema ir valdymo elementai
1
2
3
4
5
8
9
14
12
13
10
9
11
6
7
2
3
19
20
16
17
18
Pav
. 2
Šilumos reguliavimo mygtukas
15
Išorinis EVS korpusas
I
šeinamasis vamzdis karštam
vandeniui (su raudonu žiedu)
Įeinamasis vamzdis šaltam
vandeniui (
su mėlynu žiedu
)
I
šleidimo ventilis
Apsauginis vožtuvas
Apsauginio vožtuvo rankenėle
Apsauginio vožtuvo išėjimo
vamzdis
Drenažas į kanalizaciją
Atvedimas
Š
alto vandens išleidimo ventilis
Karšto
vandens išleidimo ventilis
Šalto vandens magistralė
Karšto
vandens magistralė
Karšto
vandens uždaromasis
ventilis
Šalto vandens uždaromasis ventilis
Galingumo režimų jungiklis
Galingumo režimas
I - 1.5
Kw
Galingumo režimas
II - 1 Kw
Apsauginis dangtelis
Temperatūros reguliavimo jungiklis
1.
2.
3.
4.
5.
6.
7.
8.
9.
10.
11.
12.
13.
14.
15.
16.
17.
18.
19.
20.
Paspausti
LT
Prieš pradedami naudotis elektriniu turiniu vandens šildytuvu atidžiai perskaitykite šią
naudojimo instrukciją ir atkreipkite dėmesį į punktus, pažymėtus simboliu "DĖMESIO!".
Ši naudojimo instrukcija taikoma modeliams
ISP
ir
IRP, kurių talpa nuo 30
iki
120
litrų
. Pilnas įsigyto
modelio pavadinimas nurodytas identifikavimo lentelėje ant vandens šildytuvo korpuso.
TIEKIMO KOMPLEKTAS
Vandens šildytuvas
..................................................
1
vnt.
GP tipo apsauginis vožtuvas
....................................
1
vnt.
Ankeriai
...................................................................
2
vnt.
Naudojimo instrukcija
..............................................1 vnt.
Garantinis talonas
...................................................1 vnt.
Įpakavimas
..............................................................
1
vnt.
Paskirtis
Vandens šildytuvas
(toliau tekste EVŠ), skirtas karšto vandens gavimui buitiniams ir
pramoniniams
poreikiams, kur yra
šalto
vandens magistralė su reikalingais parametrais.
EVŠ eksploatavimas skirtas uždarose apšildomose patalpose
ir ne gali dirbti nepertraukiamo darbo
režimu
.
Techniniai duomenys
0
.
05 /
0.6 MPa
2
3
0
V~
, 50
Hz
2
.5
kW
1/2
“
IPX4
+
3
...+
40°С
+18…+74°С
±5°С
Šalto
vandens magistralės slėgis, min/max
Maitinimo elektros tinklas
– vienfazi
s
, įtampa,
dažnis
Elektros vamzdinio kaitintuvo galingumas (VEK)
Karšto ir šalto vandens atvamzdžio sriegio diametras
Vandens šildytuvo saugumo klasė
Darbas aplinkos temperatūroje
Vandens šildymo temperatūros diapazono reguliavimas
Temperatūros palaikymo saugojimo režimu tikslumas
Gamintojas pasilieka teisę be išankstinio pranešimo vykdyti keitimus vandens šildytuvo konstrukcijoje ir
charakteristikose.
Informacija apie gamybos datos žymėjimo vietą ir būdas nustatyti gamybos datą:
Gaminio gamybos data įrašyta unikaliame serijiniame numeryje
Prekės pagaminimo data įrašyta unikaliame serijiniame numeryje, kuris yra identifikacinėje lentelėje
(stikeryje) apatinėje dalyje ant gaminio korpuso. Serijinis gaminio numeris susideda iš trylikos
skaitmenų.Trečias ir ketvirtas serijinio numerio skaitmuo - išleidimo metai, penktas ir šeštas - išleidimo
mėnesis, septintas ir aštuntas – EVŠ išdavimo diena.
Veikimo principas
Išorinis EVŠ korpusas pagamintas iš smūgiams atsparaus plastiko. Vidinis bakas yra pagamintas iš
LT
55
54













