Термекс IRP 100 V - Инструкция по эксплуатации - Страница 3

Водонагреватели Термекс IRP 100 V - инструкция пользователя по применению, эксплуатации и установке на русском языке. Мы надеемся, она поможет вам решить возникшие у вас вопросы при эксплуатации техники.

Если остались вопросы, задайте их в комментариях после инструкции.

"Загружаем инструкцию", означает, что нужно подождать пока файл загрузится и можно будет его читать онлайн. Некоторые инструкции очень большие и время их появления зависит от вашей скорости интернета.
Страница:
/ 64
Загружаем инструкцию
background image

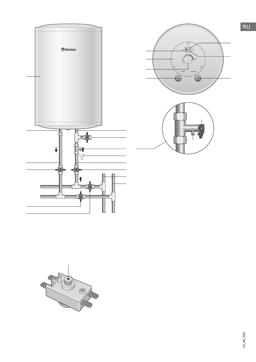
Рис. 1

 

Схема подключения и элементы управления.

1

2

3

4

5

8

9

14

12

13

10

9

11

6

7

2

3

19

20

16

17

18

Рис. 2

 

Расположение кнопки термовыключателя.

15

Внешний корпус ЭВН

Патрубок выпуска горячей воды 
(с красным кольцом) 

Патрубок подачи холодной воды 
(с синим кольцом)

Сливной вентиль 

Предохранительный клапан

Ручка предохранительного 
клапана

Выпускная труба 
предохранительного клапана

Дренаж в канализацию

Подводка

Вентиль подачи холодной воды

Вентиль подачи горячей воды

Магистраль холодной воды

Магистраль горячей воды

Запорный вентиль горячей воды

Запорный вентиль холодной воды

Переключатель режимов 
мощности

Режим мощности 

I

 - 1.

5

 

кВт

Режим мощности 

II 

1

 

кВт

Защитная крышка

Ручка регулировки температуры

1.

2.

3.

4.

5.

6.

7.

8.

9.

10.

11.

12.

13.

14.

15.

16.

17.

18.

19.

20.

Нажать

3

Полезные видео

Характеристики

Оцените статью
tehnopanorama.ru
Остались вопросы?

Не нашли свой ответ в руководстве или возникли другие проблемы? Задайте свой вопрос в форме ниже с подробным описанием вашей ситуации, чтобы другие люди и специалисты смогли дать на него ответ. Если вы знаете как решить проблему другого человека, пожалуйста, подскажите ему :)

Задать вопрос

Часто задаваемые вопросы
Как посмотреть инструкцию к Термекс IRP 100 V?
Необходимо подождать полной загрузки инструкции в сером окне на данной странице
Руководство на русском языке?
Все наши руководства представлены на русском языке или схематично, поэтому вы без труда сможете разобраться с вашей моделью
Как скопировать текст из PDF?
Чтобы скопировать текст со страницы инструкции воспользуйтесь вкладкой "HTML"