Водонагреватели STOUT SWH-1110-200300 - инструкция пользователя по применению, эксплуатации и установке на русском языке. Мы надеемся, она поможет вам решить возникшие у вас вопросы при эксплуатации техники.
Если остались вопросы, задайте их в комментариях после инструкции.
"Загружаем инструкцию", означает, что нужно подождать пока файл загрузится и можно будет его читать онлайн. Некоторые инструкции очень большие и время их появления зависит от вашей скорости интернета.

7
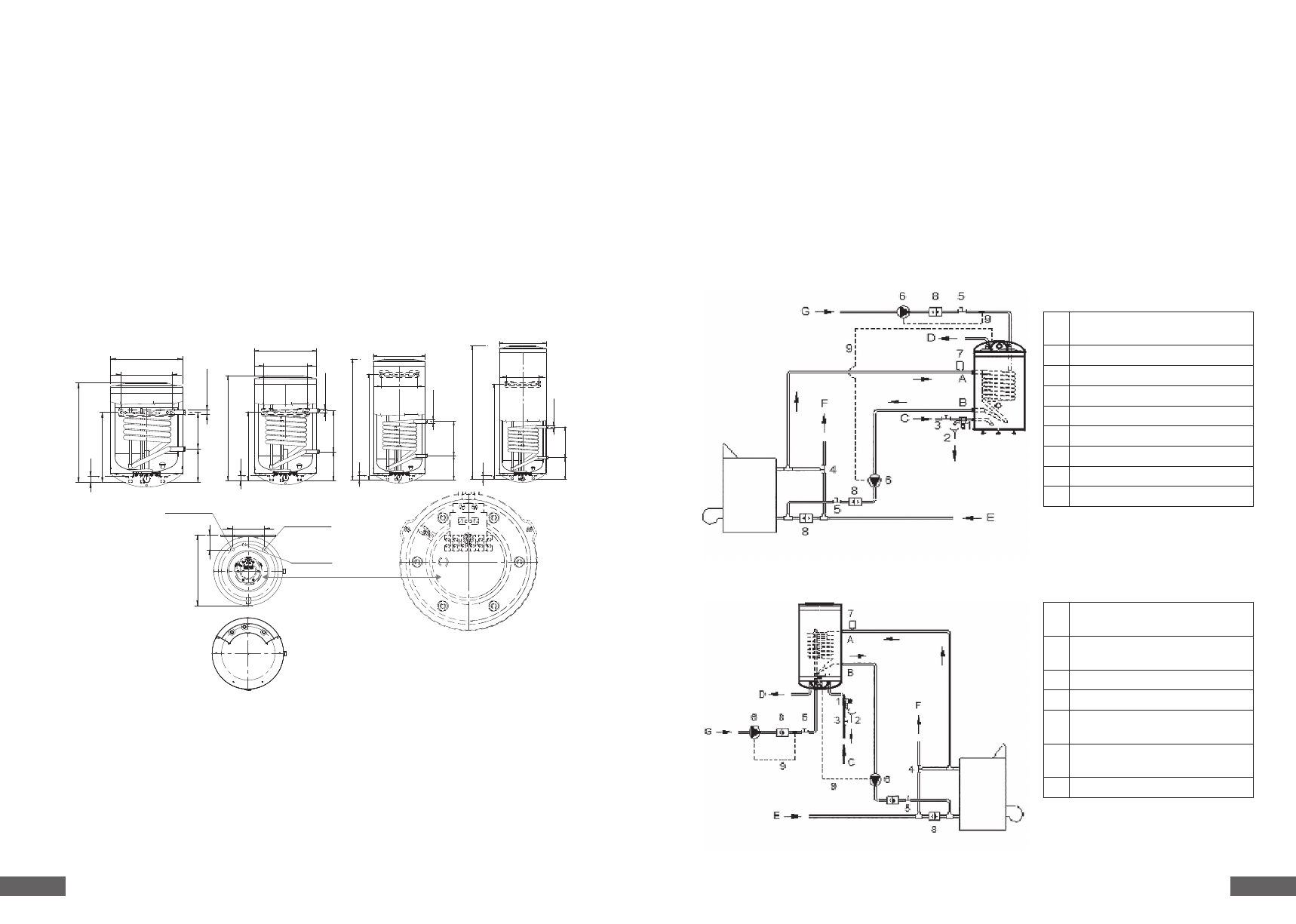
МОНТАЖ С ЦИРКУЛЯЦИОННЫМ НАСОСОМ
Этот способ монтажа предлагается производителем. Циркуляционный насос обеспечивает хорошее
КПД теплообменника. Управление насосом загрузки бойлера осуществляется через термостат
бойлера. Термостат даёт возможность регулировать температуру бытовой горячей воды. В случае, если
в котле имеется функция управления нагревом, необходимо установить термодатчик в туже гильзу, что
и чувствительный элемент штатного термостата (термодатчик не входит в комплект бойлера и является
комплектующим котла).
Подключение к отопительному контуру можно осуществлять исключительно по рисункам 1а-2а.
Соединение теплообменника 1" наружной резьбы. Рекомендуется использовать стальные или пластиковые
трубы. Перед заполнением, систему необходимо промывать с помошью циркуляции воды для удаления
загрязнений. Запрещается производить монтаж насоса путем подсоединения разъемных соединений на
патрубки теплообменника без использования трубы.
Максимально допустимая температура теплоносителя, подаваемого в теплообменник не может превышать
95 ºС. Максимально допустимое давление теплоносителя, подаваемого в теплообменник не может
превышать 6 бар.
Рис 2а
Рис 1а
1
Комбинированный предохрани-
тельный клапан
2
Трап для слива бойлера
3
Запорная арматура
4
Перекидной клапан
5
Запорная арматура
6
Циркуляционный насос
7
Воздухоотводчик
8
Обратный клапан
9
Термостат управляет насосом
A
Вход теплоносителя в
теплообменник
B
Выход теплоносителя из
теплообменника
C
Вход холодной воды
D
Выход бытовой горячей воды
E
Обратный трубопровод
отопления
F
Подающий трубопровод
отопления
G
Вход рециркуляции
10
Бойлер Тип SWH-1210 (настенные)
50
0
71
0
24
3
2
x
G
1
26
0
300/350/360
515
ø
40
24
3
2
x
G
1
34
0
ø
515
300/350/360
57
0
87
0
40
24
3
2
x
G
1
34
0
ø
515
300/350/360
105
0
120
0
40
230
11
0
52
3
G3/4
G3/4
G3/4
Патрубок
Циркуляционный
патрубок
холодной воды
Патрубок для
горячей воды
24
3
2
x
G
1
ø
515
300/350/360
10
50
14
74
34
0
40
ГАБАРИТНЫЕ И УСТАНОВОЧНЫЕ РАЗМЕРЫ.
SWH-1210-000075
SWH-1210-000100
SWH-1210-000150
SWH-1210-000200
После этого ввод в эксплуатацию водонагревателя происходит таким образом, как ввод в
эксплуатацию нового водонагревателя.
СЛИВ ВОДЫ В СЛУЧАЕ ОПАСНОСТИ ЗАМЕРЗАНИЯ
Водонагреватель необходимо сливать, если он не работает и находится в таком месте, где имеется
опасность замерзания. Порядок слива:
1. Обесточьте водонагреватель.
2. Закройте впускной кран холодной воды.
3. Слейте воду через сливной кран.
4. Откройте при помощи ручки предохранительный сброской клапан и убедитесь, что вода из бака слилась
полностью, после чего закройте аварийный сбросной клапан.
5.При использовании в качестве теплоносителя воды, так же необходимо произвести слив теплоносителя
из змеевика бойлера, во избежание его деформации и нарушения герметичности, для этого необходимо
открутить краны с патрубков подачи и обратки на змеевике и дождаться пока вся вода сольется.
Не допускайте замерзания воды и теплоносителя в бойлере!













