Водонагреватели Neva Lux 6014 - инструкция пользователя по применению, эксплуатации и установке на русском языке. Мы надеемся, она поможет вам решить возникшие у вас вопросы при эксплуатации техники.
Если остались вопросы, задайте их в комментариях после инструкции.
"Загружаем инструкцию", означает, что нужно подождать пока файл загрузится и можно будет его читать онлайн. Некоторые инструкции очень большие и время их появления зависит от вашей скорости интернета.

Основные
особенности
аппарата
:
-
аппарат
автоматически
включается
при
открытии
крана
горячей
воды
(
при
расходе
более
2,5
л
/
мин
);
-
запальная
горелка
автоматически
выключается
после
воспламенения
основной
горелки
;
-
аппарат
поддерживает
заданную
с
помощью
цифрового
индикатора
температуру
горячей
воды
независимо
от
изменения
расхода
воды
,
температуры
воды
на
входе
и
давления
газа
(
в
пределах
мощности
аппарата
);
-
ограничена
максимальная
температуры
воды
(70
°
С
)
для
предотвращения
перегрева
теплообменника
;
-
на
цифровом
индикаторе
отображается
текущая
температура
воды
;
-
при
возникновении
неисправности
на
индикаторе
высвечивается
код
ошибки
.
2.3 .
Комплект
поставки
Комплект
поставки
приведен
в
таблице
2.
Таблица
2
Обозначение
Наименование
Количество
,
шту
3261-00.00
Аппарат
«NEVALUX-6014»
1
3261-00.00
РЭ
Руководство
по
эксплуатации
1
3261-82.00
Упаковка
1
3208-06.600
Элементы
крепления
аппарата
(
комплект
)
1
Запасные
части
3103-00.014
Прокладка
2
Примечание
.
Элемент
питания
в
комплект
поставки
не
входит
.
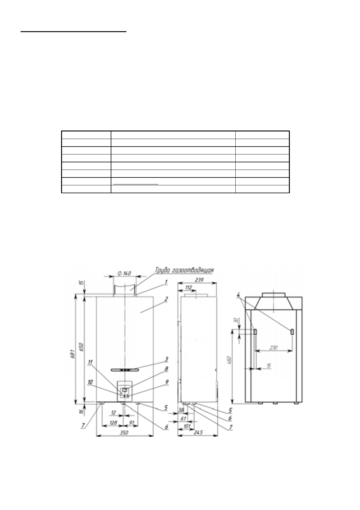
2.4 .
Устройство
аппарата
2.4.1
Аппарат
настенного
типа
(
рис
.1)
имеет
прямоугольную
форму
,
образуемую
съемной
облицовкой
2.
На
лицевой
стороне
облицовки
расположены
:
смотровое
окно
3
для
наблюдения
за
пламенем
запальной
и
основной
горелок
;
цифровой
индикатор
температуры
воды
8,
кнопки
задания
температуры
воды
9
и
10,
индикатор
разряда
батареи
11.
Все
основные
элементы
аппарата
смонтированы
на
задней
стенке
7(
рис
.2).
1 –
патрубок
газоотводящего
устройства
; 2 –
облицовка
; 3 –
окно
смотровое
;
4 –
монтажные
отверстия
; 5 –
штуцер
подвода
холодной
воды
,
резьба
G 1/2;
6
–
штуцер
подвода
газа
,
резьба
G 1/2; 7 –
штуцер
отвода
горячей
воды
,
резьба
G 1/2;
8 –
индикатор
температуры
воды
; 9 –
кнопка
уменьшения
задаваемой
температуры
;
Содержание
- 4 СОДЕРЖАНИЕ
- 5 ЕСЛИ
- 6 Назначение; Таблица
- 7 Комплект; Примечание; Устройство
- 11 Место
- 18 ТЕХНИЧЕСКОЕ
- 22 ГАРАНТИЙНЫЕ
- 25 RE
- 26 Город
- 30 Гара