Водонагреватели Neva 4510 29740 - инструкция пользователя по применению, эксплуатации и установке на русском языке. Мы надеемся, она поможет вам решить возникшие у вас вопросы при эксплуатации техники.
Если остались вопросы, задайте их в комментариях после инструкции.
"Загружаем инструкцию", означает, что нужно подождать пока файл загрузится и можно будет его читать онлайн. Некоторые инструкции очень большие и время их появления зависит от вашей скорости интернета.

Инструкция
по
монтажу
и
сервисному
обслуживанию
для
специалистов
6
при
температуре
до
200
°
С
(
рекомендуемые
материалы
:
нержавеющая
,
оцинкованная
или
эмалированная
сталь
,
алюминий
,
медь
с
толщиной
стенки
не
менее
0,5
мм
);
x
газоотводящая
труба
должна
иметь
внутренний
диаметр
не
менее
125
мм
;
x
длина
вертикального
участка
газоотводящей
трубы
от
аппарата
должна
быть
не
менее
500
мм
;
x
длина
газоотводящей
трубы
от
вертикального
участка
до
дымохода
должна
быть
не
более
2
м
;
x
газоотводящая
труба
должна
иметь
уклон
не
менее
2°
вверх
по
направлению
к
месту
стыковки
с
дымоходом
и
минимальное
количество
поворотов
(
не
более
трёх
);
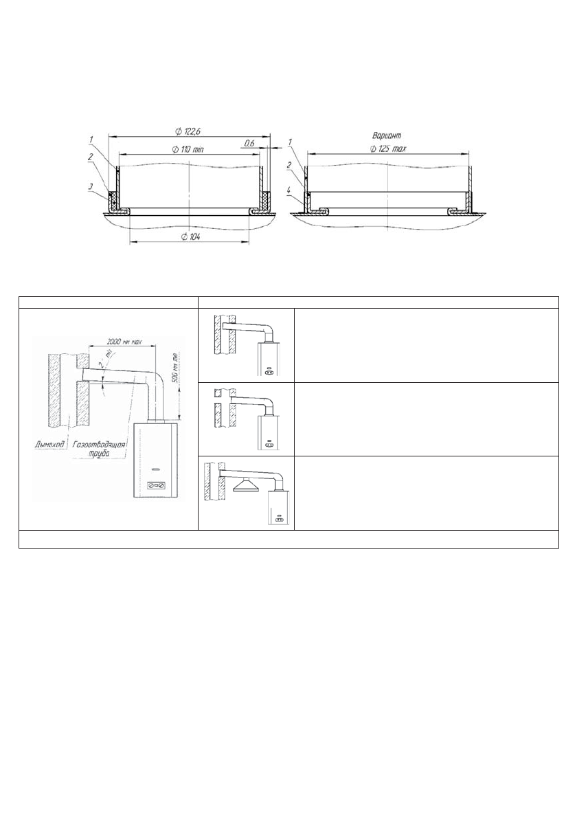
x
газоотводящая
труба
и
её
соединение
с
аппаратом
должны
быть
герметичными
,
соединение
трубы
с
аппаратом
рекомендуется
выполнять
в
соответствии
с
рисунком
4.
1
–
газоотводящая
труба
;
2
–
патрубок
газоотводящего
устройства
аппарата
;
3
–
уплотнитель
термостойкий
;
4
–
скотч
алюминиевый
термостойкий
.
Рисунок
4.
Схема
подсоединения
газоотводящей
трубы
2.6.2
Вариант
подключения
аппарата
к
дымоходу
показан
на
рисунке
5.
Правильно
Неправильно
Конец
газоотводящей
трубы
слишком
близок
к
противоположной
стене
дымохода
.
В
дымоходе
на
уровне
подсоединения
газоотводящей
трубы
имеется
отверстие
(
в
том
числе
и
с
подключенным
к
нему
другим
устройством
).
Два
устройства
имеют
одно
подсоединение
к
дымоходу
.
Рисунок
5.
Подключение
аппарата
к
дымоходу
2.7
Проверка
аппарата
2.7.1
После
установки
аппарата
и
проверки
на
герметичность
должны
быть
проверены
работа
горелки
,
работа
автоматики
безопасности
и
температура
нагрева
воды
.
Включение
и
выключение
аппарата
,
регулировку
температуры
воды
выполнять
в
соответствии
с
разделом
.
Проверку
работоспособности
термореле
(
датчика
тяги
)
производить
в
соответствии
с
п
. 4
.5.
Примечание
.
После
хранения
аппарата
в
помещении
с
отрицательной
температурой
его
первый
запуск
производить
не
ранее
.
Чем
через
2
часа
после
переноса
его
в
теплое
помещение
.
2.7.2
.
При
необходимости
(
при
недостаточном
нагреве
воды
)
следует
проверить
давление
газа
на
входе
в
аппарат
,
для
чего
необходимо
:
а
)
закрыть
газовый
кран
на
входе
в
аппарат
;
б
)
вывернуть
винт
из
штуцера
21 (
рис
. 6)
и
подключить
к
штуцеру
дифманометр
;
в
)
открыть
газовый
кран
на
входе
в
аппарат
и
проверить
подключение
дифманометра
на
герметичность
;
г
)
Включить
аппарат
и
установить
режим
максимальной
тепловой
мощности
д
)
определить
по
дифманометру
давление
газа
,
которое
должно
соответствовать
давлению
,
указанному
в
разделе
10;
После
проведения
замеров
следует
:
а
)
выключить
аппарат
и
закрыть
газовый
кран
на
входе
в
аппарат
;
б
)
отключить
дифманометр
и
завернуть
до
упора
винт
в
штуцере
;
в
)
открыть
газовый
кран
на
входе
в
аппарат
и
проверить
штуцер
на
герметичность
.
2.8
Переналадка
аппарата
на
другой
вид
и
давление
газа
2.8.1
Переналадка
аппарата
на
другой
вид
или
давление
газа
должна
осуществляться
специализированной
сервисной
организацией
.
Для
переналадки
необходимо
использовать
только
фирменный
комплект
деталей
.













