Водонагреватели Gorenje GT 15 - инструкция пользователя по применению, эксплуатации и установке на русском языке. Мы надеемся, она поможет вам решить возникшие у вас вопросы при эксплуатации техники.
Если остались вопросы, задайте их в комментариях после инструкции.
"Загружаем инструкцию", означает, что нужно подождать пока файл загрузится и можно будет его читать онлайн. Некоторые инструкции очень большие и время их появления зависит от вашей скорости интернета.

65
F
A
B
C
D
E
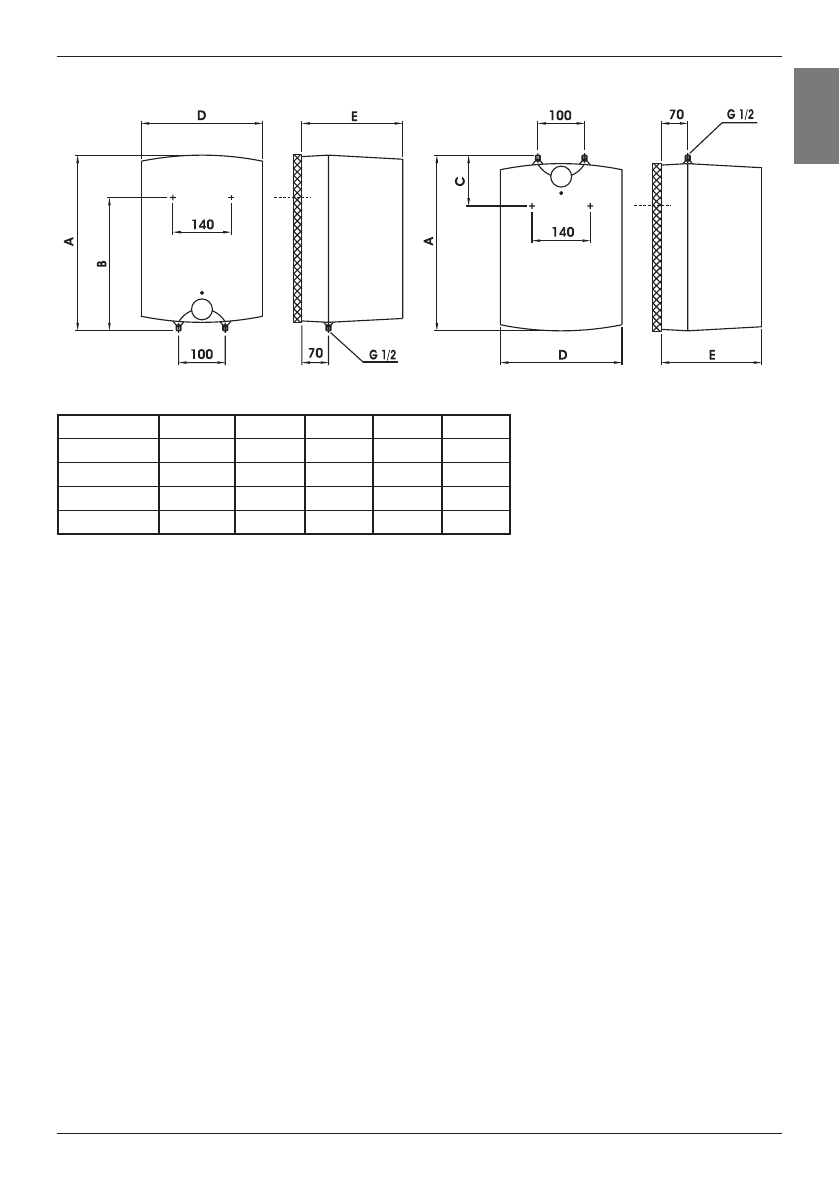
GT 10 O
500
398
350
265
GT 10 U
500
122
350
265
GT 15 O
500
398
350
310
GT 15 U
500
122
350
310
Dimensions de raccordement et de montage du chauffe-eau (mm)
Version au dessus de l’évier
Version sous-évier
RACCORDEMENT À LA CONDUITE D’EAU
L’alimentation et l’évacuation de l’eau sont repérées en couleur sur les tuyaux du chauffe-
eau. L’ alimentation de l’eau froide est repérée en bleu et l’évacuation de l’eau chaude en
rouge.
Vous pouvez raccorder le chauffe-eau à la conduite d’eau de deux façons: le système de
raccordement fermé et sous-pression permet de prendre de l’eau à de plusieurs points de
puisage et le système de raccordement ouvert et de non-pression permet un seul point
de puisage. Aussi les robinets mélangeurs doivent être prévus en fonction du système du
raccordement choisi.
Au système ouvert d’écoulement il est nécessaire d’installer un soupape de non-retour avant
le chauffe-eau, empêchant l’eau de s’écouler du chauffe-eau en cas du manque d’eau.
A ce système vous devez installer le robinet mélangeur d’écoulement. En échauffant, le
volume de l’eau dans la cuve augmente ce qui provoque le dégouttement de l’eau par le bec
du robinet mélangeur. Vous ne pouvez pas arrêter le dégouttement en reserrant le levier
de toute force; par cela vous pouvez mettre le robinet mélangeur en panne. Au système
fermé de raccordement vous devez installer les robinets mélangeurs à pression aux points
de puisage. Pour assurer la sécurité du fonctionnement, il est obligatoire d’installer la
soupape de sécurité ou un groupe de sécurité dans le tuyau d’alimentation, empêchant la
surpression de l’eau dans la chaudière de plus de 0,1 MPa au-dessus de la valeur normale.
L’eau s’échauffe dans le chauffe-eau jusqu’à la valeur préreglée par la soupape de sécurité.
Comme le retour de l’eau à la conduite d’eau est empêché, il peut arriver que l’eau se met
à égoutter par le trou de vidange de la soupape de sécurité. L’eau dégouttée peut être
conduite par le bac que vous mettez sous la soupape de sécurité. Le tuyau de vidange
installé sous le bec de la soupape de sécurité, doit être mis verticalement et installé dans
un endroit exempt de risque de gel.
Содержание
- 13 ПОДКЛЮЧЕНИЕ К ВОДОПРОВОДНОЙ СЕТИ; незамороживающей среде.
- 14 Исполнение над умывальником; через спускную трубу смесителъного крана.; ПОДКЛЮЧЕНИЕ К 3ЛЕТРИЧЕСКОЙ СЕТИ; должно бытъ не менее 3 мм.; требуется его обязателъно отключитъ от электросети!
- 15 - Тепловой предохранителъ; ПРИМЕНЕНИЕ И ТЕХОБСЛУЖИВАНИЕ; уведомите уполномоченную ремонтную службу.