Водонагреватели Gorenje GT 15 - инструкция пользователя по применению, эксплуатации и установке на русском языке. Мы надеемся, она поможет вам решить возникшие у вас вопросы при эксплуатации техники.
Если остались вопросы, задайте их в комментариях после инструкции.
"Загружаем инструкцию", означает, что нужно подождать пока файл загрузится и можно будет его читать онлайн. Некоторые инструкции очень большие и время их появления зависит от вашей скорости интернета.

61
H
A
B
C
D
E
GT 10 O
500
398
350
265
GT 10 U
500
122
350
265
GT 15 O
500
398
350
310
GT 15 U
500
122
350
310
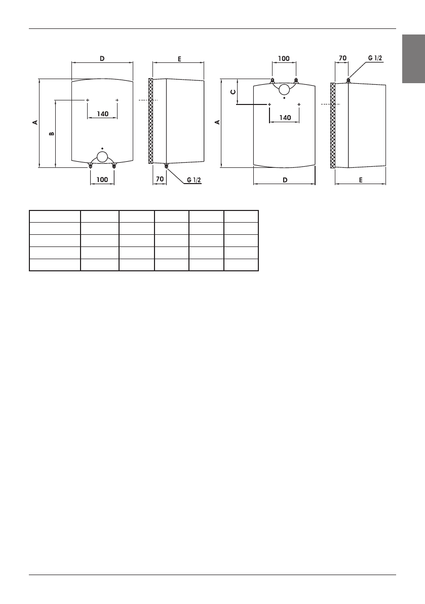
A vízmelegítő csatlakozási és felszerelési méretei (mm)
Felső elhelyezésű kivitel
Alsó elhelyezésű kivitel
CSATLAKOZTATÁS A VÍZHÁLÓZATRA
A bojler vízbevezetési és -elvezetési vezetékei különböző színnel vannak jelölve. A hideg
vízbevezetés kékkel, a meleg vízelvezetés pedig pirossal.
A bojlert kétféleképpen lehet a vízvezeték hálózatra csatlakoztatni. A zárt, nyomórendszerű
csatlakozás több fogyasztóhelyen történő vízvételezést tesz lehetővé, a nyitott, nem
nyomórendszerű pedig csak egy fogyasztóhelyen. A kiválasztott csatlakozási rendszertől
függően megfelelő keverőcsaptelepeket is be kell szereznie.
Nyitott, nem nyomórendszernél a bojlerba visszacsapó szelepet kell építeni, amely
megakadályozza, hogy a víz a katlanból kifolyjon, ha a hálózatból kifogy a víz. Ennél a
csatlakozási rendszernél átfolyó keverőcsaptelepet kell alkalmazni. A bojlerben a melegítés
hatására nő a térfogat, ami a keverőcsaptelepen csöpögést okoz. A keverőcsaptelep karjának
erős meghúzásával a víz csöpögését nem lehet megállítani, de eltörheti a csaptelepet.
Zárt, nyomórendszernél a fogyasztóhelyeken nyomó keverőcsaptelepeket kell alkalmazni.
A biztonságos működés érdekében a bevezető csőre feltétlenül biztonsági szelepet vagy
olyan biztonsági együttest kell építeni, amely megakadályozza, hogy a kazánban a nyomás
a nominális értéknél 0,1 MPa-nál magasabbra emelkedjen.
Vízmelegítés közben a bojlerban a biztonsági szelepben beállított határig növekszik a
nyomás. Tekintettel arra, hogy a víz a vízvezeték hálozatba történő visszajutása akadályba
ütközik, a biztonsági szelep kifolyó nyílásán víz csöpöghet. A csöpögő vizet a biztonsági
szelep alá helyezett vízfelfogóval a lefolyóba vezetheti. A biztonsági szelep kifolyója alatt
elhelyezett elvezető csövet egyenesen lefelé kell elhelyezni, fagymentes helyen.
Содержание
- 13 ПОДКЛЮЧЕНИЕ К ВОДОПРОВОДНОЙ СЕТИ; незамороживающей среде.
- 14 Исполнение над умывальником; через спускную трубу смесителъного крана.; ПОДКЛЮЧЕНИЕ К 3ЛЕТРИЧЕСКОЙ СЕТИ; должно бытъ не менее 3 мм.; требуется его обязателъно отключитъ от электросети!
- 15 - Тепловой предохранителъ; ПРИМЕНЕНИЕ И ТЕХОБСЛУЖИВАНИЕ; уведомите уполномоченную ремонтную службу.