Водонагреватели Gorenje GBK150RNB6 - инструкция пользователя по применению, эксплуатации и установке на русском языке. Мы надеемся, она поможет вам решить возникшие у вас вопросы при эксплуатации техники.
Если остались вопросы, задайте их в комментариях после инструкции.
"Загружаем инструкцию", означает, что нужно подождать пока файл загрузится и можно будет его читать онлайн. Некоторые инструкции очень большие и время их появления зависит от вашей скорости интернета.

33
R
O
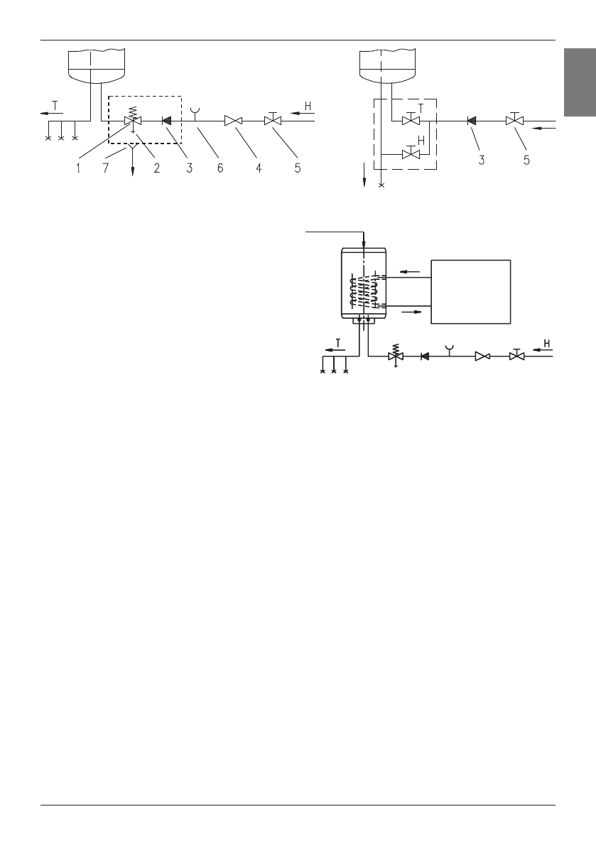
Sistemul închis (sub presiune)
Sistemul deschis (fără presiune)
Legenda:
1 - Ventil de siguranţă
2 - Ventil de testare
3 - Ventil de reţinere
4 - Ventil de reducere a presiunii
5 - Robinet de închidere
6 - Accesoriu de încercare
7 - Scurgere racordată la canalizare
(la canalul colector)
H - Apă rece
T - Apă caldă
Boilerul combinat pentru apă caldă GBK funcţionează la fel ca şi boilerul electric de apă caldă GB, singura deosebire
fiind aceea că cel dintâi este prevăzut şi cu un schimbător termic pentru încălzirea apei sanitare prin intermediul altor
surse de energie (cum ar fi încălzirea centrală, colectoarele solare sau pompa termică). Sistemul de încălzire cu spirale
de încălzire şi cel cu schimbător termic pot funcţiona concomitent sau separat. Boilerul cu sistem combinat de încălzire
va fi branşat la reţeau de distribuire a apei în acelaşi mod ca şi boilerul GB, cel dintâi fiind, în plus, conectat la o sursă
suplimentară de energie. Intrarea agentului termic, respectiv a purtătorului de căldură în schimbătorul termic este
marcată cu roşu, iar ieşirea cu albastru.
Boilerele GBK pot fi conectate şi la conductorul de întoarcere pentru apa caldă. Acesta din urmă asigură furnizarea
permanentă de apă caldă concomitent, în toate locurile de receptare a acesteia. Conductorul de întoarcere va fi racordat
la branşamentul din partea de sus a boilerului. Înainte de branşare va trebui scos căpăcelul de plastic şi deşurubat
buşonul de etanşare din partea superioară a boilerului. Elementele conductorului de întoarcere pot fi cumpărate ulterior
de la vânzătorii autorizaţi ai produselor noastre.
BRANŞAREA LA REŢEAUA ELECTRICĂ
Înainte de conectarea la reţeaua electrică, la boiler va trebui montat un cablu de branşare, de aceea va trebui scos
capacul de protecţie din plastic. Acest lucru sa va face prin îndepărtarea plăcuţei aflate în partea anterioară a capacului.
Plăcuţa poate fi demontată prin introducerea, cu precauţie, a şurubelniţei în despicătura dintre plăcuţa inserată şi
apărătoarea de protecţie, slăbind mai întâi şuruburile aflate lângă butonul termostatului, apoi cele din partea opusă. Când
plăcuţa este degajată prin deşurubare parţială în ambele părţi, ea va putea fi scoasă cu mâna. Pentru a scoate capacul
de protecţie din plastic va trebui dat la o parte şi butonul termostatului şi vor trebui deşurubate cele două şuruburi de
strângere. Montarea la loc a capacului de protecţie din plastic descurge în ordine inversă. Branşarea boilerului la reţeaua
electrică trebuie efectuată în conformitate cu normele valabile pentru instalaţiile electrice. Întrucât boilerul nu este
prevăzut cu elemente care să-l separe în mod permanent de reţeaua electrică, este necesar ca la realizarea legăturii prin
cablu între acesta şi instalaţia permanentă de electricitate să fie montat un comutator care înrerupe alimentarea ambilor
poli şi la care distanţa dintre contactele deschise este este de minim 3 mm.
Conductor de întoarcere
Sursa de energie
Содержание
- 11 Уважаемый покупатель, благодарим Вас за покупку нашего изделия.; монтдж; ТЕХНИЧЕСКИЕ ХАРАКТЕРИСТИКИ АППАРАТА; входящей температуре холодной воды из водопровода 15°C.; ТЕХНИЧЕСКИЕ ХАРАКТЕРИСТИКИ ТЕПЛООБМЕННИКА; US
- 12 Соединительные и монтажные размеры водонагревателя [мм]; ПОДКЛЮЧЕНИЕ K ВОДОПРОВОДУ; от выбранной системы подключения. B открытой проточной системе
- 13 ПОДKЛЮЧЕНИЕ K ЭЛЕКТРОСЕТИ
- 14 ИСПОЛЬЗОВАНИЕ И УХОД













