Водонагреватели Electrolux SP 18-27 MULTYTRONIC - инструкция пользователя по применению, эксплуатации и установке на русском языке. Мы надеемся, она поможет вам решить возникшие у вас вопросы при эксплуатации техники.
Если остались вопросы, задайте их в комментариях после инструкции.
"Загружаем инструкцию", означает, что нужно подождать пока файл загрузится и можно будет его читать онлайн. Некоторые инструкции очень большие и время их появления зависит от вашей скорости интернета.

8
electrolux
• Соблюдайте инструкции на паспортной
табличке и технические характеристики.
• Устройство должно быть заземлено!
Структурные предварительные
условия
• Прибор должен быть не разъёмно подклю-
чен к электросети.
• Номинальное сечение электропровода
допустомо до 10 мм
2
.
• Электрическая проводка не должна быть
повреждена. После монтажа, проводка не
должна находится в зоне открытого доступа.
• Выключатель сети (например, через предохра-
нители) с шириной контактного растояния по
меньшей мере 3 мм на контакт, должен рас-
соединять все три контакта одновреммено.
• Для защититы прибора, предохранительный
элемент для проводки, должен быть подо-
бран к соответствующему номинальному
току прибора.
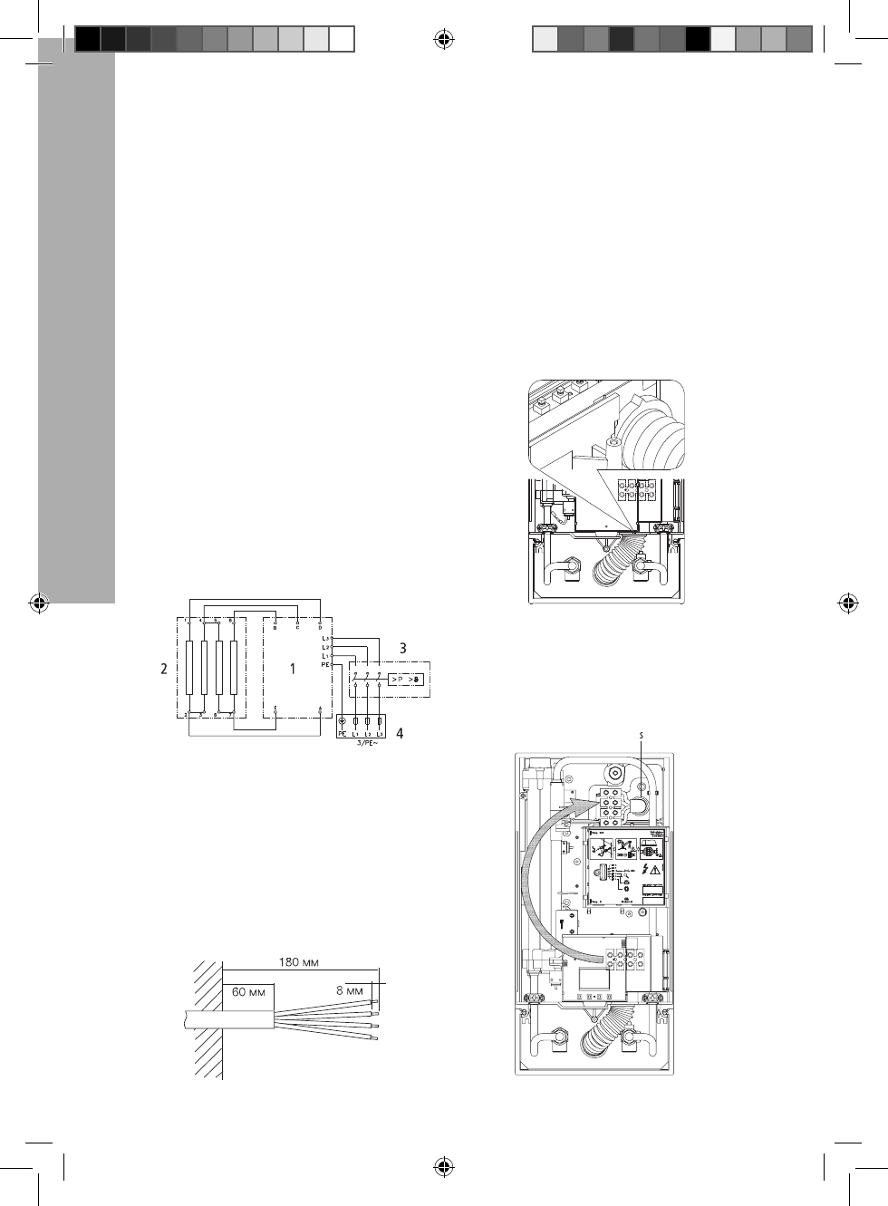
Электрическая схема
SP MULTYTRONIC / SP HIGH LINE
1
электронный
блок;
2
нагревательная
спираль;
3
ограничитель сверхнапорного давления и пер-
вышенной температуры;
4
соединительный
терминал.
Электрическое соединение снизу
• Снимите с проводки верхнюю оболочку при-
близительно на 6 см выше того места, где он
выходит из стены. Меньшим отверстием впе-
ред наденте водозащитный кожух на кабель
таким образом, чтобы кожух прилегал к стене.
Это предотвращает контакт протекаю-
щей воды с электрическими проводами.
Проследите, чтобы это соединение не было
повреждено!
• Откройте откидную несущую часть управ-
ляющей панели направо.
• Оголите проводку и вставьте их в соедини-
тельный терминал в соответствие с принци-
пиальной электрической схемой.
• Поправте водозащитный кожух, как пока-
зано на Рис. 12 и закройте откидную несу-
щую часть управляющей панели.
• Приложите крышку к прибору и прикрутите
ее крепежным шурупом. После этого може-
те поставить обратно лицевую панель.
Электрическое соединение сверху
рис. 11
рис. 12
рис. 13
рис. 10
Содержание
- 3 водонагреватели; Указания по технике безопасности
- 4 Краткое описание прибора
- 5 Размеры; Установка настенного крепления; Холодная вода, добавленная через водопрово-; Установка
- 6 • Закрепите приложенные переходники холод-; Установка прибора; лицевую панель и открутите шуруп крышки.
- 7 Открытое настенное подключение
- 8 Электрическая схема; SP MULTYTRONIC / SP HIGH LINE; Электрическое соединение снизу
- 9 HIGH LINE; Первоначальная эксплуатация; Выбор номинальной мощности может
- 10 Экономичный режим работы; Холодная вода, добавленная через водопро-; Техническое обслуживание; Примечание «Повторная установка»
- 11 Настройки температуры; Чистка и замена сетчатого фильтра
- 12 Стоимость в час (Operating cost per hour)
- 13 При активации дополнительных параметров,; Меню услуг
- 14 Меню настроек
- 15 Возобновление настроек; Eсли кнопкой «Стрелка вниз» установ-; Программные кнопки
- 16 Температурное ограничение
- 17 Проблема; Решение; Уход за изделием; • Пластмассовые и никелированные поверх-; Утилизация
- 18 Технические характеристики; Модель
- 19 Сертификация; Орган по сертификации:
- 20 Га ран тий ный та лон
- 21 ТАЛОН НА ГАРАНТИЙНОЕ ОБСЛУЖИВАНИЕ/













