Водонагреватели Electrolux SP 18-27 MULTYTRONIC - инструкция пользователя по применению, эксплуатации и установке на русском языке. Мы надеемся, она поможет вам решить возникшие у вас вопросы при эксплуатации техники.
Если остались вопросы, задайте их в комментариях после инструкции.
"Загружаем инструкцию", означает, что нужно подождать пока файл загрузится и можно будет его читать онлайн. Некоторые инструкции очень большие и время их появления зависит от вашей скорости интернета.

6
electrolux
кольца вставляются между стеной и настен-
ным креплением (см. рис. 4).
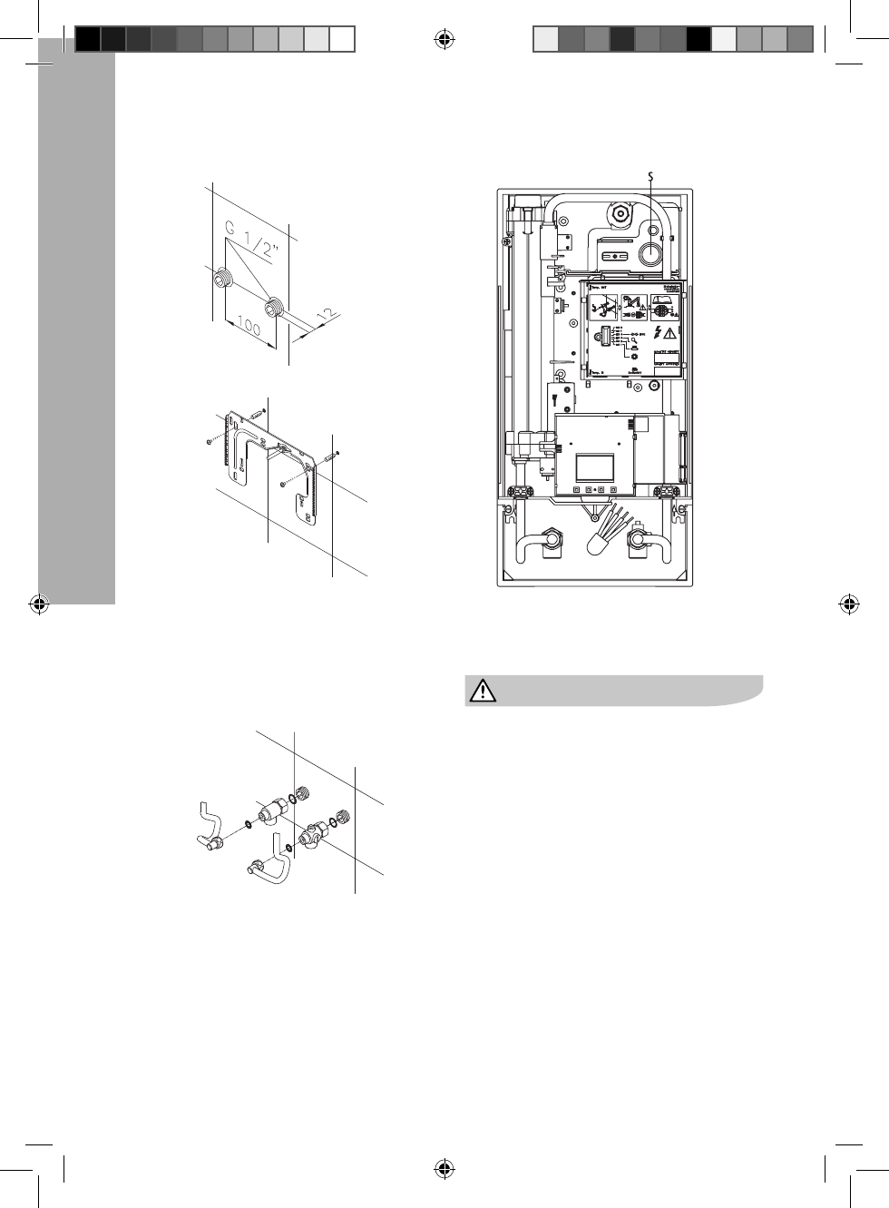
Установка переходников холодной
и горячей воды
• Закрепите приложенные переходники холод-
ной и горячей воды с 1/2-дюймовой проклад-
кой к водопроводной сети, как показано на
рис. 5.
Установка прибора
1. Чтобы снять крышку прибора, снимите
лицевую панель и открутите шуруп крышки.
Примечание:
При замене вышедшего из строя прибора
других заводов-изготовителей, проводка
электроснабжения может находится в верхней
части прибора. В этом случае следуйте ниже
описанным указаниям по электрическому под-
ключению сверху.
2. Поместите прибор на креплении нагревате-
ля таким образом, чтобы шуруп настенного
крепления подходил к существующему
отверстию прибора. Если это необходимо,
то можно сделать небольшую коррекцию,
осторожно согнув шуруп. Однако при этом
прикручивание водопроводных труб при-
бора должно происходить без приложения
особых усилий.
рис. 6
рис. 4
рис. 5
Содержание
- 3 водонагреватели; Указания по технике безопасности
- 4 Краткое описание прибора
- 5 Размеры; Установка настенного крепления; Холодная вода, добавленная через водопрово-; Установка
- 6 • Закрепите приложенные переходники холод-; Установка прибора; лицевую панель и открутите шуруп крышки.
- 7 Открытое настенное подключение
- 8 Электрическая схема; SP MULTYTRONIC / SP HIGH LINE; Электрическое соединение снизу
- 9 HIGH LINE; Первоначальная эксплуатация; Выбор номинальной мощности может
- 10 Экономичный режим работы; Холодная вода, добавленная через водопро-; Техническое обслуживание; Примечание «Повторная установка»
- 11 Настройки температуры; Чистка и замена сетчатого фильтра
- 12 Стоимость в час (Operating cost per hour)
- 13 При активации дополнительных параметров,; Меню услуг
- 14 Меню настроек
- 15 Возобновление настроек; Eсли кнопкой «Стрелка вниз» установ-; Программные кнопки
- 16 Температурное ограничение
- 17 Проблема; Решение; Уход за изделием; • Пластмассовые и никелированные поверх-; Утилизация
- 18 Технические характеристики; Модель
- 19 Сертификация; Орган по сертификации:
- 20 Га ран тий ный та лон
- 21 ТАЛОН НА ГАРАНТИЙНОЕ ОБСЛУЖИВАНИЕ/













