Водонагреватели Electrolux GWH 285 ERN NanoPro - инструкция пользователя по применению, эксплуатации и установке на русском языке. Мы надеемся, она поможет вам решить возникшие у вас вопросы при эксплуатации техники.
Если остались вопросы, задайте их в комментариях после инструкции.
"Загружаем инструкцию", означает, что нужно подождать пока файл загрузится и можно будет его читать онлайн. Некоторые инструкции очень большие и время их появления зависит от вашей скорости интернета.

водонагреватели
9
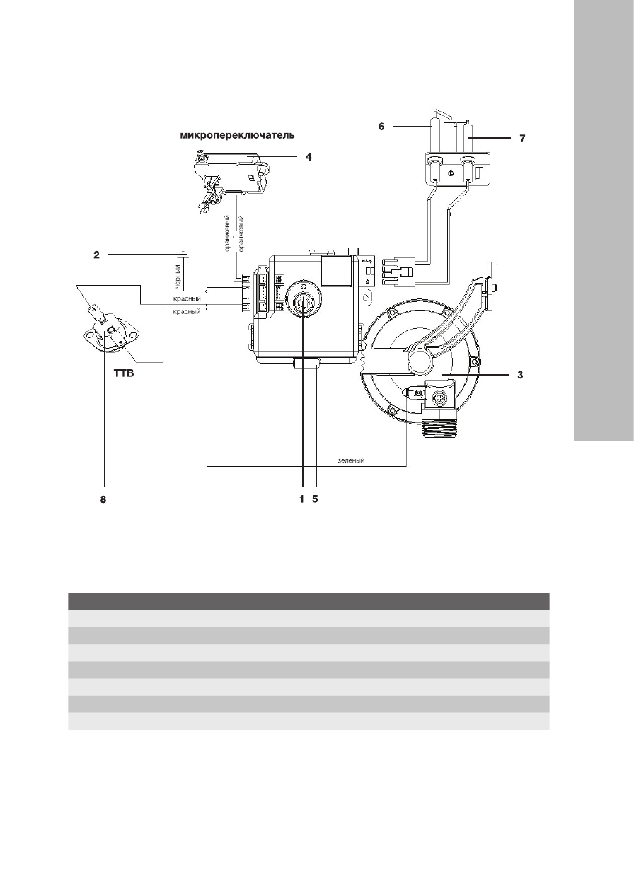
Электрическая схема
1
Выключатель
“вкл./выкл.“
2
Клемма для подключения
заземляющего
провода
3
Сервоклапан
4
Микропереключатель
5
Отсек
батарейки
6
Электрод
зажигания
7
Электрод контроля пламени
8
Датчик тяги (ТТВ)
(термозащита)
Размер соединения
В аппарате
Внешние
Трубопровод
Природный газ
3/4"
3/4"
Холодная вода (вход)
3/8"
1/2"
Горячая вода (выход)
1/2"
1/2"
Дымоход
Диаметр дымохода
112 мм (внутренний)
110 мм (внешний)
Содержание
- 3 водонагреватели; Введение; Замена батареек; Эксплуатация; Получение горячей воды
- 4 Регулировка температуры воды; Выключение; Защита от замерзания
- 5 Предотвращение образования накипи; • Ни в коем случае не вносите никаких
- 6 Размеры водонагревателя
- 8 Схема устройства водонагревателя
- 9 Электрическая схема; Размер соединения; Трубопровод
- 10 Монтаж водонагревателя
- 12 Утилизация; Серификат соответствия:; Водонагреватель проточный газовый; Технические характеристики
- 14 Га ран тий ный та лон
- 15 ТАЛОН НА ГАРАНТИЙНОЕ ОБСЛУЖИВАНИЕ/













