Водонагреватели Electrolux GWH 11 PRO - инструкция пользователя по применению, эксплуатации и установке на русском языке. Мы надеемся, она поможет вам решить возникшие у вас вопросы при эксплуатации техники.
Если остались вопросы, задайте их в комментариях после инструкции.
"Загружаем инструкцию", означает, что нужно подождать пока файл загрузится и можно будет его читать онлайн. Некоторые инструкции очень большие и время их появления зависит от вашей скорости интернета.

водонагрівачі
19
18
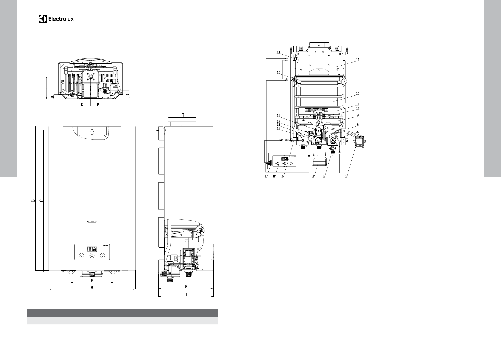
Опис водонагрівача
Розміри водонагрівача
Підключення гарячої води повинно виконуватися за допомогою гнучкого підведення.
Схема пристрою водонагрівача
1. Роз’єм підключення дисплея
2. Дисплей
3. Датчик температури
4. Блок батарей
5. Гніздо холодної води
6. Блок управління
7. Датчик протоку
8. Задня панель
9. Пальник
10. Електроди розпалу
11. захисна пластина від перегріву
12. Теплообмінник
13. Димохід
14. Термостат 80 °
15. Термостат 77 °
16. Газова трубка
17. Газовий клапан
18. Малий пропорційний клапан
19. Малий протипожежний клапан
Мал. 4
A
B
C
D
E
F
G
H
I
J
К
L
330
160
540
550
93.5
75
115
23
44
ᴓ
108
204
207
Содержание
- 3 Эксплуатация
- 4 Описание водонагревателя; Размеры водонагревателя; Схема устройства водонагревателя
- 5 Электрическая схема; Размер соединения; Трубопровод; Монтаж водонагревателя
- 6 Комплектация; Водонагреватель проточный газовый; Неисправность
- 7 Утилизация; Срок службы составляет 5 лет.; Сертификация; Товар соответствует требованиям:; СИА «Грин Трейс»; Для заметок
- 14 Га ран тий ный та лон
Характеристики
Остались вопросы?Не нашли свой ответ в руководстве или возникли другие проблемы? Задайте свой вопрос в форме ниже с подробным описанием вашей ситуации, чтобы другие люди и специалисты смогли дать на него ответ. Если вы знаете как решить проблему другого человека, пожалуйста, подскажите ему :)