Водонагреватели Bosch W 10-2P (Therm 4000 O) - инструкция пользователя по применению, эксплуатации и установке на русском языке. Мы надеемся, она поможет вам решить возникшие у вас вопросы при эксплуатации техники.
Если остались вопросы, задайте их в комментариях после инструкции.
"Загружаем инструкцию", означает, что нужно подождать пока файл загрузится и можно будет его читать онлайн. Некоторые инструкции очень большие и время их появления зависит от вашей скорости интернета.

6 720 647 816 (2016/06)
Therm 4000 O
6 | Данные о приборе
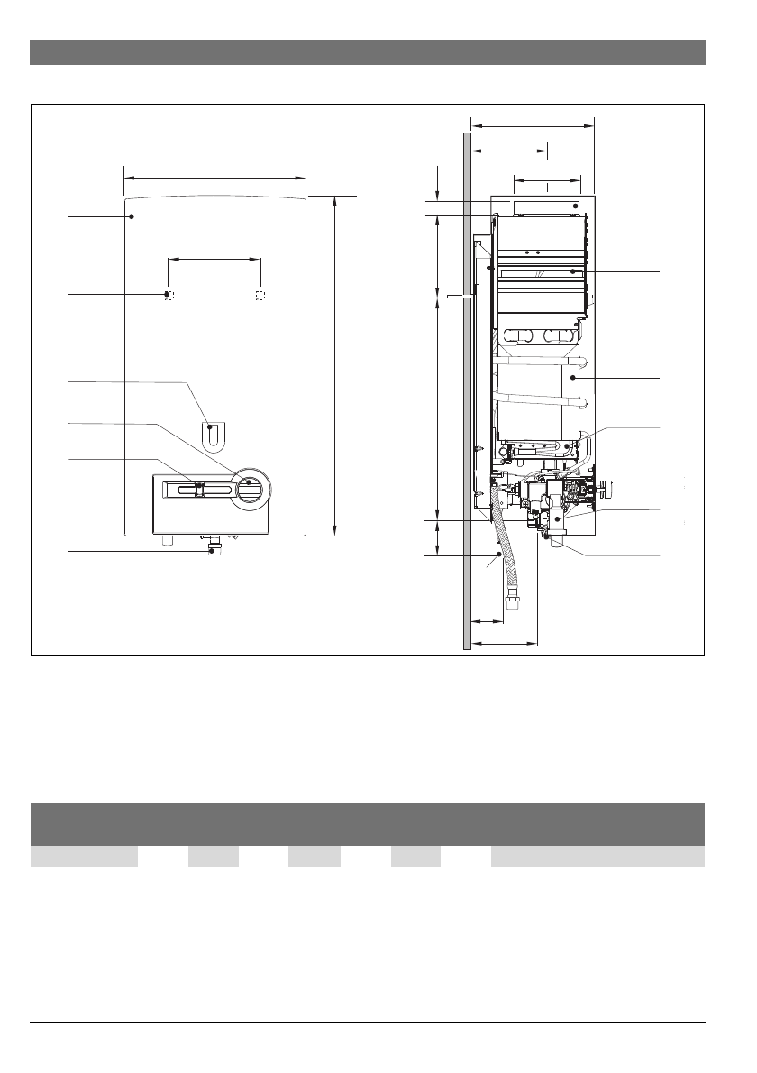
2.7
Габаритные размеры
Рис. 1
[1] Кожух
[2] Петли для навески
[3] Смотровое окошко
[4] Переключатель объема воды
[5] Регулятор мощности
[6] Газовый патрубок
[7] Патрубок для отвода дымовых газов
[8] Защитный коллектор дымовых газов с контролем тяги
[9] Камера сгорания
[10] Газовая арматура
[11] Устройство пьезорозжига
[12] Водяная арматура
6720608988-01.1V
1
2
3
4
5
6
9
11
10
12
7
8
A
C
B
E
H
50
220
125
D
97
63.5
F
G
Габаритные
размеры (мм)
A
B
C
D
E
F
G
H (Ø )
Природный газ
Сжиженный газ
W 10...
310
580
228
112,5
463
60
25
3/4”
Таб. 4
Габаритные размеры












