Baxi Premier plus 100 - Инструкция по эксплуатации - Страница 3

Водонагреватели Baxi Premier plus 100 - инструкция пользователя по применению, эксплуатации и установке на русском языке. Мы надеемся, она поможет вам решить возникшие у вас вопросы при эксплуатации техники.

Если остались вопросы, задайте их в комментариях после инструкции.

"Загружаем инструкцию", означает, что нужно подождать пока файл загрузится и можно будет его читать онлайн. Некоторые инструкции очень большие и время их появления зависит от вашей скорости интернета.
Страница:
/ 13
Загружаем инструкцию
background image

Baxi Premier Plus                                                     

руководство

 

по

 

установке

 

и

 

эксплуатации

   

 

 

 

3

 

 

 

 

 

 

 

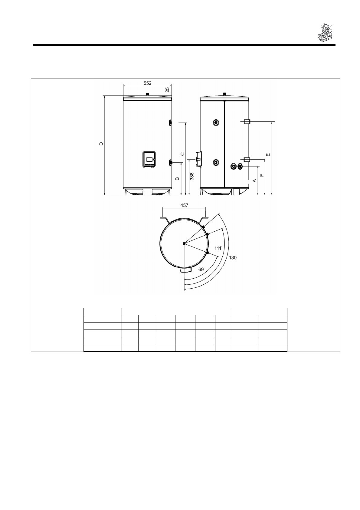
Ёмкость

л

Габариты

мм

Вес

кг

 A 

Пустой

 

Полный

 

100  314 354

493 762 555 280

25 

125 

150 314 

354

792 1090

803 382

31 

181 

200 314 

354 1094 1474 1088 382

38 238 

300 314 

354 1480 2040

- -  60  360 

 

Рис

. 1 

Полезные видео

Характеристики

Оцените статью
tehnopanorama.ru
Остались вопросы?

Не нашли свой ответ в руководстве или возникли другие проблемы? Задайте свой вопрос в форме ниже с подробным описанием вашей ситуации, чтобы другие люди и специалисты смогли дать на него ответ. Если вы знаете как решить проблему другого человека, пожалуйста, подскажите ему :)

Задать вопрос

Часто задаваемые вопросы
Как посмотреть инструкцию к Baxi Premier plus 100?
Необходимо подождать полной загрузки инструкции в сером окне на данной странице
Руководство на русском языке?
Все наши руководства представлены на русском языке или схематично, поэтому вы без труда сможете разобраться с вашей моделью
Как скопировать текст из PDF?
Чтобы скопировать текст со страницы инструкции воспользуйтесь вкладкой "HTML"