Водонагреватели BaltGaz Comfort 17 29780 - инструкция пользователя по применению, эксплуатации и установке на русском языке. Мы надеемся, она поможет вам решить возникшие у вас вопросы при эксплуатации техники.
Если остались вопросы, задайте их в комментариях после инструкции.
"Загружаем инструкцию", означает, что нужно подождать пока файл загрузится и можно будет его читать онлайн. Некоторые инструкции очень большие и время их появления зависит от вашей скорости интернета.

Руководство для пользователя
5
2.4.
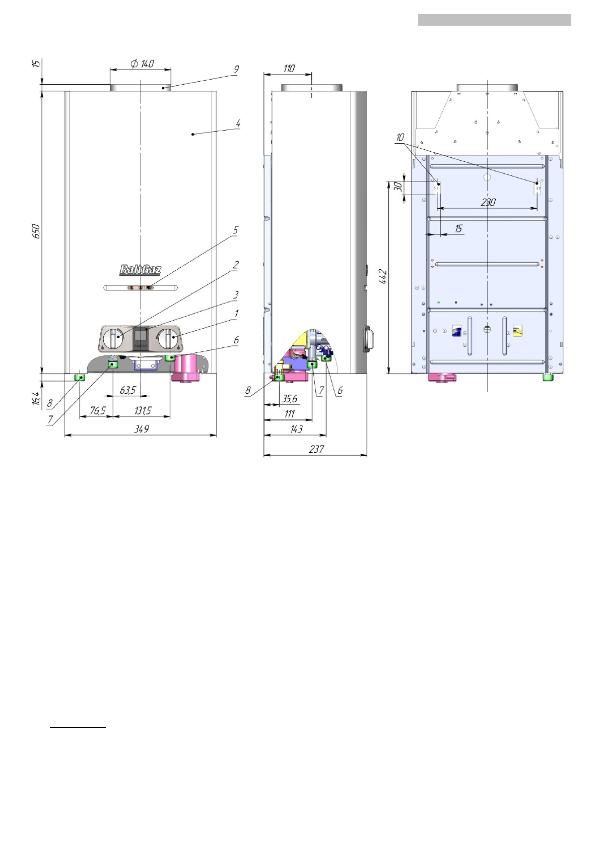
Габаритные и присоединительные размеры аппарата
1
– ручка регулировки расхода воды;
2
– ручка регулировки расхода газа;
3
– дисплей температуры воды;
4
– облицовка;
5
– окно смотровое;
6
– штуцер подвода холодной воды, резьба G 1/2;
7
– штуцер подвода газа, резьба G 1/2;
8
– штуцер отвода горячей воды, резьба G 1/2;
9
– патрубок газоотводящего устройства;
10
– монтажные отверстия.
Рисунок 1. Габаритные и присоединительные размеры аппарата
3.
ПОЛЬЗОВАНИЕ АППАРАТОМ
Для нормальной и безопасной работы аппарата должно быть обеспечено выполнение условий п.п. 2.2.9;
2.2.11
и 2.2.14 (таблица 1). Невыполнение этих условий может привести к неправильной или нестабильной работе
аппарата или выходу его из строя
.
Указанная в п. 2.2.2 таблицы 1 теплопроизводительность аппарата обеспечивается
(с точностью ± 5%) при номинальном давлении газа на входе работающего аппарата, указанном в разделе
«Свидетельство о приемке».
3.1.
Включение аппарата
3.1.1.
Для включения аппарата в общем случае необходимо:
а) установить (если не установлены) элементы питания в батарейный отсек (см. п. 3.4.2, стр. 6);
б) открыть (если закрыт) запорный кран на газопроводе перед аппаратом;
в) открыть (если закрыт) запорный кран холодной воды перед аппаратом;
г) рекомендуется повернуть ручки 1 и 2 в положения минимального расхода воды и газа (рис. 2).
д) открыть кран горячей воды, при этом должны начаться искровые разряды между свечой и горелкой (если расход во-
ды, проходящей через аппарат, будет не менее 2,5 л/мин), от искровых разрядов должна зажечься горелка и начаться нагрев
воды.
ВНИМАНИЕ!
Во избежание ожогов при включении аппарата не следует приближать глаза слишком близко к
смотровому окну.
Примечание 1
.
При первом включении аппарата после его установки или после длительного перерыва в работе ап-
парата, зажигание горелки будет происходить только после удаления воздуха из газовых коммуникаций и заполнения их
газом. Так как искровые разряды длятся около 7 секунд после включения воды, то для продолжения розжига необходимо
кран горячей воды закрыть, а затем снова открыть. Такую процедуру надо повторить до полного выхода воздуха из ко м-
муникаций, пока не произойдет розжиг горелки.
Примечание 2.
Зажигание горелки произойдет при расходе воды не менее 2,5 л/мин в положении ручки 1 регулировки
расхода воды «Минимальный расход» (рис. 2) и не менее 6 л/мин в положении «Максимальный расход». Поэтому, если по-
сле открытия крана горячей воды горелка не зажигается, то следует перевести ручку регулировки расхода воды в пол о-













