VIESSMANN Vitorond 100 KC4 18 кВт - Инструкция по эксплуатации

VIESSMANN Vitorond 100 KC4 18 кВт

Котел VIESSMANN Vitorond 100 KC4 18 кВт - инструкция пользователя по применению, эксплуатации и установке на русском языке. Мы надеемся, она поможет вам решить возникшие у вас вопросы при эксплуатации техники.

Если остались дополнительные вопросы — свяжитесь с нами через контактную форму.

1 Страница 1
2 Страница 2
3 Страница 3
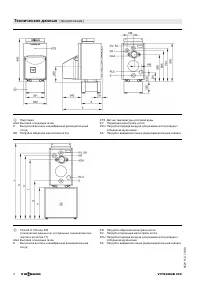
4 Страница 4
5 Страница 5
6 Страница 6
7 Страница 7
8 Страница 8
9 Страница 9
10 Страница 10
11 Страница 11
12 Страница 12
13 Страница 13
14 Страница 14
15 Страница 15
Страница: / 15

Содержание:

  • Страница 2 – VIESMANN; Технический паспорт; казание
  • Страница 3 – Основные преимущества
  • Страница 4 – Технические данные
  • Страница 5 – продолжение
  • Страница 6 – Монтаж
  • Страница 7 – Гидродинамическое сопротивление греющего контура; Состояние при поставке; Варианты контроллеров; Принадлежности для водогрейного котла
  • Страница 8 – Указания по проектированию
  • Страница 9 – Примеры применения
  • Страница 13 – Системотехника; Проверенное качество
Загрузка инструкции

Инструкция
по эксплуатации

Жидкотопливный напольный котел с дизельной
горелкой VIESSMANN Vitorond 100 KC4 18 кВт

Цены на товар на сайте:

http://kotly.vseinstrumenti.ru/zhidkotoplivnye/viessmann/vitorond_100_kc4_18_kvt/

Отзывы и обсуждения товара на сайте:

http://kotly.vseinstrumenti.ru/zhidkotoplivnye/viessmann/vitorond_100_kc4_18_kvt/#tab-Responses

"Загрузка инструкции" означает, что нужно подождать пока файл загрузится и можно будет его читать онлайн. Некоторые инструкции очень большие и время их появления зависит от вашей скорости интернета.

Краткое содержание

Страница 2 - VIESMANN; Технический паспорт; казание

VITOROND 100 Тип VR2B Низкотемперат урный чугунный водогрейный котелдля жидкого и газообразного топливаПрограммируемая и погодозависимая теплогенера - ция с переменной температ урой теплоносителя . В сборе со смонтированной теплоизоляцией VIESMANN Технический паспорт № для заказа и цены : см . в пра...

Страница 3 - Основные преимущества

& Нормативный к . п . д .: 94,5 %. & Теплообменные поверхности Eutectoplex обеспечивают высокую эксплуатационную надежность и длительный срокслужбы . Гомогенная кристаллическая структура специаль - ного серого чугуна эвтектического типа обеспечивает одно - родность тепловых потоков и препятс...

Страница 4 - Технические данные

Технические данные Номинальная тепловая мощность кВт 15 18 22 27 33 Идентификатор изделия CE ‐ 0645AU ‐ 114.3 Установочные размеры ( с теплоизоляцией ) Длина ( размер a) мм 515 515 650 790 790 Ширина соответствует общей ширине мм 500 500 500 500 500 Высота мм 830 830 830 830 830 Габаритные размеры О...

Характеристики

Другие модели - Котлы VIESSMANN

Все котлы VIESSMANN