VIESSMANN Vitocell 100-V CVA, 200л., серый Z018467 - Инструкция по эксплуатации

VIESSMANN Vitocell 100-V CVA, 200л., серый Z018467

Водонагреватель VIESSMANN Vitocell 100-V CVA, 200л., серый Z018467 - инструкция пользователя по применению, эксплуатации и установке на русском языке. Мы надеемся, она поможет вам решить возникшие у вас вопросы при эксплуатации техники.

Если остались дополнительные вопросы — свяжитесь с нами через контактную форму.

1 Страница 1
2 Страница 2
3 Страница 3
4 Страница 4
5 Страница 5
6 Страница 6
7 Страница 7
8 Страница 8
9 Страница 9
10 Страница 10
11 Страница 11
12 Страница 12
13 Страница 13
14 Страница 14
15 Страница 15
16 Страница 16
17 Страница 17
18 Страница 18
19 Страница 19
20 Страница 20
Страница: / 20
Загрузка инструкции

VIESMANN

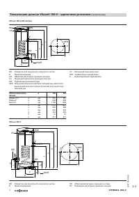
VITOCELL 100-V

Вертикальный емкостный водонагреватель

Объем 160 - 1000 л

VITOCELL 100-V

Тип CVA

Вертикальный

емкостный водонагреватель

стальной

, с

эмалевым покрытием "Ceraprotect"

5457 959 GUS 5/2011

Технический паспорт

Номер заказа и цены: см. прайс-лист

"Загрузка инструкции" означает, что нужно подождать пока файл загрузится и можно будет его читать онлайн. Некоторые инструкции очень большие и время их появления зависит от вашей скорости интернета.

Характеристики

Другие модели - Водонагреватели VIESSMANN