Варочная панель Zigmund Shtain MN 14.31 S - инструкция пользователя по применению, эксплуатации и установке на русском языке. Мы надеемся, она поможет вам решить возникшие у вас вопросы при эксплуатации техники.
Если остались вопросы, задайте их в комментариях после инструкции.
"Загружаем инструкцию", означает, что нужно подождать пока файл загрузится и можно будет его читать онлайн. Некоторые инструкции очень большие и время их появления зависит от вашей скорости интернета.

11
задней частью и прилегающими с боков поверхностями
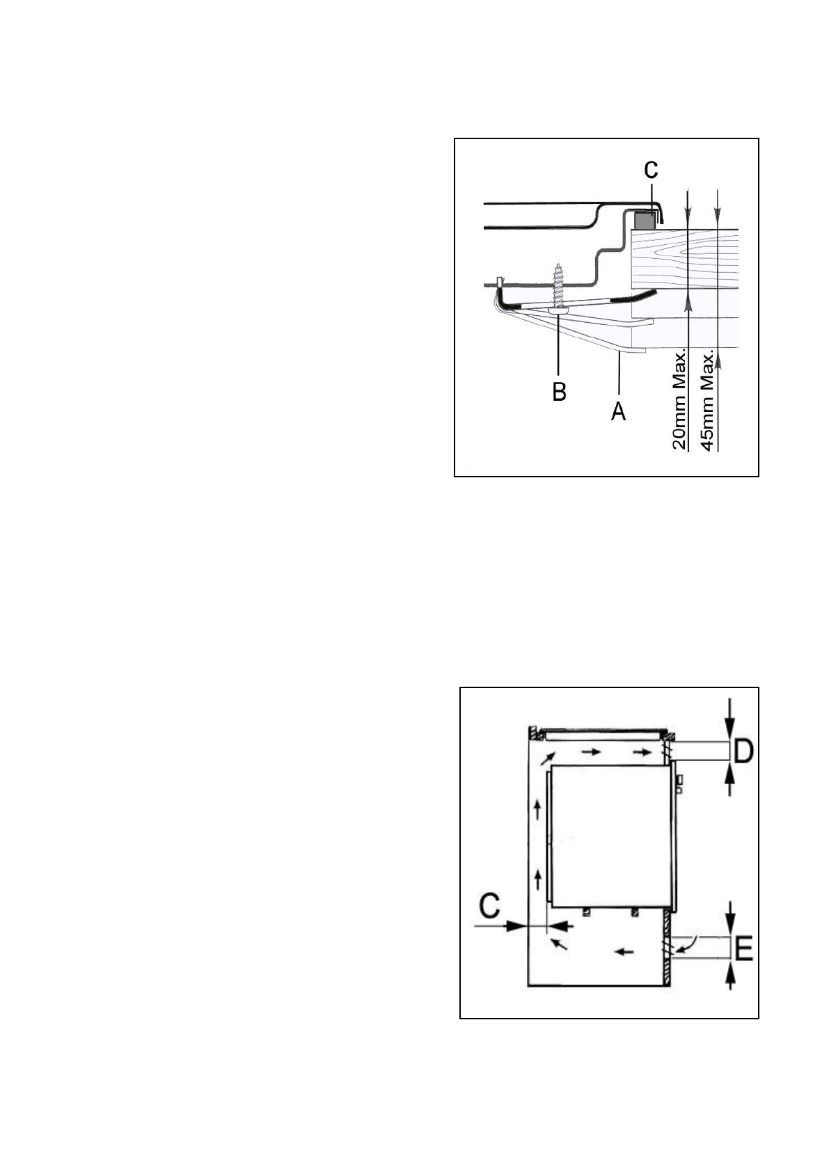
обозначены на рис. 6. На рис. 7, показана схема крепления газовой варочной
поверхности к столешнице.
Пожалуйста, помните:
Чтобы гарантировать циркуляцию воздуха в
достаточной степени под газовой варочной
поверхностью, необходимо оставить расстояния,
не менее 10 см, до любого выдвижного ящика,
любой перегородки или духовки, которые могут
располагаться под газовой варочной
поверхностью.
Если газовая варочная поверхность
устанавливается вместе с духовкой, необходимо
следовать инструкциям изготовителя духовки, и
обеспечить вентиляцию, как показано на рис. 8.
При этом размеры зазоров
С
,
Е
должны быть не
менее 30 мм,
D
– 10 мм.
В любом случае, если духовка является
газовой, то обе части оборудования
должны быть связаны с газовой
магистралью и электрической цепью
независимо.
Рис. 7
Крепление газовой варочной поверхности к столешнице
Сделайте вырез в кухонном рабочем столе в соответствии с заданными размерами,
показанными на рис. 6.
Древесные волокна, которые используются при изготовлении рабочей поверхности
столов (столешницы), относительно быстро набухают при намокании. Поэтому нанесите
на торцевую поверхность
выреза специальный клей или герметик, защищающий эту поверхность
от пара или конденсирующейся влаги, которая может появляться с нижней
стороны кухонного рабочего стола.
Прежде чем монтировать газовую варочную
поверхность в подготовленную для нее нишу
(см. рис. 7) необходимо прикрепить
прилагаемую клеящуюся уплотнительную
прокладку
С
по нижнему краю варочной
поверхности.
Крепить прокладку необходимо равномерно по
всему периметру, не допуская ни разрывов, ни
наложений. Для этого снимите поддерживающие
решетки для посуды, колпачки и рассекатели
горелок и переверните газовую варочную
поверхность, следя за тем, чтобы не повредить
свечи розжига и термоэлементы «газ-контроля».
Приклейте уплотнительную прокладку
С
по
углублению нижнего края газовой варочной
поверхности.
Поместите варочную поверхность в
подготовленную для нее нишу ровно
посередине, придерживая ее снизу. Затем
нажмите на нее вниз так, чтобы газовая
варочная поверхность устойчиво опиралась на мебель.
Эту операцию удобнее выполнять вдвоем, чтобы не
Рис. 8
сместить уплотнительную прокладку
С
.
Закрепите газовую варочную поверхность к корпусу
Характеристики
Остались вопросы?Не нашли свой ответ в руководстве или возникли другие проблемы? Задайте свой вопрос в форме ниже с подробным описанием вашей ситуации, чтобы другие люди и специалисты смогли дать на него ответ. Если вы знаете как решить проблему другого человека, пожалуйста, подскажите ему :)