Варочная панель Fulgor Milano FSH 905 ID TS WH - инструкция пользователя по применению, эксплуатации и установке на русском языке. Мы надеемся, она поможет вам решить возникшие у вас вопросы при эксплуатации техники.
Если остались вопросы, задайте их в комментариях после инструкции.
"Загружаем инструкцию", означает, что нужно подождать пока файл загрузится и можно будет его читать онлайн. Некоторые инструкции очень большие и время их появления зависит от вашей скорости интернета.

78
ES
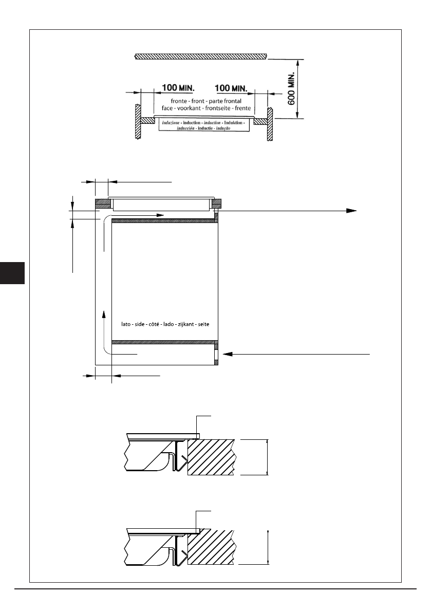
aria - air - air - Luft - aire - lucht - ar
100 cm
2
MIN.
induzione - induction - induction - Induktion
-
inducción - inductie - indução
aria - air - air - Luft - aire - lucht - ar
100 cm
2
MIN.
ZONA FORNO O ARMADIETTO
OVEN ZONE OR CUPBOARD
ZONE FOUR OU PLACARD
OFENBEREICH ODER SCHRANK
ZONA HORNO O ARMARIO
OVENRUIMTE OF KASTJE
ZONA DO FORNO OU ARMÁRIO
50 MIN.
50 MIN.
20 MIN.
(2 x 500)
Fig. 6
INDUZIONE
INDUCTIO
N
INDUCCIØN
INDUÎÍ O
POSICIÓN GUARNICIÓN SELLADOR EN
LA VERSIÓN A RAS DE ENCIMERA
POSICIÓN GUARNICIÓN SELLADOR EN
LA VERSIÓN SEMI A RAS DE ENCIMERA
ATENCIÓN: el no respeto de las
indicaciones de construcción del mueble
implicará la pérdida de la garantía sobre el
producto.
Характеристики
Остались вопросы?Не нашли свой ответ в руководстве или возникли другие проблемы? Задайте свой вопрос в форме ниже с подробным описанием вашей ситуации, чтобы другие люди и специалисты смогли дать на него ответ. Если вы знаете как решить проблему другого человека, пожалуйста, подскажите ему :)













