Варочная панель Fulgor Milano CPH 765 G WK TC WH X - инструкция пользователя по применению, эксплуатации и установке на русском языке. Мы надеемся, она поможет вам решить возникшие у вас вопросы при эксплуатации техники.
Если остались вопросы, задайте их в комментариях после инструкции.
"Загружаем инструкцию", означает, что нужно подождать пока файл загрузится и можно будет его читать онлайн. Некоторые инструкции очень большие и время их появления зависит от вашей скорости интернета.
/html/pdf_to_image068.png)
68
69
PT
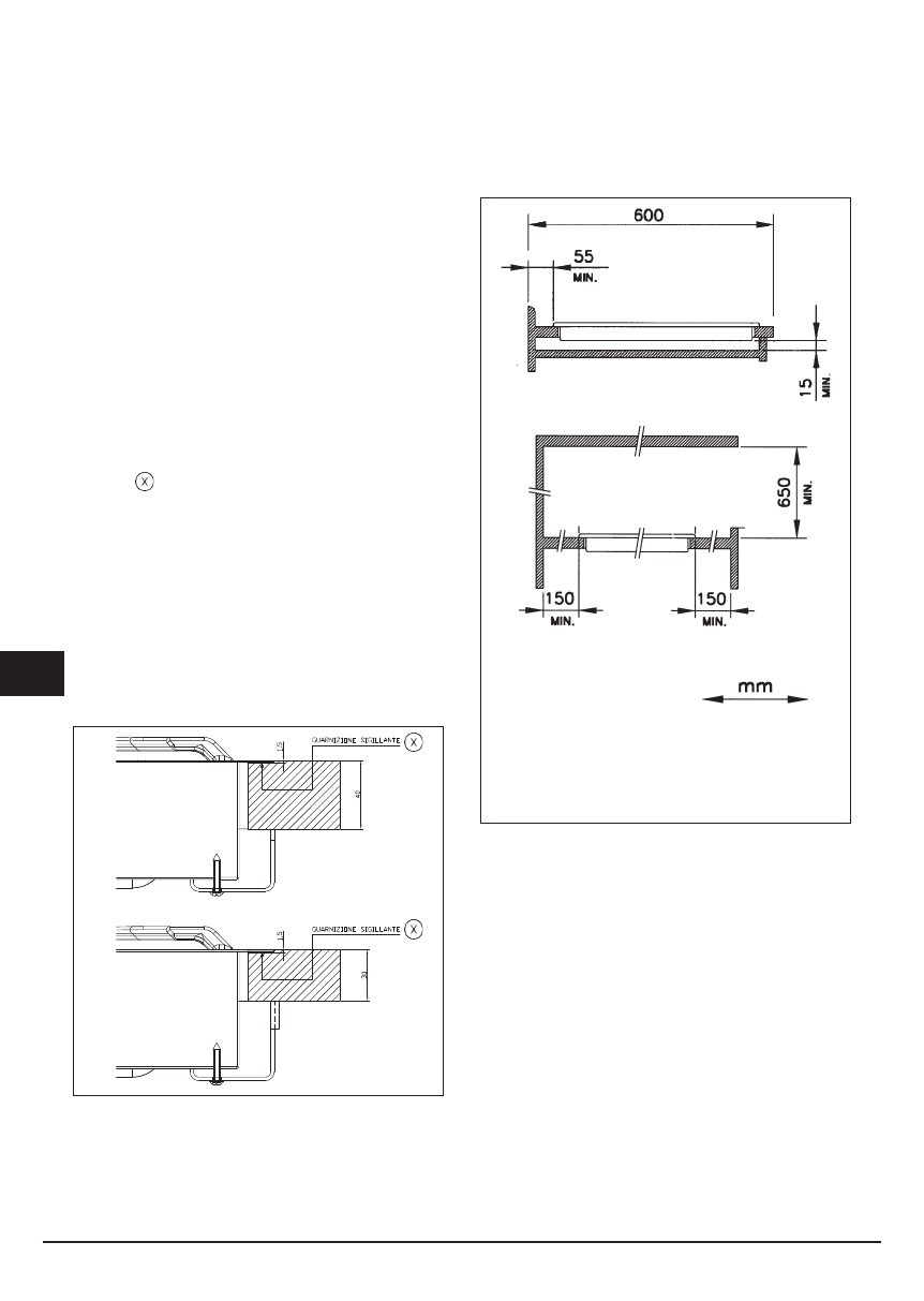
Instalação
Este aparelho não possui um dispositivo de descarga do
produto da combustâo. Recomenda-se por conseguinte,
que venha instalado em lugares suficientemente arejados
segundo as disposições das leis em vigor. A quantidade
necessária de ar para a combustão, não deverá ser inferior
a 2.0 m
3
/h por cada kW de força instalada. Veja a tabela
relativa à força dos queimadores.
Posicionamento (Fig. 5)
O aparelho está previsto para ser encaixado num plano
de trabalho como ilustrado na respectiva figura.
Antes de introduzir o plano prepare a guarnição de
vedação ao redor de todo o perímetro da abertura
do encaixe.
As medidas de encaixe estão indicadas nas figuras 6-7-
8-9.
Para os modelos Filotop é necessário realizar um
abaixamento na zona perimetral da abertura de encaixe
por uma profundidade de 1,5 mm.
Para os modelos Semifilotop esse abaixamento não
deve ser realizado.
A instalação pode ser realizada em vários materiais,
tais como em aço, mármore, conglomerados, sintéticos,
madeira e madeira revestida com laminados plásticos,
sempre que resistentes a uma temperatura de 90°C.
Fig. 5
Sob o painel deve ser instalado um painel de
madeira ou outro material isolante, posicionado a
uma distância mínima de 15 mm do invólucro do
plano.
Modalités d’installation
Fig. 5
Характеристики
Остались вопросы?Не нашли свой ответ в руководстве или возникли другие проблемы? Задайте свой вопрос в форме ниже с подробным описанием вашей ситуации, чтобы другие люди и специалисты смогли дать на него ответ. Если вы знаете как решить проблему другого человека, пожалуйста, подскажите ему :)













