Варочная панель Fulgor Milano CPH 765 G WK TC WH X - инструкция пользователя по применению, эксплуатации и установке на русском языке. Мы надеемся, она поможет вам решить возникшие у вас вопросы при эксплуатации техники.
Если остались вопросы, задайте их в комментариях после инструкции.
"Загружаем инструкцию", означает, что нужно подождать пока файл загрузится и можно будет его читать онлайн. Некоторые инструкции очень большие и время их появления зависит от вашей скорости интернета.
/html/pdf_to_image032.png)
32
33
FR
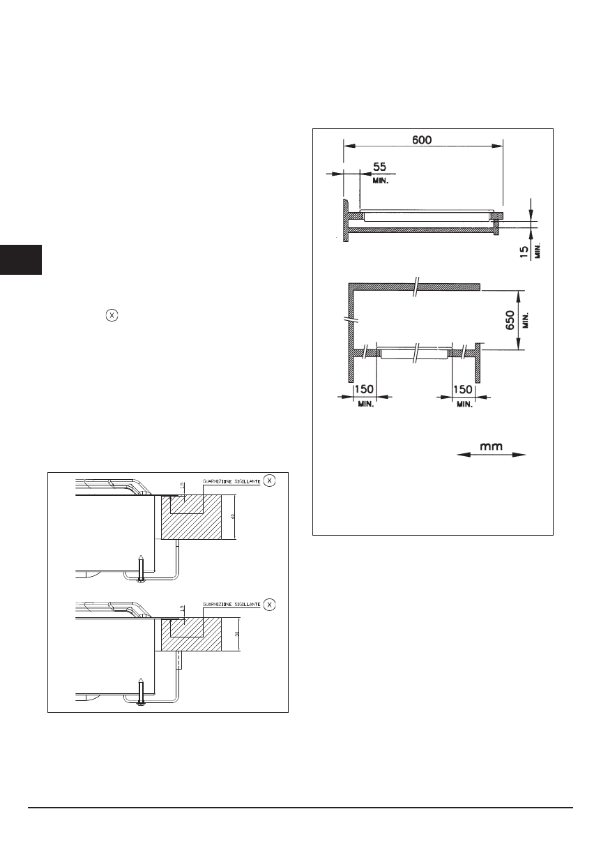
Installation
Cet appareil n’est pas pourvu de dispositif d’évacuation
des produits de la combustion. On doit donc l’installer
dans des endroits suffisamment aerés suivant les
dispositions des lois en vigueur. La quantitè d’air
nécéssaire à la combustion ne doit pas etre inférieure
à 2.0 m
3
/h pour chaque kW de puissance installer. Voir
tableau puissances brûleurs.
Positionnement (Fig. 5)
La table de cuisson doit être encastrée dans un plan de
travail tel que l’illustre la figure.
Avant d’introduire la table de cuisson, disposer le joint
d’étanchéité sur tout le périmètre de l’ouverture
d’encastrement.
Les dimensions d’encastrement sont indiquées dans les
figures 6-7-8-9.
Pour les modèles Filotop, réaliser un abaissement sur
le périmètre de l’ouverture d’encastrement sur une
profondeur de 1,5mm.
Ce fraisage n’est pas nécessaire pour les modèles
Semifilotop.
L'installation est réalisable sur différents matériaux
comme la acier, marbre, béton, synthétiques, bois et
bois revêtu de stratifié, à condition qu'ils soient résistants
à une température de 90° C).
Fig. 5
Sous le bandeau, il faut monter un panneau en
bois ou réalisé dans un autre matériau isolant,
positionné à une distance minimale de 15mm de
l’enveloppe de la table de cuisson.
Modalités d’installation
Fig. 5
Характеристики
Остались вопросы?Не нашли свой ответ в руководстве или возникли другие проблемы? Задайте свой вопрос в форме ниже с подробным описанием вашей ситуации, чтобы другие люди и специалисты смогли дать на него ответ. Если вы знаете как решить проблему другого человека, пожалуйста, подскажите ему :)













