Варочная панель Fulgor Milano CPH 401 GDWK X - инструкция пользователя по применению, эксплуатации и установке на русском языке. Мы надеемся, она поможет вам решить возникшие у вас вопросы при эксплуатации техники.
Если остались вопросы, задайте их в комментариях после инструкции.
"Загружаем инструкцию", означает, что нужно подождать пока файл загрузится и можно будет его читать онлайн. Некоторые инструкции очень большие и время их появления зависит от вашей скорости интернета.

38
39
ES
Instalación
Este aparato no tiene un dispositivo de descarga de los
productos de la combustión. Se aconseja instalarlo en
locales suficientemente aireados según las disposiciones
de ley vigentes. La cantidad de aire necesaria a la
combustión no tiene que ser menos que 2.0 m
3
/h por
cada kW de potencia instalado. Véase tabla potencias
quemadores.
N.B.
El aparato pertenece a la clase 3 de instalación.
Las condiciones de regulación del aparato se indican en
la placa de características situada en el cárter.
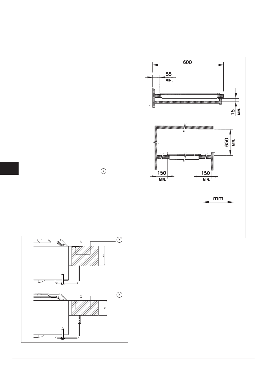
Colocación (Fig. 2)
El aparato está preparado para ser empotrado en
una mesa de trabajo tal como se ilustra en la figura
correspondiente.
Antes de introducir la placa de cocción es necesario
preparar la guarnición de estanqueidad
en todo el
perímetro de la perforación del empotrado.
Las medidas de empotrado aparecen en las figuras 6-7-
8-9. Para los modelos Filotop es necesario efectuar una
reducción en altura en la zona perimetral del orificio de
empotrado de 1,5 mm de profundidad. Para los modelos
Semifilotop este fresado no de tiene que efectuar.
La instalación se puede realizar sobre materiales
distintos como acero, mármol, conglomerados,
sintéticos, madera y madera revestida con laminados
de plástico, siempre que sean resistentes a una
temperatura de 90°C.
Fig. 2
Debajo del panel se tiene que instalar un panel de
madera u otro material aislante, colocado a una
distancia mínima de 15 mm del envase de la placa.
Instrucciones para el instalador
Fig. 2
GUARNICIÓN SELLADOR
GUARNICIÓN SELLADOR
Характеристики
Остались вопросы?Не нашли свой ответ в руководстве или возникли другие проблемы? Задайте свой вопрос в форме ниже с подробным описанием вашей ситуации, чтобы другие люди и специалисты смогли дать на него ответ. Если вы знаете как решить проблему другого человека, пожалуйста, подскажите ему :)













