Варочная панель Smeg PGF64F-4 - инструкция пользователя по применению, эксплуатации и установке на русском языке. Мы надеемся, она поможет вам решить возникшие у вас вопросы при эксплуатации техники.
Если остались вопросы, задайте их в комментариях после инструкции.
"Загружаем инструкцию", означает, что нужно подождать пока файл загрузится и можно будет его читать онлайн. Некоторые инструкции очень большие и время их появления зависит от вашей скорости интернета.

Инструкция
для
установщика
104
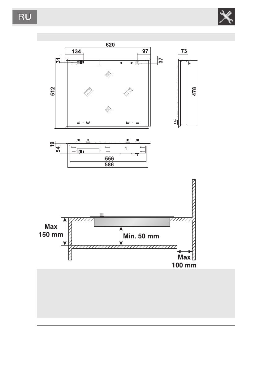
Габариты: места подключения газа и электропитания (размеры в мм).
ВНИМАНИЕ! если прибор встраивается в мебель, предусмотреть
установку разделительной полки, как показано на рисунке.
Если же, напротив, прибор находится на духовке, установленной под
варочной панелью, предусматривать разделительную полку нет
необходимости.
При установке над духовкой последняя должна снабжаться
охлаждающим вентилятором.
6.3
Подключение электропитания