Варочная панель Miele KM6699-1 - инструкция пользователя по применению, эксплуатации и установке на русском языке. Мы надеемся, она поможет вам решить возникшие у вас вопросы при эксплуатации техники.
Если остались вопросы, задайте их в комментариях после инструкции.
"Загружаем инструкцию", означает, что нужно подождать пока файл загрузится и можно будет его читать онлайн. Некоторые инструкции очень большие и время их появления зависит от вашей скорости интернета.

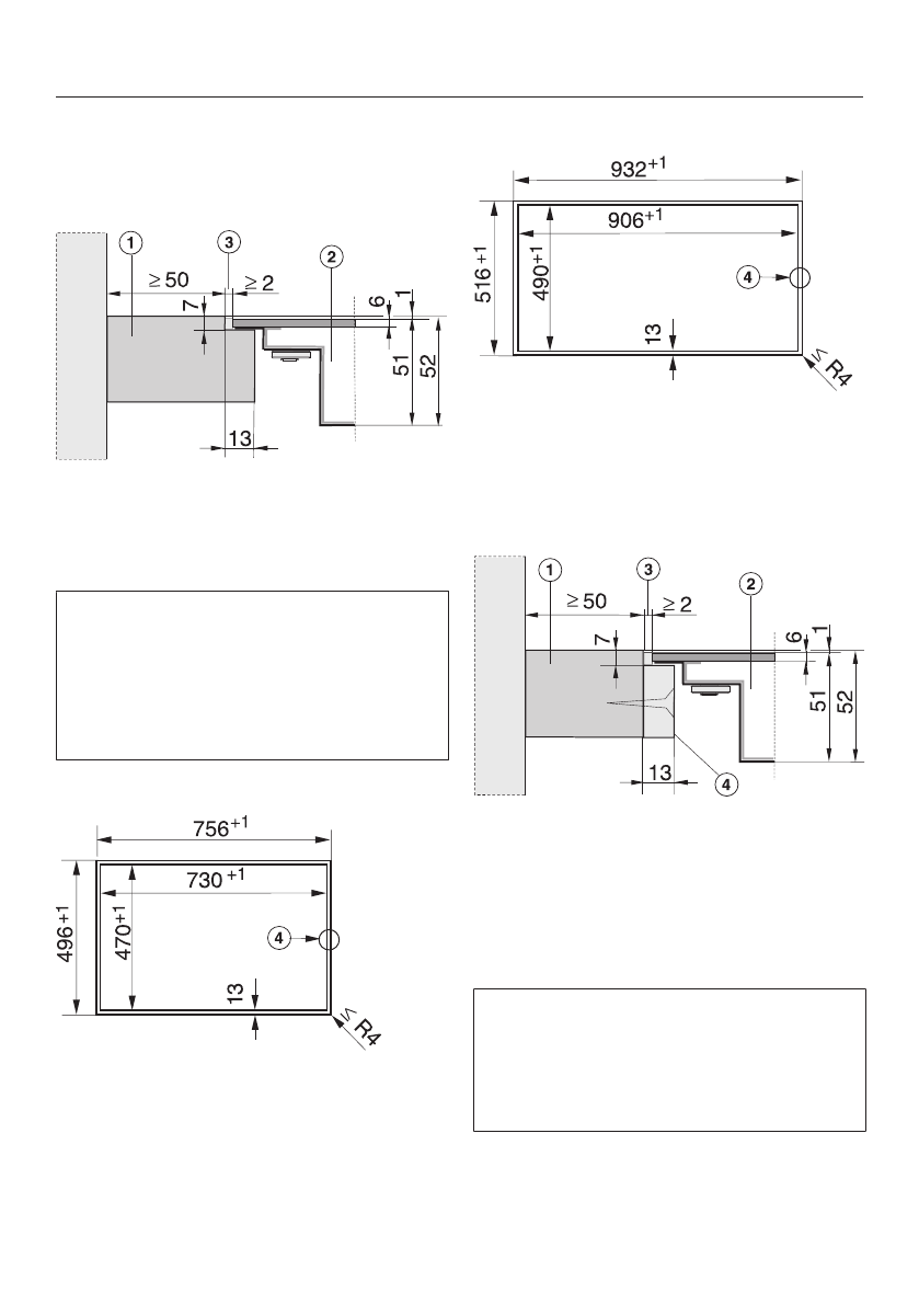
Размеры для встраивания – заподлицо
80
Детали выреза в столешнице
Столешница из натурального кам-
ня
a
Столешница
b
Варочная панель
c
Зазор
Т.к. у стеклокерамической панели и
у выреза в столешнице возможны
допуски на размер, то ширина зазо-
ра
(мин. 2 мм) может варьиро-
ваться, но должна быть не менее 2
мм.
KM 6639(-1)/KM 6839(-1)
d
Ступенчатая фрезеровка
KM 6679(-1)/KM 6879(-1)
d
Ступенчатая фрезеровка
Столешница из массива дерева /
столешница, покрытая плиткой /
столешница из стекла
a
Столешница
b
Варочная панель
c
Зазор
d
Деревянные планки (13 мм) (не
входят в комплект поставки)
Т.к. у стеклокерамической панели и
у выреза в столешнице возможны
допуски на размер, то ширина зазо-
ра
может варьироваться, но
должна быть не менее 2 мм.
Содержание
- 2 Содержание
- 4 Гарантия качества товара
- 5 Указания по безопасности и предупреждения
- 6 Надлежащее использование; Эта панель конфорок предназначена для использования до-
- 7 Если у Вас есть дети
- 8 Пользуйтесь блокировкой запуска, чтобы дети не могли вклю-
- 9 Техническая безопасность; Вследствие неправильно выполненных работ по монтажу, тех-
- 11 – выключите предохранители на распределительном щите или
- 12 Правильная эксплуатация
- 13 При включенном приборе, ошибочном включении прибора
- 16 Чистка и уход; Пар из пароструйного очистителя может попасть на детали,
- 17 Ваш вклад в охрану окружающей среды; Утилизация прибора
- 18 Обзор; Панель конфорок; cd
- 20 bc
- 21 Элементы управления и индикаторы; Сенсорные кнопки
- 22 Таймер
- 23 Технические данные конфорок; Конфорка
- 26 Ввод в эксплуатацию
- 28 Соединение через приложение
- 29 Прерывание процесса
- 32 Индукция; Принцип действия; Подходящая посуда
- 33 Рекомендации
- 34 Шумы
- 35 Советы по экономии электроэнергии; – По возможности готовьте только в
- 37 Управление прибором; Принцип управления; при включении прибора
- 38 Опасность возгорания из-за; Включение панели конфорок; Коснитесь сенсорной кнопки; Установка уровня мощности; Опасность получения ожогов
- 39 TempControl; Указания по использованию
- 40 Активация функции TempControl
- 42 Зона конфорок PowerFlex
- 43 Автоматика закипания; Активация автоматики закипания
- 44 Функция Booster; Включение TwinBooster
- 46 Установка времени таймера
- 47 Изменение времени выключения
- 48 Дополнительные функции; Включение / выключение; Восстановление параметров; Включите панель конфорок снова.
- 49 Временная блокировка; Включение; Демонстрационный режим
- 50 Функции безопасности; Блокировка запуска
- 51 Включение блокировки функций
- 52 Защитное отключение; Сенсорные кнопки перекрыты
- 53 Защита от перегрева; Индукционные катушки
- 54 Программирование
- 61 Удалите
- 66 Дополнительно приобретаемые принадлежности; Посуда для варки / жарения; Салфетка из микрофибры
- 67 Повреждения из-за неправильно выполненного встраивания.; Шпонированные или ламинированные столешницы должны
- 69 Безопасные расстояния
- 70 сзади
- 71 духового шкафа; Промежуточное дно
- 72 Безопасное расстояние до декоративной обшивки; шенным краем
- 73 Указания по монтажу; Монтаж сверху; Повреждения вследствие не-
- 74 Монтаж заподлицо
- 75 Размеры для встраивания – при положении сверху; Все размеры указаны в мм.
- 78 Размеры для встраивания – заподлицо
- 80 Детали выреза в столешнице
- 81 Встраивание; Заделайте поверхности срезов у
- 83 Подключение к электросети; Параметры подключения
- 84 Отключение электропитания; Сетевой кабель; Опасность поражения элект-
- 85 Схема подключения; a b c d e
- 86 Сервисная служба; – в сервисные центры Miele.; Типовая табличка; Гарантийный срок составляет 2 года.
- 87 Сертификат соответствия; Срок службы прибора: 10 лет; Дата изготовления
- 90 Контактная информация о Miele
- 91 Заявление о соответствии товара; Диапазон частот
- 92 Факс
Характеристики
Остались вопросы?Не нашли свой ответ в руководстве или возникли другие проблемы? Задайте свой вопрос в форме ниже с подробным описанием вашей ситуации, чтобы другие люди и специалисты смогли дать на него ответ. Если вы знаете как решить проблему другого человека, пожалуйста, подскажите ему :)