Варочная панель Лысьва GR0400G00 Black - инструкция пользователя по применению, эксплуатации и установке на русском языке. Мы надеемся, она поможет вам решить возникшие у вас вопросы при эксплуатации техники.
Если остались вопросы, задайте их в комментариях после инструкции.
"Загружаем инструкцию", означает, что нужно подождать пока файл загрузится и можно будет его читать онлайн. Некоторые инструкции очень большие и время их появления зависит от вашей скорости интернета.

8
Рис. 4 Порядок установки варочной панели
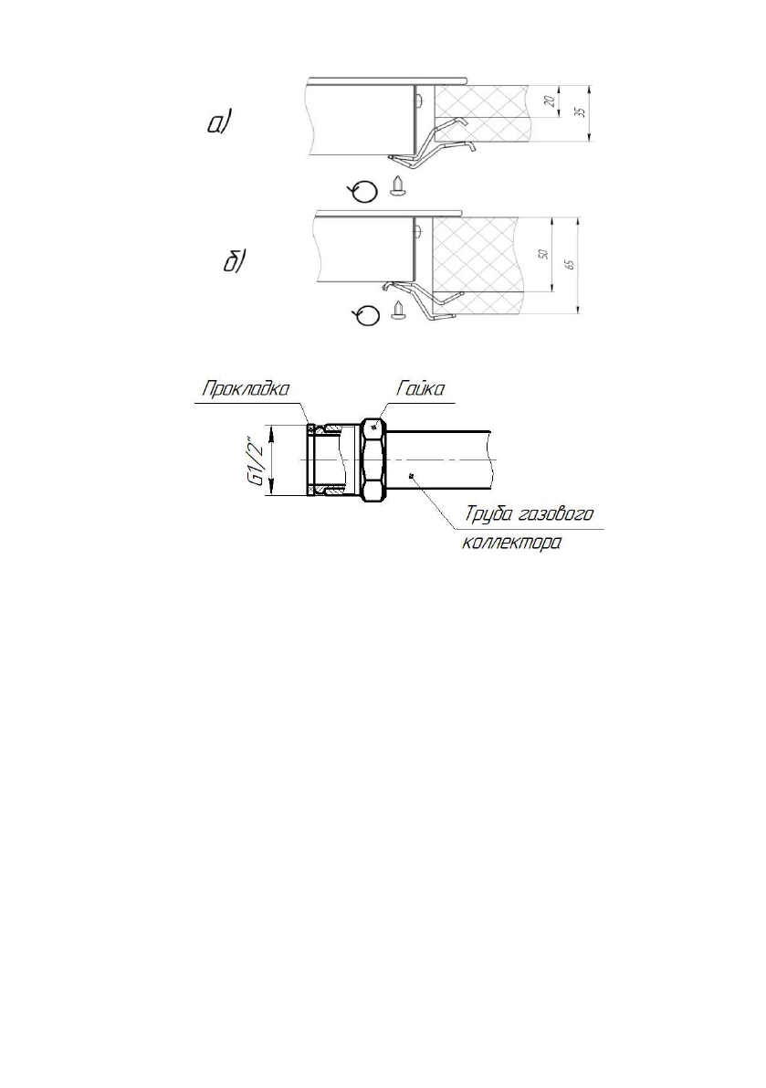
Рис. 5 Конструкция газопровода варочной панели
Прибор подключается к сетевому газопроводу при помощи сертифицированного
гибкого шланга, при этом должны быть соблюдены следующие требования:
- должен иметь сертификат соответствия и документ, указывающий дату
изготовления и срок службы;
- должен быть доступен для осмотра по всей длине;
- не должен проходить в зоне горячего воздуха дымохода и касаться нижней
части варочной панели;
- не должен ничем пережиматься, иметь перегибы и испытывать растягивающие
усилия;
- если гибкий присоединительный рукав имеет повреждения, он должен
заменяться целиком, ремонт недопустим.
Герметичность всех соединений проверьте с помощью мыльной эмульсии при
включенном кране газопровода и закрытых кранах горелок. В случае утечки
подтяните резьбовые соединения газовых коммуникаций. Допустимая деформация
неметаллических прокладок составляет 25%. Герметизирующие прокладки можно
использовать только один раз. Материал прокладок использовать из числа
разрешенных к применению в газовых коммуникациях.
5) Проверьте соответствие значений электрических параметров прибора и
электрической сети, а так же наличие заземления. Подключите варочную панель к
электросети. Подводящий кабель не должен проходить в местах, где температура
может достигать 70
С.
Содержание
- 2 ГАЗОВАЯ ВАРОЧНАЯ ПАНЕЛЬ; СОДЕРЖАНИЕ
- 3 ВАЖНЫЕ РЕКОМЕНДАЦИИ; Внимание! Прибор должен быть подключен только специалистами; ТРЕБОВАНИЯ БЕЗОПАСНОСТИ; обеспечивает пожаро- и электробезопасность приборов.
- 4 указанному в руководстве и на табличке варочной панели
- 5 УСТАНОВКА И ПОДКЛЮЧЕНИЕ; Внимание! Инструкции по установке и подключению прибора, а так же
- 6 Рис. 1 Подготовка столешницы к монтажу для моделей GR04d00G00,
- 8 изготовления и срок службы
- 9 канализации и устройства, имеющие естественное заземление.; ПЕРЕВОД НА ДРУГОЙ ТИП ГАЗА; встраиваемый в кухонный блок, категории I
- 10 Винт малого пламени; Рис. 7 Возможное расположение винтов малого пламени; завернуть регулировочный винт, по часовой стрелке, до упора.; ОПИСАНИЕ И РАБОТА ВАРОЧНОЙ ПАНЕЛИ
- 11 См. на этикетке упаковки
- 14 ОПИСАНИЕ И РАБОТА СОСТАВНЫХ ЧАСТЕЙ ВАРОЧНОЙ ПАНЕЛИ; На Рис. 8 показаны основные элементы газовой варочной панели.; Рис. 8 Рабочий стол варочной поверхности; тепловой мощности, 2 – ручки управления.
- 15 Рис. 9 Регулирование пламени
- 16 посуды оставалось сухим и чистым.; УХОД ЗА ПРИБОРОМ; Внимание! Содержите варочную панель в чистоте – это продлит срок; ХРАНЕНИЕ И ТРАНСПОРТИРОВАНИЕ
- 17 ПОИСК И УСТРАНЕНИЕ НЕИСПРАВНОСТЕЙ; 0 ГАРАНТИЙНЫЕ ОБЯЗАТЕЛЬСТВА; работником организации, производившей ремонт.
- 20 1 СВИДЕТЕЛЬСТВО О ПРИЕМКЕ И ПРОДАЖЕ; МЕСТО ДЛЯ ЭТИКЕТКИ