Варочная панель Electrolux EGU 56648 LX - инструкция пользователя по применению, эксплуатации и установке на русском языке. Мы надеемся, она поможет вам решить возникшие у вас вопросы при эксплуатации техники.
Если остались вопросы, задайте их в комментариях после инструкции.
"Загружаем инструкцию", означает, что нужно подождать пока файл загрузится и можно будет его читать онлайн. Некоторые инструкции очень большие и время их появления зависит от вашей скорости интернета.

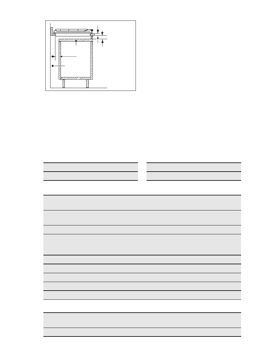
min 20 mm
(max 150 mm)
30 mm
60 mm
B
A
A)
Знімна панель
B)
Місце, що може використовуватися для
підключення
Кухонна секція з духовою шафою
З міркувань безпеки, а також для полегшення
від’єднання духової шафи від кухонної секції
варильну поверхню і духову шафу слід під‐
ключати до джерела електроживлення окре‐
мо.
9. ТЕХНІЧНА ІНФОРМАЦІЯ
Розміри варильної поверхні
Ширина:
595 мм
Довжина:
525 мм
Габарити ніші варильної поверхні
Ширина:
560 мм
Довжина:
480 мм
Теплова потужність
Конфорка «Потрійна коро‐
на»
4.0 кВт
Конфорка середньої швид‐
кості:
2.0 кВт
Допоміжна конфорка:
1.0 кВт
ЗАГАЛЬНА ПОТУЖНІСТЬ:
G20 (2H) 13 мбар = 9 кВт
G30/G31 (3B/P) 30/30 мбар = 654 г/год
G20 (2H) 20 мбар = 9 кВт
Електроживлення:
230 В ~ 50 Гц
Категорія:
II2H3B/P
Підведення газу:
G 1/2"
Система газопостачання:
G20 (2H) 13 мбар
Клас приладу:
3
Діаметри обвідних клапанів
Конфорка
Ø обвідного клапану
в 1/100 мм
Конфорка
Ø обвідного клапану
в 1/100 мм
Допоміжна конфорка
28
Потрійна корона
56
44 www.electrolux.com
Содержание
- 16 ПОДДЕРЖКА ПОТРЕБИТЕЛЕЙ И СЕРВИСНОЕ ОБСЛУЖИВАНИЕ
- 18 УКАЗАНИЯ ПО БЕЗОПАСНОСТИ
- 21 Функциональные элементы варочной панели
- 22 ЕЖЕДНЕВНОЕ ИСПОЛЬЗОВАНИЕ
- 23 Выключение горелки
- 25 ПОИСК И УСТРАНЕНИЕ НЕИСПРАВНОСТЕЙ; принадлежностями
- 26 Подключение к газовой; Сжиженный газ
- 29 Кухонный шкаф с духовым шкафом; ТЕХНИЧЕСКИЕ ДАННЫЕ
- 30 ОХРАНА ОКРУЖАЮЩЕЙ СРЕДЫ