Варочная панель Electrolux EGU 56648 LX - инструкция пользователя по применению, эксплуатации и установке на русском языке. Мы надеемся, она поможет вам решить возникшие у вас вопросы при эксплуатации техники.
Если остались вопросы, задайте их в комментариях после инструкции.
"Загружаем инструкцию", означает, что нужно подождать пока файл загрузится и можно будет его читать онлайн. Некоторые инструкции очень большие и время их появления зависит от вашей скорости интернета.

8.7 Кірістіру жолдары
Есігі бар ас үй жиһазы
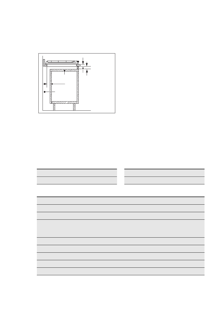
Пештің астына орнатылатын тақта алуға оңай
және техникалық қызмет көрсету қажет
болғанда қол жеткізуге оңай болуға тиіс.
min 20 mm
(max 150 mm)
30 mm
60 mm
B
A
A)
Алынбалы тақта
B)
Қосылым сымдарына арналған орын
Тұмшапеш орнатылған ас үй
жиһазы
Қауіпсіздікті қамтамасыз ету үшін және
тұмшапешті құрылғыдан оңай алу үшін пештің
үсті мен тұмшапешті электр желісіне жеке-
жеке қосу керек.
9. ТЕХНИКАЛЫҚ АҚПАРАТ
Пештің өлшемдерi
Ені:
595 мм
Ұзындығы:
525 мм
Пештің ойығының өлшемдерi
Ені:
560 мм
Ұзындығы:
480 мм
Жылу кірісі
Үш шілтерлі оттық
4.0 кВт
Жартылай жылдам оттық:
2.0 кВт
Қосымша оттық:
1.0 кВт
ТОЛЫҚ ҚУАТЫ:
G20 (2H) 13 мбар = 9 кВт
G30/G31 (3B/P) 30/30 мбар = 654 г/сағ
G20 (2H) 20 мбар = 9 кВт
Электрмен жабдықтау:
230 В ~ 50 Гц
Санаты:
II2H3B/P
Газға қосу:
G 1/2"
Газбен жабдықтау:
G20 (2H) 13 мбар
Құрылғының сыныбы:
3
14 www.electrolux.com
Содержание
- 16 ПОДДЕРЖКА ПОТРЕБИТЕЛЕЙ И СЕРВИСНОЕ ОБСЛУЖИВАНИЕ
- 18 УКАЗАНИЯ ПО БЕЗОПАСНОСТИ
- 21 Функциональные элементы варочной панели
- 22 ЕЖЕДНЕВНОЕ ИСПОЛЬЗОВАНИЕ
- 23 Выключение горелки
- 25 ПОИСК И УСТРАНЕНИЕ НЕИСПРАВНОСТЕЙ; принадлежностями
- 26 Подключение к газовой; Сжиженный газ
- 29 Кухонный шкаф с духовым шкафом; ТЕХНИЧЕСКИЕ ДАННЫЕ
- 30 ОХРАНА ОКРУЖАЮЩЕЙ СРЕДЫ