Варочная панель Electrolux EGT 7355 NOK - инструкция пользователя по применению, эксплуатации и установке на русском языке. Мы надеемся, она поможет вам решить возникшие у вас вопросы при эксплуатации техники.
Если остались вопросы, задайте их в комментариях после инструкции.
"Загружаем инструкцию", означает, что нужно подождать пока файл загрузится и можно будет его читать онлайн. Некоторые инструкции очень большие и время их появления зависит от вашей скорости интернета.

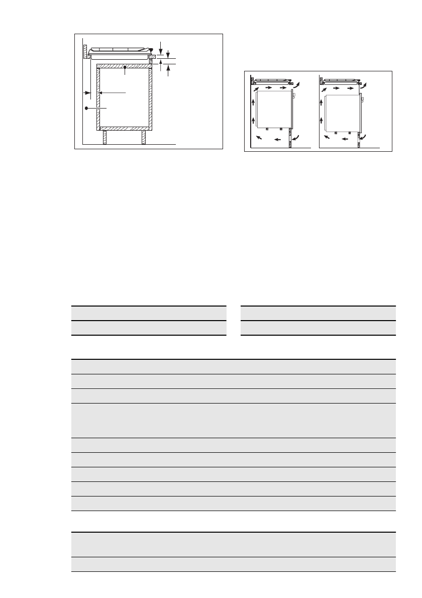
min 20 mm
(max 150 mm)
30 mm
60 mm
B
A
A)
Eemaldatav plaat
B)
Vaba ruum ühenduste jaoks
Köögikapis olev ahi
Pliidi avause mõõtmed peavad vastama joonise‐
le ning köögikapp peab olema varustatud õhu‐
avadega pideva õhu juurdepääsu tagamiseks.
Ohutuse tagamiseks ja ahju hõlpsaks eemalda‐
miseks köögikapist tuleb pliidi ja ahju elektriü‐
hendused paigaldada eraldi.
50 cm
2
360 cm
2
180 cm
2
120 cm
2
9. TEHNILISED ANDMED
Pliidi mõõtmed
Laius :
740 mm
Pikkus:
510 mm
Pliidi süvendi mõõtmed
Laius :
560 mm
Pikkus:
480 mm
Kuumutusvõimsus
Kolmikkroonpõleti:
3.8 kW
Kiirpõleti:
2.2 kW
Poolkiire põleti:
1.65 kW
KOGUVÕIMSUS:
G20 (2H) 20 mbaari = 10.95 kW
G30/G31 (3B/P) 30/30 mbaari = 778 g/h
G20 (2H) 13 mbaari = 10.9 kW
Elektrivarustus:
230 V ~ 50 Hz
Kategooria:
II2H3B/P
Gaasiühendus:
G 1/2"
Gaasivarustus:
G20 (2H) 20 mbaari
Seadme klass:
3
Möödaviikude diameetrid
Põleti
Möödaviigu Ø 1/100
mm
Põleti
Möödaviigu Ø 1/100
mm
Poolkiire
32
Kolmikkroon
56
EESTI
13
Содержание
- 43 ПОДДЕРЖКА ПОТРЕБИТЕЛЕЙ И СЕРВИСНОЕ ОБСЛУЖИВАНИЕ
- 45 УКАЗАНИЯ ПО БЕЗОПАСНОСТИ
- 48 Функциональные элементы варочной панели; ЕЖЕДНЕВНОЕ ИСПОЛЬЗОВАНИЕ
- 49 Выключение горелки
- 52 ПОИСК И УСТРАНЕНИЕ НЕИСПРАВНОСТЕЙ
- 53 принадлежностями; Подключение к газовой
- 54 Сжиженный газ
- 56 ТЕХНИЧЕСКИЕ ДАННЫЕ
- 58 ОХРАНА ОКРУЖАЮЩЕЙ СРЕДЫ