Варочная панель Electrolux EGC 93322 NK - инструкция пользователя по применению, эксплуатации и установке на русском языке. Мы надеемся, она поможет вам решить возникшие у вас вопросы при эксплуатации техники.
Если остались вопросы, задайте их в комментариях после инструкции.
"Загружаем инструкцию", означает, что нужно подождать пока файл загрузится и можно будет его читать онлайн. Некоторые инструкции очень большие и время их появления зависит от вашей скорости интернета.

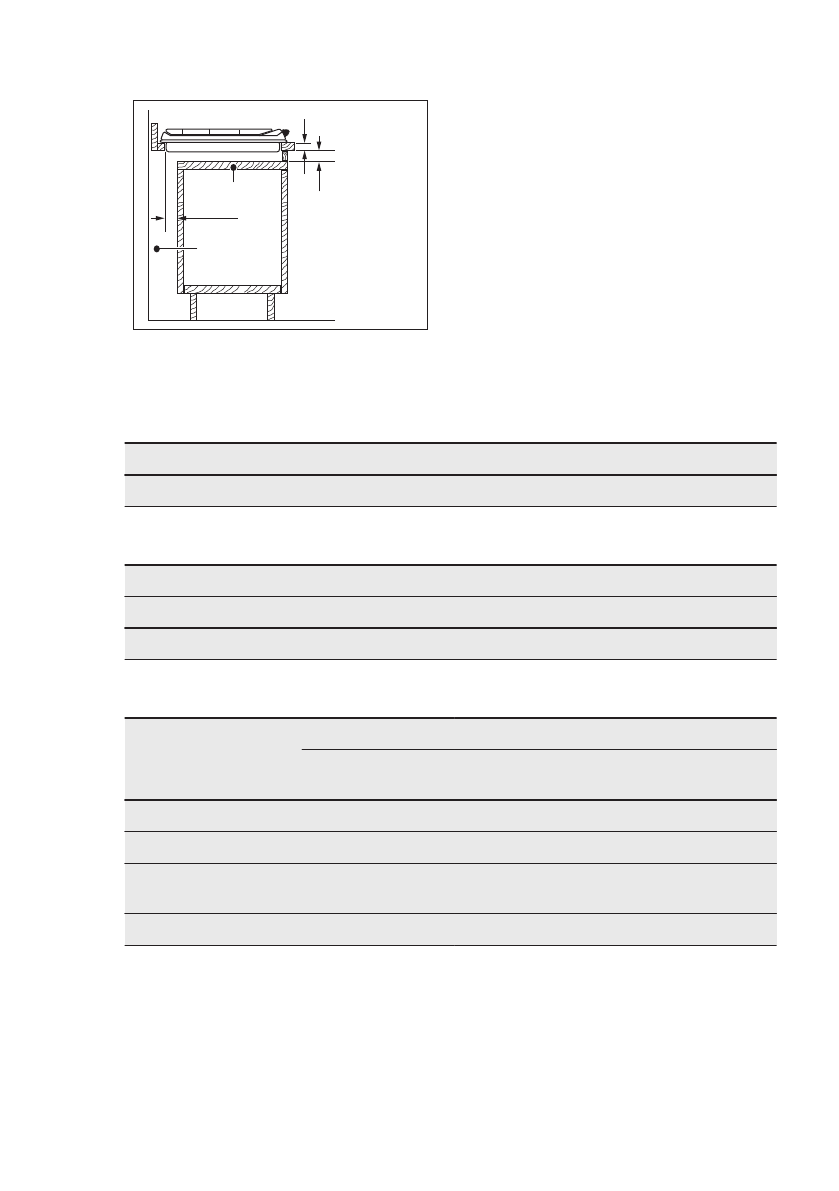
Кухонный шкаф с дверцей
min 20 mm
(max 150 mm)
30 mm
60 mm
B
A
A. Съемная панель
B. Пространство для подключения
проводов
Кухонный шкаф с духовым шкафом
Из соображений безопасности, а
также, для упрощения процедуры
извлечения духового шкафа из шкафа,
электрические соединения для
варочной панели и духового шкафа
должны быть выполнены раздельно.
9. ТЕХНИЧЕСКИЕ ДАННЫЕ
9.1 Размеры варочной панели
Ширина
290 мм
Глубина
520 мм
9.2 Диаметры обводных клапанов
ГОРЕЛКА
Ø ОБВОДНОГО КЛАПАНА 1/100 ММ
Быстрого приготовления
42
Вспомогательная
28
9.3 Другие технические данные
ОБЩАЯ МОЩ‐
НОСТЬ:
Газ 1 (Исх.):
G20 (2H) 13 мБар = 4,0 кВт
Газ 2 (Пере‐
настр.):
G30/G31 (3B/P) 30 мбар = 269 г/час
G20 (2H) 20 мБар = 3,9 кВт
Электропитание:
220-240 В ~ 50/60 Гц
Категория прибора
II2H3B/P
Подключение к газо‐
вой магистрали:
G 1/2"
Класс прибора:
3
www.electrolux.com
34
Содержание
- 19 возможностями
- 20 Общие правила техники безопасности
- 21 УКАЗАНИЯ ПО БЕЗОПАСНОСТИ
- 22 электросети; Подключение к газовой; магистрали
- 25 Функциональные элементы варочной панели; ЕЖЕДНЕВНОЕ ИСПОЛЬЗОВАНИЕ; Общий вид горелки
- 26 Выключение горелки
- 27 Экономия электроэнергии
- 28 Подставки для посуды; Чистка варочной панели; ПОИСК И УСТРАНЕНИЕ НЕИСПРАВНОСТЕЙ
- 29 Если решение найти не
- 30 пакет с принадлежностями; Название; Подключение к газовой
- 33 Установка более одной; варочной панели; Возможности встраивания
- 34 ТЕХНИЧЕСКИЕ ДАННЫЕ; Размеры варочной панели; Другие технические данные
- 35 ОХРАНА ОКРУЖАЮЩЕЙ СРЕДЫ